查看完整案例


收藏

下载

翻译
A “high-tech community in the sky” was created on the site of this former furniture factory. What once was a production space with heavy pollution was transformed into a technological park for the robotics industry, with dozens of high-tech companies and R+D centers.
The park’s proximity to top universities and high-tech companies ensured it reached full occupation for its 1.2 million square feet of renovated space.
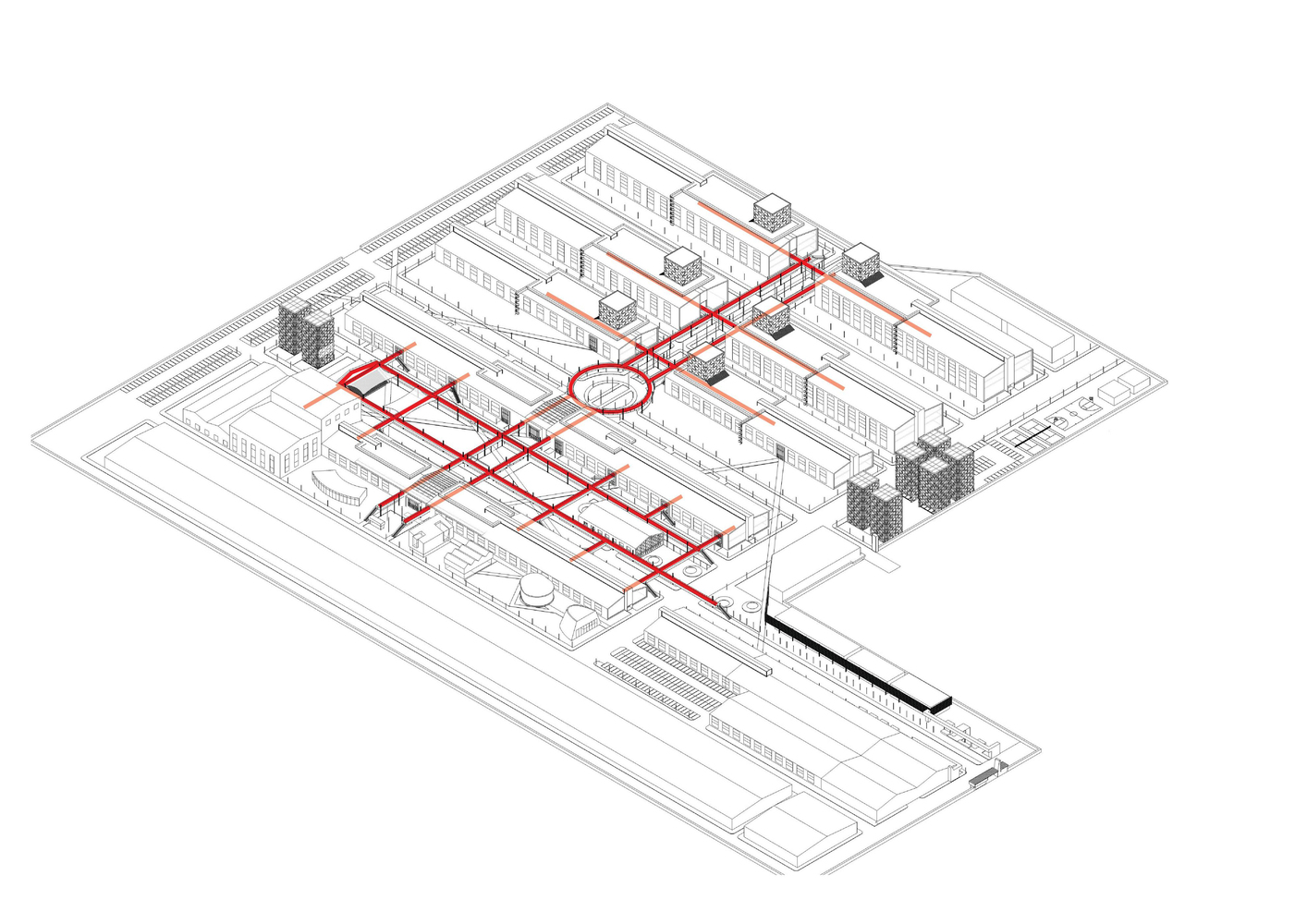
A raised pedestrian promenade connects all refurbished buildings, establishing an outdoor linkage, much like the “high-line” project in Chelsea, New York City. The entire factory’s open space and internal street space were redesigned with a new landscape featuring hidden technology, spatial flexibility, and local vegetation that maintains the memory of the place.
The park is also filled with various amenities: A large gym, one of the best indoor climbing spaces in the city, marathon running tracks, a multi-usage event space with outdoor theater seating, cafes and cafeterias, etc.
客服
消息
收藏
下载
最近



































