查看完整案例


收藏

下载
△建筑东侧立面外观 摄影:李季
方案设计单位:中国建筑设计研究院有限公司 本土设计研究中心
施工图设计单位:深圳市华阳国际工程设计股份有限公司
项目地点:广东深圳
建成时间:2019 年 5 月
建筑面积:17.8 万平方米
项目在深圳市留仙洞片区,属于近几年大规模城市开发的中心部分。此片区紧靠中心城区发展带,贴邻高建成度区域的边缘,也是关内关外的衔接地带。
△区位图示 图源:大师工作坊城市设计成果
项目以大师工作坊+集群设计的组织形式推进城市更新和单体设计的落实。大师工作坊主导的城市设计,试图在超高层的街区设计当中打破以往规划模式,摒弃地块分区明确、按功能画格子的设计方法,讨论对原生老城区多维尺度的传承,研究自然生长而成的街区模式。
具体策略为:在街区之间建立公共空间系统,打造向市民开放的慢行步道;高密度集中建设与低密度绿廊相互穿插;小尺度商业街区、围合式的布局,创造地块内庭院空间,形成亲人的多元化街区氛围。
△城市设计平面 图源:大师工作坊城市设计成果
本项目单体建筑基地位于留仙洞城市更新的核心区,用地面积为 1.56 万平方米,建设规模为 17.8 万平方米。城市设计将该地块与西北三个体块共同定义为城市会客厅,各地块同时设计建设、地下空间整体开发、地面功能共享连通,其它三个地块分别为:北侧 300 米高的超高层办公楼、西侧的酒店公寓混合社区和西北方向的垂直复合型商业地块。
△片区总平面图 绘制:方案设计团队
△建筑西北侧鸟瞰 摄影:李季
△建筑街景视角外观 摄影:李季
另外,基地南侧为城市绿地和低密度科创中心、东侧是以绿地为主的城市活力广场,超高层北侧为设计产业园,核心区外圈则以中高密度的居住办公为主穿插城市绿地和商业。混合式的城市功能,复杂的边界条件,产生了诸多待设计解决的问题:
· 在城市设计的规定动作下如何寻求布局上的突破?
· 如何缓解北侧摩天楼带来的紧张感?
· 在地块内部功能混合状态下如何推演合理布局?
· 怎么与周边地块建立积极互动的关系?
对此,设计团队提出了以下策略:围合布局,主动退让。建筑布局顺应天际线走势,将办公体量分为高低相连的两栋塔楼,高塔 140 米立于北侧,低塔 90 米设在场地西侧,公寓在南侧,组图整体成 U 型布置,几栋高层形成三面围合的模式,屏蔽西侧混合社区及南北两侧街道的嘈杂,退让出更多内庭院空间。同时建筑体量在西北角内退,缓和与北向摩天楼的紧张关系,内院东侧朝向城市活力广场的一面打开,与之形成相呼应的开放性绿化广场。
△体量生成示意 绘制:方案设计团队
△建筑东南向人视角外观 摄影:李季
△首层公共空间 摄影:李季
△从建筑底部向上仰望 摄影:邢野
消解高差,呼应绿廊
建筑首层大面积架空,通过办公楼外向型的入口大台阶和公寓内向型的下沉花园,将高差消化在内庭院中。办公的主入口设在内庭院侧;公寓首层下沉,主入口与南侧低标高道路平接,通过不同的入口方向和标高关系加强公寓的独立性。
△城市开放空间分布 绘制:方案设计团队
△首层公共空间 摄影:李季
△街角公园 摄影:李季
△街角广场 摄影:李季
体量拆解,虚实变化
设计采用化整为零的策略,将建筑体量拆分为高塔、低塔及公寓三部分,并通过高低塔的体量穿插、交界切缝、屋顶架空、立面分段等处理方式,进一步丰富高层的尺度关系。高塔办公及公寓立面以单元化的规则幕墙为主,体量相对完整;低塔办公内嵌在基地中间,按楼层拆分为上下四段,结合分段布置空中平台,进一步消解体量感。低塔办公东侧面向城市活力广场,高塔办公 25-35 层南侧与城市绿地和低密度科创中心对望,这两处立面内退空中平台,为室内空间引入良好的视野。
△建筑南侧立面外观 摄影:李季
△建筑内部对外视角 摄影:李季
△ 三层公共空间 摄影:李季
△东侧庭院 摄影:李季
功能混合,开放共享
作为城市会客厅的一部分,建筑在首层、二层分别设置公共通廊,并营造城市开放空间。西北角建筑内退形成街角公园、向东侧开口的内庭院以及办公首层的架空通道,打通了地块西北侧与东侧城市活力广场的步行路线,使城市绿轴得以延续。通过首层架空空间,可由大台阶上到办公裙房的 2 层和 3 层。2 层在两栋塔楼中部及内庭院一侧设室外平台;三层办公空间内收到核心筒周边,外围全部打开成为城市公共通道,并在西北角预留可与外部地块相接的空中连桥开口。
△庭院空间 摄影:邢野
△二层公共空间 摄影:李季
△连廊 摄影:李季
△庭院内部 摄影:李季
△檐下空间 摄影:李季
因地制宜,因光而异
深圳属亚热带海洋性气候,适宜在室外阴凉处营造绿化休闲空间。因此结合体量拆解需要设置不同尺度的架空灰空间、休憩露台和空中平台,为使用者提供亲近自然、交流放松的条件。
△立面上的空中平台 摄影:李季
△空中平台内部 摄影:李季
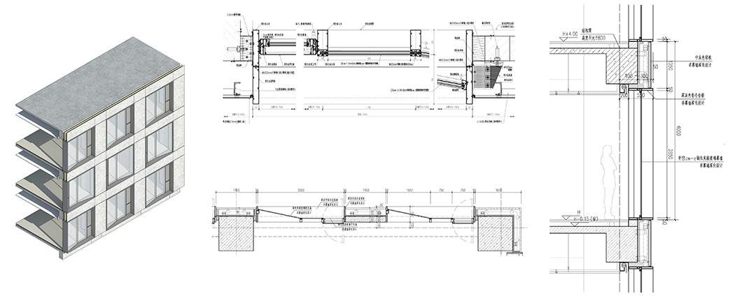
考虑到超密度街区中建筑之间的相互遮挡,高层立面的日照呈现上强下弱的分布特点,设计以此为依据将立面上下分段设计,每一段的幕墙单元分为 90°、75°、60°、45°四个转角形式,通过改变幕墙构件的角度来改变阳光直射量和遮阳率,使不同楼层获得均衡的采光效果。高塔办公体量相对完整,立面设计主要考虑降低外立面直射光率、增加遮阳。
△太阳轨迹与转角幕墙设计
绘制:方案设计团队
△低塔幕墙细部详图 绘制:方案设计团队
△低塔办公立面局部外观 摄影:李季
△ 高塔幕墙细部详图 绘制:方案设计团队
△高塔办公立面局部外观 摄影:李季
这次设计将视角放在了与城市相合共生的立场,使建筑所营造的空间对城市功能的连续性起到一定作用,与相邻地块形成共生型小生态圈。建筑基于城市自然生长、多元共享的策略,实现了生于环境、隐于环境的本土设计理念。
△建筑夜景外观 摄影:李季
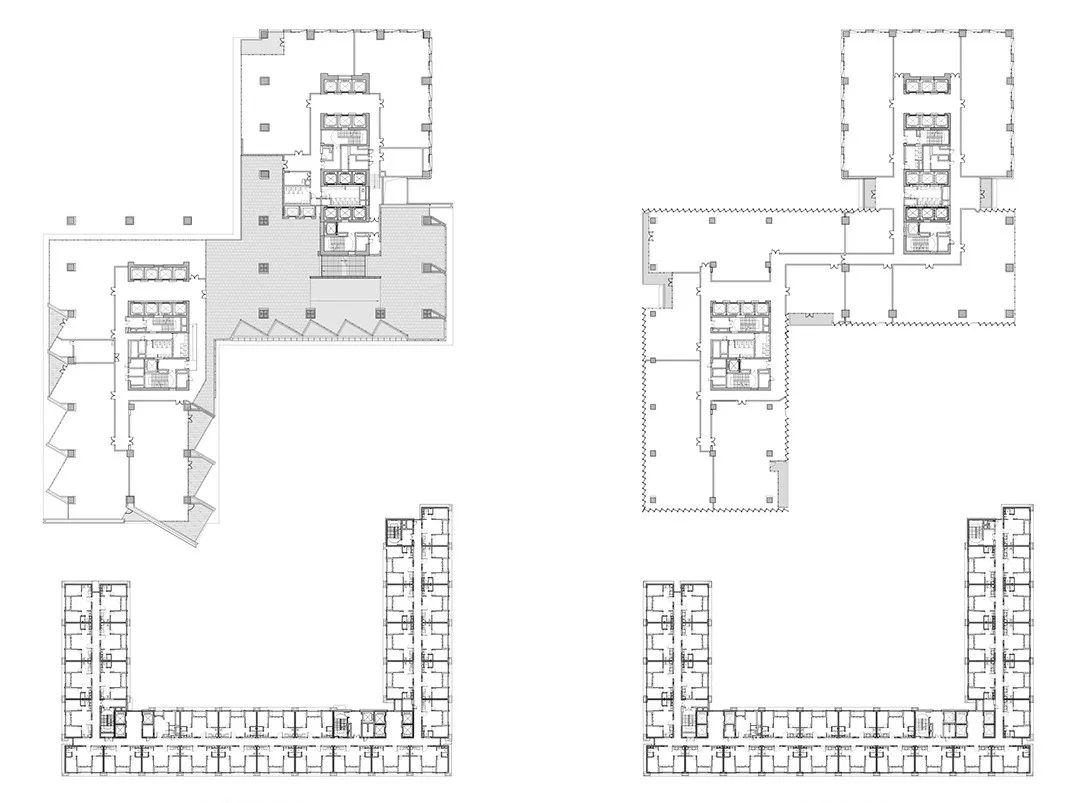
△ 二层(左)、标准层(右)平面图
绘制:方案设计团队
完整项目信息
项目名称:深圳万科云城项目设计
主创建筑师:崔愷、邢野
方案设计单位:中国建筑设计研究院有限公司 本土设计研究中心
方案设计团队:崔愷、邢野、金爽、曾瑞、张家博
施工图设计单位:深圳市华阳国际工程设计股份有限公司
施工图设计团队:吕柱、张胜强、李祥柱、燕立欢、刘鑫年、马炎青、施潘、吴健、程军、杜良涛
业主:深圳市万科云城房地产开发有限公司
项目详细地址:深圳市南山区西丽街道创科路东侧
项目完成时间:2019 年 5 月
建筑面积:17.8 万平方米
摄影/图片版权:李季/中国建筑设计研究院有限公司
客服
消息
收藏
下载
最近


































