查看完整案例


收藏

下载

翻译
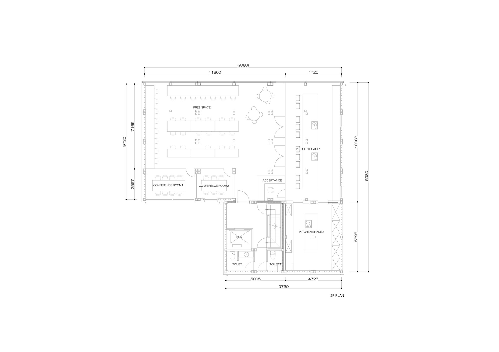
This is a project to convert a building that was originally a rental warehouse into a share office. The existing building had a 5-story container architecture style. Due to the characteristics of the container warehouse, the space had low ceilings with no windows, and was surrounded by metal. This gave it a very inorganic feeling.The first thing we did was to establish a large aperture with the wooden sash facing the street.
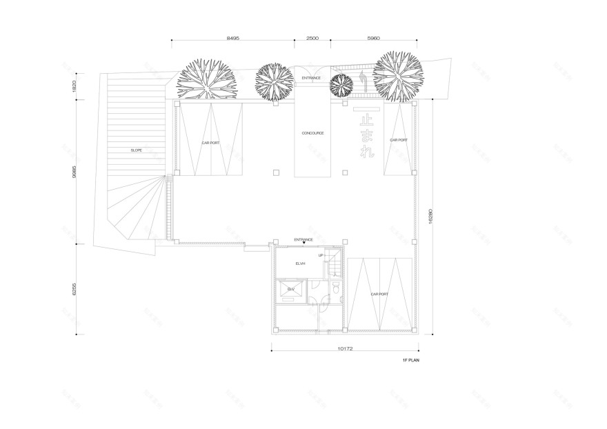
Then we planted an over 12meterhigh sequoia as a symbol tree, since this property exists in the middle of the hill and had no landmark. Because the depth of a shrubbery was only 1800mm, we made the root bowl as small as possible, and installed the tree at the top of the hill. As for the rest of the plants, we leveled their heights to the sequoia, and selected their leaf colors so that they are deeper towards the back.The entrance door is made out of a 10 year-old marine container.It has an important role to show when the office is open or closed.
We arranged the 10-meter long kitchen towards the big open concept space like a stage. The delicious smells from the stage make communication between the share office users easier.We designed variable furniture that can correspond to the users’ moods, events, or work activities. They can also be tools of communication. For instance, there are benches that can become like a hearth when combined, and stools that can become shelves when piled up. There are no more than 3 pieces of furniture that are the same, so users can choose and enjoy the change in their work environment every day.
At “STOCK Share Office”, users can create their own spaces depending on their activities and situations, butstill get a feeling like gathering at a big dining table.
客服
消息
收藏
下载
最近































