查看完整案例


收藏

下载

翻译
“Each detail was thought and created to translate Brazil’s beauty and cozyness” David Guerra Kûara, meaning sun for the indigenous Tupi-Guarani. The house of Tupã, the supreme god. Kûara Delivers, every day, energy, heat, life, all elements that make Bahia, the province on which the portuguese discoverers, led by Cabral, disembarked in Brazil, a national treasure, that define Brazilian identity itself. The Brazilian, indigenous at first, but not only, mixed through dozens of generations, in an ethnic pluralism, bringing an unique diversity to our people, strength in a fascinating narrative about the roots of this country, becoming memory from the Brazilian identity, reminding us of what’s more precious: our rich nature, as generous mother, provide us the primary foundations of survival, in a fascinating invitation to a healthy relationship with the environment, settled in respect and harmony with nature.
This lush nature is inserted on-site, since way before the idea of an occupation. An organic composition, whose main axis is the Mucugê river. The rain forest flourishes in conjunction with the “mangue” (a kind of swamp endemic for this region, which hosts a unique biome), between the famous cliffs of Arraial D’Ajuda. The 200 meters of the beach take us to the unforgettable horizon offered by the Atlantic Ocean, on which, about 500 years ago, the Portuguese “caravelas” came from the west, beginning a new phase on Brazilian history. This richness of memory and diversity could not be ignored, opting, thereby, for the preservation of all native vegetation, using the structure of the old hotel to build the new one in the same places as the old buildings. The landscape architecture takes that into account. Felipe Fontes puts down composition in frank dialogue with all local flora, aligning his interpretation with the native.
In the choosing of materials, it has become necessary to use diversity, in the search for interaction, with great focus in the beauty of wood, in its natural state, executed with perfection by carpenters, who were disciples of the master Zanine Caldas. The work is abundant in the surfaces, such as floor and walls, as well as architectural elements like Venetians, brise soleils, and standard panels, with species like cumaru, tatajuba, ipê, and peroba. The complexity demanded not just the rough work of experienced carpenters, but the creation of an entire workshop on-site to optimize the job. Bamboo, natural fibers, straw, wicker, leather, Brazilian stones, and other handmade elements counterbalance with Florim stones, imported from Italy, used in floors and bathrooms, which despite presenting an industrialized production of the highest standard, still presents the sensation of natural rock, without the inconvenient of water infiltration.
Duravit china imported from Germany, bedsheets from Trussardi and L’Occitane products complement the plurality, uniting the best of two worlds: technology and nature. A unique architectural style, which results multicultural, authentic and timeless, using the predominant green not as barrier, but as indissociable part of architecture. Besides, furniture from Prodomo and Franccino, searching for an atmosphere of rest, relaxing without forgetting the design and Brazilian identity. The beds are made in leather by Elisa Atheniense, bringing a customized service with high luxury. The work of artist Rita Lessa present in all cushions and many textiles has the mission to represent the Brazilian yellow and green identity, on drawings inspired by Brazilian trees. The sousplats made of coconut, plates in soapstone, developed by local labor, which besides valuing the artisanship and the vernacular, bring a curious dialogue between regionalist cultures.
The 180 photographs by Jomar Bragança, made exclusively for the Hotel, reveal a personal look of the cultural aspect in the Discovery Coast. Expressions of our identity, built by indigenous, African and Portuguese, revealed in images of the architecture, the artisanship, religiosity and the economy developed by the fisherman and by the exporting of cacao. Also, the landscapes of mangues, rain forests, the rivers, and the sea of Arraial D’Ajuda, Porto Seguro, Caraíva, Trancoso, Coroa Vermelha, Santo André, and Belmonte. In Bahia’s culture resides the origins of the Brazilian identity. The images show our natural beauty, our faith, our diversity in colors, textures, materials. The Portuguese baroque, the indigenous art and African patterns. Last but not least, the wonderful lightning project by our beloved Monica Rohlfs (in memoriam), which through state of the art LED lamps, produced by Everlight, created a spectacle, pleasant and cozy, bringing, once again, the dialogue between tech and nature.
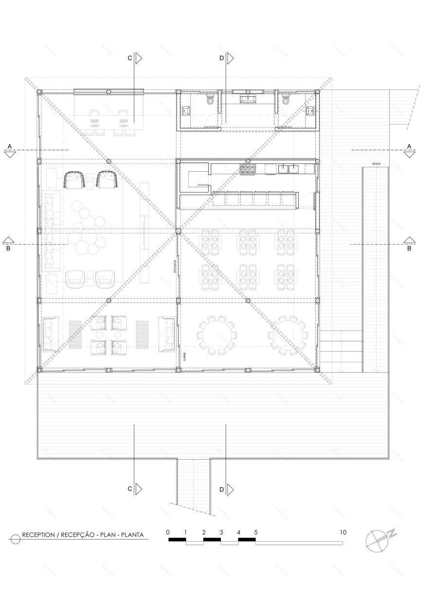
A PATH OF DISCOVERY The project’s peculiarity begins in the entrance, on which the first sight is the panel, designed by the architect (as all details), composed by a frame of cumaru wood and a nice detail in white plywood. The piece is always thinking in the work as a whole. Light and shadow, fullness and emptiness, bright and dark. The contrast is an instrument for the counter position of colors between the caramel and the wood, the wine of the walls and the gray of the floor.
In the breakfast space, there’s a panel with vertical wooden pieces that involve the interior, reinforced by the use of eucalyptus in the structure, as well as the windows and ceiling. This sequence was brought aiming for dynamic contrast, on which the light arranges itself in infinite ways throughout the space. On the external, another breakfast area, allowing the guests to enjoy their meal inside the intimacy of a cozy interior or in the seaside atmosphere.
A walkway connects the reception to the leisure area of the hotel. The guardrail points the way, on an impressive function for a normally auxiliary element. Here, the guardrail is protagonist, roaming by the hotel on a marvelous game of architectural volume, tying the buildings, which, although separated between them, are closely connected. Getting to the leisure area, our first view is the luxurious infinity pool, playing with our own perspective. Right in front of the ocean, there’s an inevitable connection between both. The L shape involves the restaurant establishing a lounge along with it, with chaises longue for stay and sunbathing. The sauna right next to the pool completes the relaxing experience.
The restaurant by the sea becomes one of the most imponent points of the hotel. With capacity for 100 people, not to mention an independent wine cellar, richly ornated, working not only as a functional element but the decoration in a gorgeous wooden panel. The parrilla is also an interesting element, allowing for a more refined menu, including the option for noble meat made in different techniques. Nevertheless, unarguably, the most outstanding element in the restaurant is the lightning, composed of 130 lamps, and produced manually by a team of experienced craftsmen from the region, who worked together to deliver an expressive artwork. The result is an essentially organic and harmonious composition, forming a symbolism of the woods that bright the environment from above, creating light effects and poetry with the swing provoked by the seaside winds of Bahia, which go through, humble, discreet, invisible, the upper Venetian, generating a mysterious and stimulating complexity to its users.
Beyond the pool’s deck, which settle the space with its 1000 sqm, we have the bar, last checkpoint before reaching the Pitinga’s beach, with its lounge standing only 50 meters from the ocean. Sofas and chaises in the sand bring a very elegant experience. The beach bar serves guests and visitors, with a vast layout aiming to reach most people. The bar lamps, also products of the local craftsman, were made of coconut fiber, and allow light to go through in every way. At night, the light spreads, making a beautiful composition in the room.
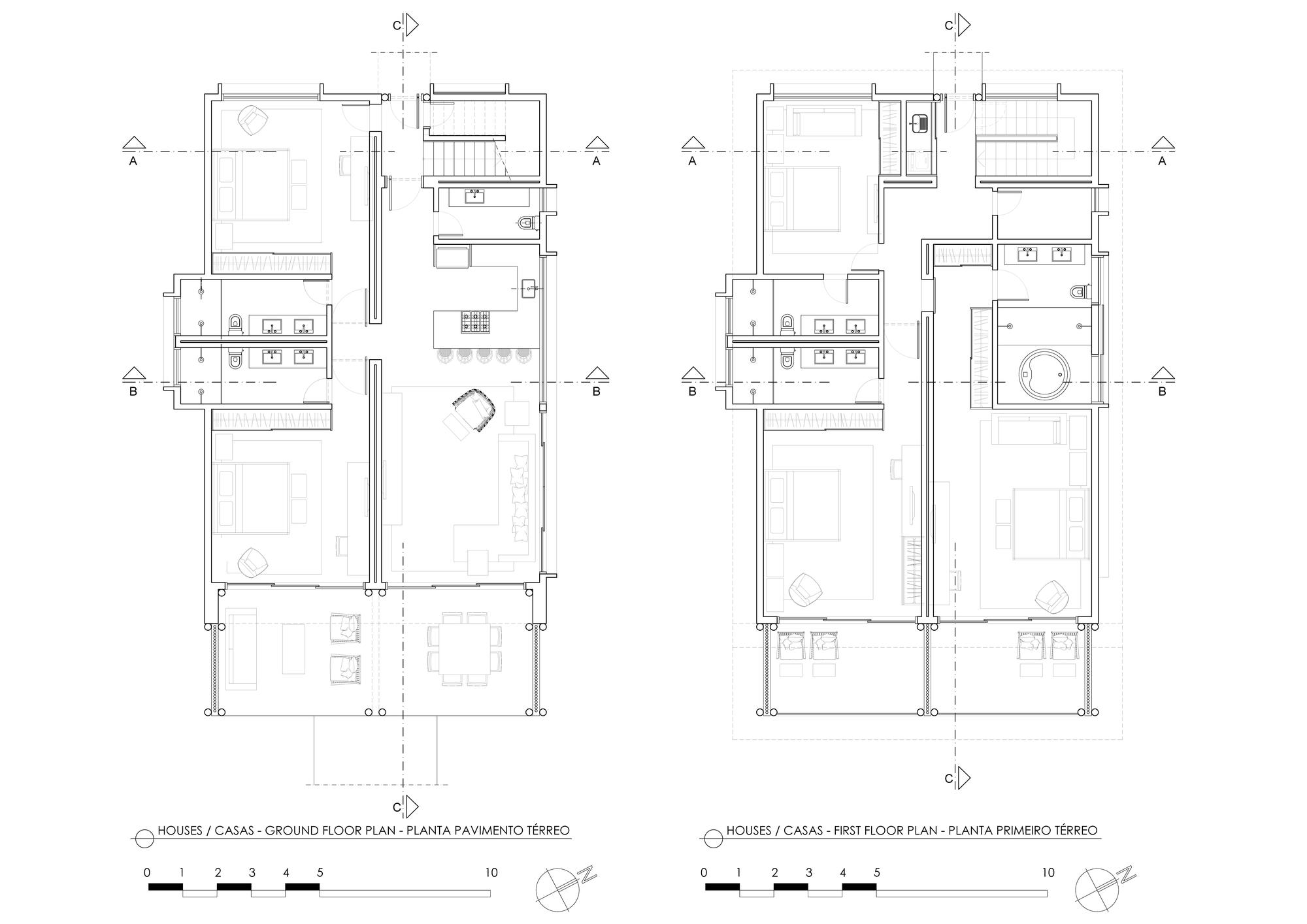
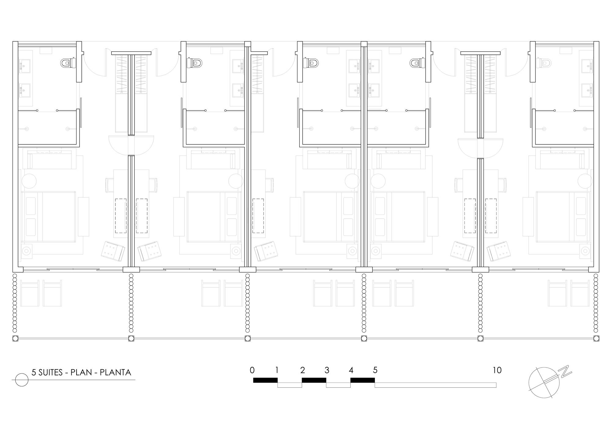
Last of all, the private section, with 46 rooms, with sizes from 35 to 69 sqm, plus 4 master suites of 139 sqm, including living, a fully equipped kitchen, washroom and a balcony with dinner apparel for 10 and two swing sofas. The bedrooms are equipped with air conditioning and fridge, blackout, Italian mattress and wall with acoustic isolation, intensifying the feeling of rest and comfort. Also, beyond all this infrastructure, the hotel has two tennis courts, a gym, and a laundry. The l’Occitane Spa is an independent building, with 4 massage rooms equipped with beds, showers and immersion tubs.
In conclusion, the hotel is made for those that aim for rest and relaxing integrated to nature. A reference in contemporary design, culture, and gastronomy in Brazil. A project that creates a modern concept of Brazilian architecture. Privacy is primary, as is the luxury and maximum comfort. Is intimist, but not intrusive, character embedded in the whole team, trained to attend the necessities and preferences, without the guests realizing their actions. A private sanctuary. Maybe there is not a more concise and expressive term to define the Kûara Hotel. A place of pure usufruct of all tranquility available in the Discovery Coast, necessary to find balance and escape everyday routine and stress.
客服
消息
收藏
下载
最近
















































































