查看完整案例


收藏

下载
本项目由Jordi Badia带领的位于Catalan的建筑事务所BAAS设计打造,坐落于巴塞罗那的Poblenou区,改地区正在经历城市转型,近年来,这里出现了一种由单一分散的建筑所组成的建筑组团,这些组团无法融入当地传统环境,进而塑造城市品质,所以产生了一些列例如Can Framis博物馆、Jordi Badia办公楼那样的建筑,旨在延续街区传统,与原有建筑进行对话,并提升城市品质。
This project designed by the Catalan practice BAAS, headed by Jordi Badia, is located in the Poblenou district of Barcelona, a neighbourhood undergoing constant urban transformation that, in recent years, has been accompanied by a new architecture of singular scattered buildings that are incapable of dialoguing with the traditional pre-existing surroundings to create urban quality. Here, however, as in the case of Can Framis Museum, the office building proposed by Jordi Badia emerges with the purpose of continuing the street block, dialoguing with what was there before and generating quality urban space.
▼项目概览,Overall view ©️ Gregori Civera
设计者在本项目中着力于建筑的传统形态,特别是阳台、建筑形态和屋檐的比例,确保了这栋建筑在街区中的连续性,所使用的建筑语言和颜色也尽可能地融入周边环境,而且并没有牺牲项目本身的特色。建筑的立面形态也呈现出了更加人性化的尺度。
The project’s commitment to the morphology of traditional architecture, particularly the vertical proportion of its balconies, mouldings and cornices, ensures the continuity of the street block, with a language and colour that fit naturally into the context without sacrificing a degree of autonomy and character. The morphology of the façade also gives the building a more human scale.
▼建筑立面,Facade ©️ Gregori Civera
▼立面采用了手工生态砖,Facade material ©️ Gregori Civera
本项目的具体设计目标是打造一座完全自然通风,且100%无障碍的建筑。建筑立面上的窗户能够完全开敞,能够帮助业主与外界环境建立良好的关系,设计者还设置了能够种植的小阳台。地下停车场可以停放自行车、踏板车和小轿车,并通过庭院进行通风。
The project is materialized with the clear desire to create a building that is completely naturally ventilated and 100% accessible. All the windows and doors in the façade open, improving the user’s relation with the outside and creating small balconies that can be occupied by vegetation. The underground car park, for bicycles and scooters as well as cars, is ventilated through a courtyard.
▼进入街区内部,Enter the block ©️ Gregori Civera
建筑立面使用了陶瓷材料——手工生态砖,这参考了Poblenou区旧工业建筑中所使用的材料,这样做能够拉近建筑与当地历史背景的关系。砖石之间的石灰砂浆接缝强调了一种手工感的整体性,与轻质外墙所呈现的效果非常不同。项目所选用的材料、颜色和纹理都与当地街区紧密相连。
The use of ceramic material –manual eco brick– in the façade, a reference to Poblenou’s old industrial buildings, is an effort to set the building in its historical context. The lime mortar joints flush with the brick underscore the monolithic nature of a kind of manual construction that is quite remote from the usual assembly of lightweight façades. Materials, colours and textures all connect in a contemporary way with the industrial context of the district.
▼建筑室内空间,Interior space ©️ Gregori Civera
为了保证城市肌理的连续性,设计者尊重了该地区特有的倒角结构,这种城市结构正逐渐从Poblenou消失。业主通过门廊进入大堂入口处,这个开敞的空间贯穿建筑物一直延伸到街区的中心。
The idea of maintaining the continuity of the urban fabric led to the decision to respect the characteristic chamfered corner of the Eixample, which is gradually disappearing from Poblenou. Access to the building is situated at this point, via a porch that draws users into the entrance to the lobby. This empty space runs through the building to the centre of the street block.
▼楼梯处,Stairs ©️ Gregori Civera
设计者在街区中间打造了一个拥有丰富内部空间的建筑体量,与场地内部低矮的建筑建立了良好的联系。在高度上,建筑主体呈现出交错的翔太,这样能够降低从街道侧看到八层楼的冲击感,并改善采光。设计者还打造了一系列大露台供业主享受,这些露台在立面上形成了特有的韵律,不同高度的露台与周围相同高度的环境相呼应,特别是与仍伫立在城市老工厂中的烟囱相呼应。
The possibility of building a volume in the middle of the block serves to reduce the main volume while building a rich interior space that relates well to the lower buildings on the interior passageway. In height, the main volume presents a staggered section with the aim of reducing the impact of its eight floors seen from the street and improving sunlighting. This section generates a series of large terraces for users to enjoy and gives the façade its characteristic rhythm. The varying heights of the terraces dialogue with the heights of the surroundings, particularly with the chimney of the old factory that still stands there.
▼项目区位,site plan ©️ BAAS Arquitectura
▼街区平面图,block plan ©️ BAAS Arquitectura
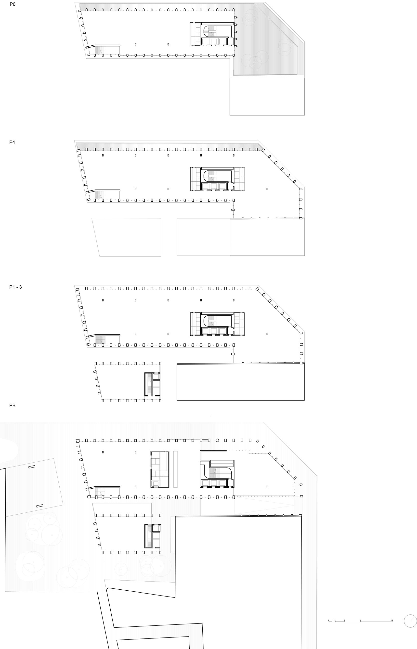
▼建筑楼层平面图,floor plan ©️ BAAS Arquitectura
▼剖面图,section ©️ BAAS Arquitectura
▼结构细部,details ©️ BAAS Arquitectura
CREDITS
Surface: 15.000 m
Client: Conren Tramway
Authors: BAAS Arquitectura: Jordi Badia, Alex Clarà
Team:
Kino Coronas, Blanca Ademà, Joana Tril, Diego Duque, Alba Azuara, María Azkarate, Marc Sánchez, Anna Bosch, Maria Mariages, Pere Molas, Marta Cendra
Photos: Gregori Civera, Alex Clarà, jesús Arenas, Manolo Laguillo
客服
消息
收藏
下载
最近
















