查看完整案例


收藏

下载
龙湖·砚熙台
LONGFOR · NOBLE MANOR
安徽,合肥
Hefei,Anhui
项目名称:合肥龙湖砚熙台
建设单位:合肥锦越房地产开发有限公司
设计单位:上海睿风建筑设计咨询有限公司
项目地点:肥西经开区紫蓬路与规划支路 2 交口
建筑面积:946.69㎡
建筑如何成为一个延续的整体的一部分,一个建筑成为永恒的、持续的历史的一部分,才是好作品。
——贝聿铭
缘起
场地&策略
筑一座城,先从读懂它开始···
合肥,古称庐州,是一座有着 2200 多年历史的古城,历史悠久,源远流长,是一座交织着深厚底蕴与时代新机的文化名城。合肥还有“三国遗址、包拯故乡、淮军摇篮”之称,晴耕雨读是合肥人家的常态,诗书传家是合肥人家的追求。
徽派建筑的魅力在于它凝聚了古代中国建筑的智慧和艺术,展现了中国传统文化的丰富内涵。广泛采用砖、木、石雕等传统材料,表现出高超的装饰艺术水平,其精湛的工艺、对称的布局和精美的装饰都彰显着古人对美的追求和独特的审美观念。
本案项目大区位于肥西县锦绣大道与金寨南路交叉口东南侧,周边配套设施完善,距离翡翠湖仅 1.0 公里,拥有极佳的景观资源优势。龙湖深耕此地,区域 2.5km 内已有三大重点打造的龙湖社区。
翡翠湖是本案周边重点的景观资源,翡翠湖迎宾馆也是本次设计的灵感来源。迎宾馆融合徽派装饰与现代国宾馆风格,对汉唐元素和徽州元素进行提炼,现代与徽派相互交融,形成独具特色的现代徽派风格。
循迹城市,如何造就经典是本案的设计重点。跳脱传统商业思维,把住区设计当作一次国家宝藏抑或是城市文脉的寻宝之旅,以独特的造林美学,构建国宾系的雅致生活体验。
以藏赋形筑经典
贵极城央礼序东方
砚熙台示范区选址于地块东南角,远离城市快速路干扰,未来可以作为社区礼仪归家的主入口,“出则繁华,入则宁静”,彰显静谧尊贵感。
御制归家礼序,传统对称布局,通高精美装饰柱,打造都市里的隐逸会客厅。示范区沿街界面为宽约 81 米、高约 7 米的巨幅尺度,视角似乎没有边界,打造拾级而上的超仪式感体验。
整体格局以“院”的方式展开,空间布局采取一轴三进院。充分考量融合现代人居对于私密性的考量,营造不同意境与氛围,打造独属于龙湖的“三进门院”的归家礼序空间,复现中国国宾馆神韵。
一进:“东方画卷”:致敬城市,礼仪之门彰显威仪气势。采用极简对称的空间形式,开合有致,形成鲜明和谐的节奏和韵律,虽然没有大尺度的前广场空间,但是空间尺度把握张弛有度,一松一驰,烘托了强烈的引导性和仪式感。
大门两侧 3000 余片金钱竹瓷材手工定制景墙,寓意财富盈门。居中的是巨幅“金丝熙和门”,单片高约 6m,整幅门重达 1.3 吨,需要 20 位工人同时发力抬起,内嵌金丝,只为极致经典,成为砚熙台的第一进礼序。
二进:"池鱼砚庭"
水院东侧连廊归家,景墙阵列,灯台列序,以尊享之礼迎宾;北侧金属线型连廊围合,大面奢石温润厚重,精选乌桕树于景上,悄然完成由繁境向心境的过渡。强调建筑空间序列的同时,创造步移景异的景观空间体验。
三进:“鎏金山院”
取意“漏层阴而藏阁,迎先月以登台”,亭台跃然水上,池中设奢石玉玺台,为每一位观礼者打造一幅“熙熙春色水溶,修临流景倍浓”的国风之画。
隐与乐
园中有园,层层递进,山水交融,疏漏有致,形成步移景异的空间体验。咫尺山林,小中见大,于方寸之间构建可行、可望、可游、可居的园林生活,造就了融其江南园林自然雅奢的砚熙极境示范区。
“大隐于市,内秀于心”,打破界面边界,浓缩在一方天地之中,一步一景,皆有质感,每一个转角都能让人们身临古画,让都心隐逸的生活成为可能。
一石千面承匠心。
东方美学精工匠造。
在龙湖·砚熙台里,每一块奢石都堪称【一石千面】,在不同的地方,运用不同技艺,打造酸洗面、哑光面、皮革面等等十余种取材,完成自然臻萃与人类工艺的璀璨结合。
通过对整个沿街界面景墙与细节的多方案比选,最终确定了以爱马仕灰石材景墙为主墙面,辅以波纹石材基底。同时选取了仿竹釉面砖这一极具中式内核的新材料,作为三君子之一的竹子有节节高升、坚韧挺拔的美好寓意。
精挑细选的材料表现出无与伦比的质感和力量,赋予整个空间以全新的生命力和艺术感。在天空的映衬与光影的交织下,爱马仕灰石材、金钱竹釉面砖、拉丝不锈钢金属门三种材质呈现出无比和谐又丰富的立面节奏关系,疏密有致,比例恰到好处。
打破传统采用同一种石材通高铺设的方式,设计采用波纹石材作为爱马仕灰石材的底部基座,分段设计,精研比例,简单一面墙扇也是暗藏玄机,彰显东方精致的节奏韵味。
欲扬先抑,就像一幅徐徐展开的东方典藏画卷,形成近似水墨画笔锋般的浓转淡,目不暇接。屋顶还做了飞檐+官檐的出挑层叠,顶部檐口出挑 19°的黄金比例,弱化了屋顶的厚重,给人以亲近感和轻盈感,展韵大国风雅。
接待区探索室内空间的仪式感与秩序感,突显大气、优雅的空间体验世家传承,提取国学礼序文化元素,结合现代工艺手法和材质,提升空间的艺术文化价值感。
金属铝板细节是勾勒细节强化形制的精致助力,不锈钢焊点都进行了隐藏。本案定制了属于龙湖砚熙台自己的文化符号,墙扇、大门上等随处可见。
一城千载水韵庐州。翡翠湖畔,文化国宾。
作为门面担当,【砚熙极境】示范区是一个艺术作品,引其东方底蕴,仿其御制归家礼序,融其江南园林自然雅奢,承其纯粹圈层谧境,可以称之为合肥的第二座国宾馆。
「技术图纸」
“Technical drawings”
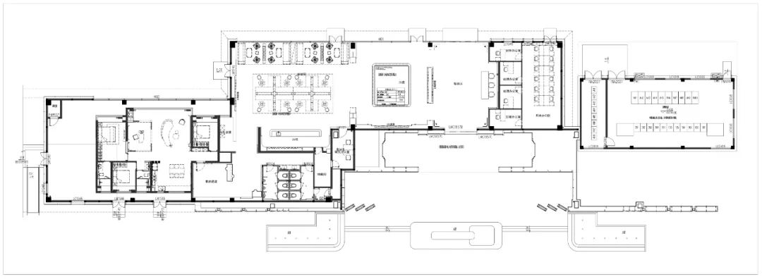
◎一层平面图
◎屋顶平面图
◎立面图
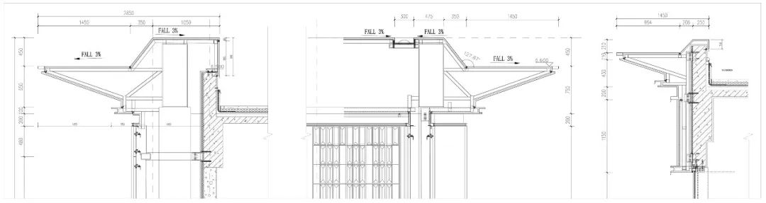
◎墙身节点图
项目档案
项目名称:合肥龙湖砚熙台
建设单位:合肥锦越房地产开发有限公司
设计单位:上海睿风建筑设计咨询有限公司
项目地点:合肥肥西县肥西经开区紫蓬路与规划支路 2 交口西北侧
建筑面积:946.69㎡
景观单位:笛东规划设计(北京)股份有限公司
室内单位:上海为上室内设计有限公司
幕墙单位:上海安岩设计咨询有限公司
施工单位:基准方中建筑设计股份有限公司
睿风尊重每个设计人
希望你能用灵感点亮我们
我们陪你点亮世界
Ruf respects every designer
I hope you can light up our inspiration
We will light up the world with you
- 睿风设计回顾-
客服
消息
收藏
下载
最近







































