查看完整案例


收藏

下载
Casas, Brasil
设计师:DT Estúdio
面积:680 m²
年份:2017
摄影:Fran Parente
建造商:Ita Construtora, Leal Santos marcenaria, Ornare, lumini | iluminação
Autores:Luis Felipe Bernardini, Marcelo Nunes, Thais Aquino
Equipe:Luis Felipe Bernardini, Marcelo Nunes, Thais Aquino, Maki Hirai, Pedro Junqueira, Adriana Turrin
Construtora:Ita Construtora, Ratz engenharia
工程:Omega projetos
景观设计:Grama e Flor paisagismo
设计师描述 | Designer description:
O projeto desta casa, localizada em Ibiúna, foi um grande desafio. O desejo dos clientes de uma casa integrada com a natureza fez com que escolhessem um terreno com diversas espécies de árvores. Além disso, existia um desnível considerável entre a rua de acesso e o fundo do terreno, que dá acesso à represa.
A casa foi inserida em níveis conforme a descida do terreno, criando uma integração visual entre os meios-níveis e um pé-direito mais alto na sala e na cozinha, ambientes onde a família se reúne.
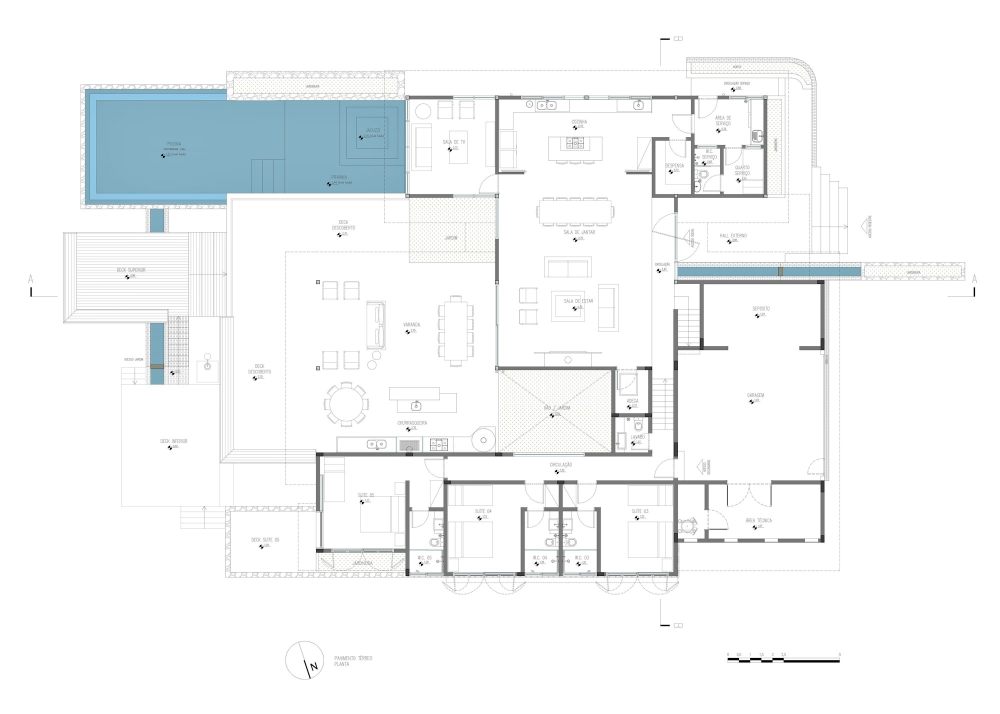
A implantação da casa no terreno também considera a orientação dos quartos, voltados para o Norte, e a posição da piscina, que não pega a sombra da casa e toma sol a maior parte do ano. Em relação às aberturas, para garantir privacidade, a casa se volta mais para o terreno e para as próprias áreas internas.
No pavimento térreo ficam as áreas sociais da casa – sala, cozinha, sala de TV e varanda. Esta última, no nível da piscina, é a área de maior uso da casa. A piscina com borda infinita foi pensada como um espelho que reflete a mata ao seu redor. Descendo meio nível, estão as três suítes de hóspedes e a garagem, onde os carros ficam isolados da área social.
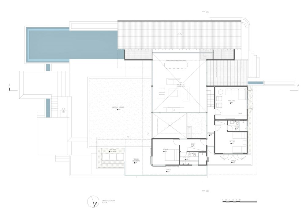
Subindo meio nível, estão as duas suítes e a sala de TV da família. Desta forma, quando a casa não está com visitas, fica a sensação de uma casa menor e ocupada. No pavimento inferior fica a sauna e o deck em meio ao jardim.
A casa possui estrutura mista. Fundações e piso inferior em concreto, e do térreo para cima, estrutura pré-fabricada em madeira aparente. Esta opção, além de agilizar a obra e minimizar desperdício de material, da ao projeto o aspecto de integração com a natureza pedido pelos clientes. Os materiais da casa, pedra, madeira e corten, também conferem este ar aconchegante.
Foram usados dois tipos de telhado:no bloco da cozinha e sala de TV, em uma água com telhas de barro; nos demais volumes, coberturas planas com a manta Alwitra. Esta combinação garante leveza e ritmo à volumetria do conjunto e cria espaços interessantes com a estrutura aparente na parte interna da casa.
项目完工照片 | Finished Photos
设计师:DT Estúdio
分类:Casas
语言:葡萄牙语
阅读原文
客服
消息
收藏
下载
最近




























































