查看完整案例


收藏

下载
近日,由中建三局一公司承建的小米集团华东总部项目一期竣工备案。作为江苏省重大计划开发项目、南京市名企落户计划重点工程,小米集团华东总部启用后预计5000人入驻办公,将成为除小米北京总部外全国最大的研发中心。
实景图 / 图源:中建三局
实景图 / 记者 宋宁 摄
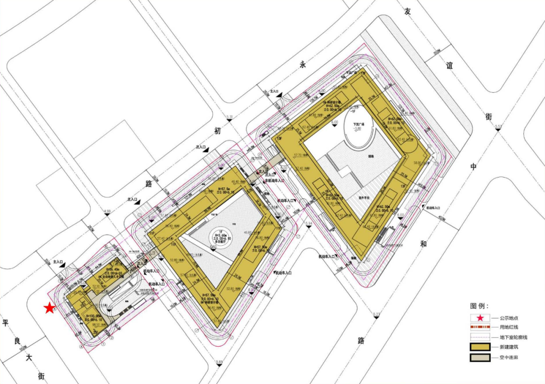
项目位于江苏省南京市建邺区,总建筑面积为36.8万平方米,包含科研设计办公、人才公寓及相关配套设施。整体由三栋几何形建筑组成,计划打造成以科技创新业务为核心的智能硬件、移动互联网、生态链及相关服务的产业集群。
实景图 / 记者 宋宁 摄
实景图 / 记者 宋宁 摄
项目规划的一大亮点在于“园中园”,其结合了江苏历史文化特色与当地的人文习惯,用现代手法演绎传统空间,重塑在园区中的人际关系与产业网络。
大楼合围形成四边形,中庭内建有一座透明圆形建筑,从空中看,整座建筑仿佛一个“回”字。
在整体结构上,建筑师着重强调内在空间的功能体验,在有限的空间内实现功能的无限延伸,营造绿色生态的办公环境,“体验型”、“人文型”、“循环型”三型合一,“适应性”、“生长性”、“复合性”机动灵活,打造具24小时活力的综合体。
三栋建筑相互间由连廊贯穿,跨越两条街道的隔离。这一设计,模糊了街道对项目整体产生的分离作用,使得各办公空间、交流空间、休憩空间相互渗透,融合办公、休闲、社交、生活等多种功能。
小米科技创始人雷军曾说,小米在北京创业五年,几乎一年搬一次,五年内数次搬办公室,跟北漂一族频繁搬家如出一辙,为的是在繁华城市寻得自己落脚处。如今,小米建有南京小米华东总部、广州小米华南总部、重庆小米华西总部、深圳小米国际总部、上海小米生态链产业园、武汉人工智能总部,以及北京的小米移动互联网产业园、小米电子产业园、小米智慧产业园等。
在一系列的“米楼”中,小米开启新征程。
客服
消息
收藏
下载
最近











