查看完整案例


收藏

下载

翻译
Ying Galley’s new location is inside a yard surrounded by two story buildings. Between the yard wall and the buildings there is an ally (28m * 3-3.6m). The ally was for outside maintenance, the landlord added a roof to it and closed it with a door at each end to yield more rental spaces.
Cao Chang Di is an art zone near 798 art factory. A mixture of studios, galleries, shops and restaurants is settled here in a combined texture of masonry buildings and light steel glass additions.
The lease of the space is five years. The art district located at city periphery such as Cao Chang Di is under constant transformation as a result of fast paced Chinese urbanization. Many galleries and studios have to change their spaces several years due to rental increase or demolition of buildings when land use policy changes. Under such conditions, the construction cost to be limited around 1000 RMB/㎡.
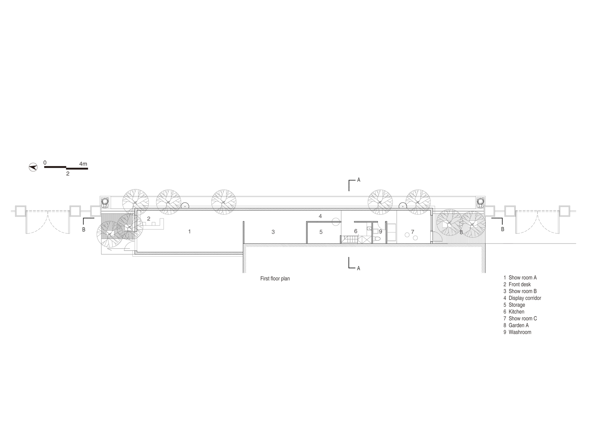
The design intended to make a place where art and people interact, a bridge that links art and life. Instead of remaining inside the yard, the gallery volume was brought out to the street. Since the yard wall must be kept intact, it was sandwiched with interior wall and an exterior layer of poly-carbonate panels that is lightweight and economical. To increase its durability and achieve the desired visual quality, reflective membrane was applied to poly-carbonate panels at back, giving the front surface a metallic look in distance. The same panels continue into other exterior surfaces of the gallery inside yard, so that a new volume grows out of the existing physical context yet also forms contrast to it.
Due to restriction in adding height to existing structures, only a 5m long section of the roof was permitted to raise by 1.5m, which determined the spatial layout of the gallery. The exhibition space consists four show rooms, three at 3.6m high on the ground floor and one at 2.3m high on the mezzanine. Underneath the mezzanine the space narrows into 1m wide and 2.4m high to accommodate a few niches on the wall to draw people’s attention to small items displayed in it. A bathroom, a kitchen, a storage and a stair are integrated into a compacted functional zone behind.
A full height window facing the street is placed on the mezzanine level. The window links the street and the exhibition space, provides a corner for contemplation and brings natural light into the functional zone underneath.
As the most private interior space, the bathroom is applied with the same poly-carbonate panel as that of the exterior wall to blur the boundary between inside and outside. The DIY ceiling lamp is composed of more than 30 “flowers” handmade from non woven fabrics, filtering blue or red light into the space. The design intended Ying galley to be like a flower, temporary and transient as it might be, however, to exude freshness and energy , in hope of contributing to a better surrounding.
客服
消息
收藏
下载
最近
















































