查看完整案例


收藏

下载

翻译
“It is a deep honor to be trusted by the farmers of the Tillamook Cooperative to design their new visitor experience. Our hope is that the new building and the experiences visitors have within will become part of the Tillamook story – a story that is about high-quality products, but also about the Tillamook farmers and employees themselves. We could not be more excited to be part of Tillamook’s future.” –Tom Kundig, FAIA, RIBA, Design Principal – Architecture
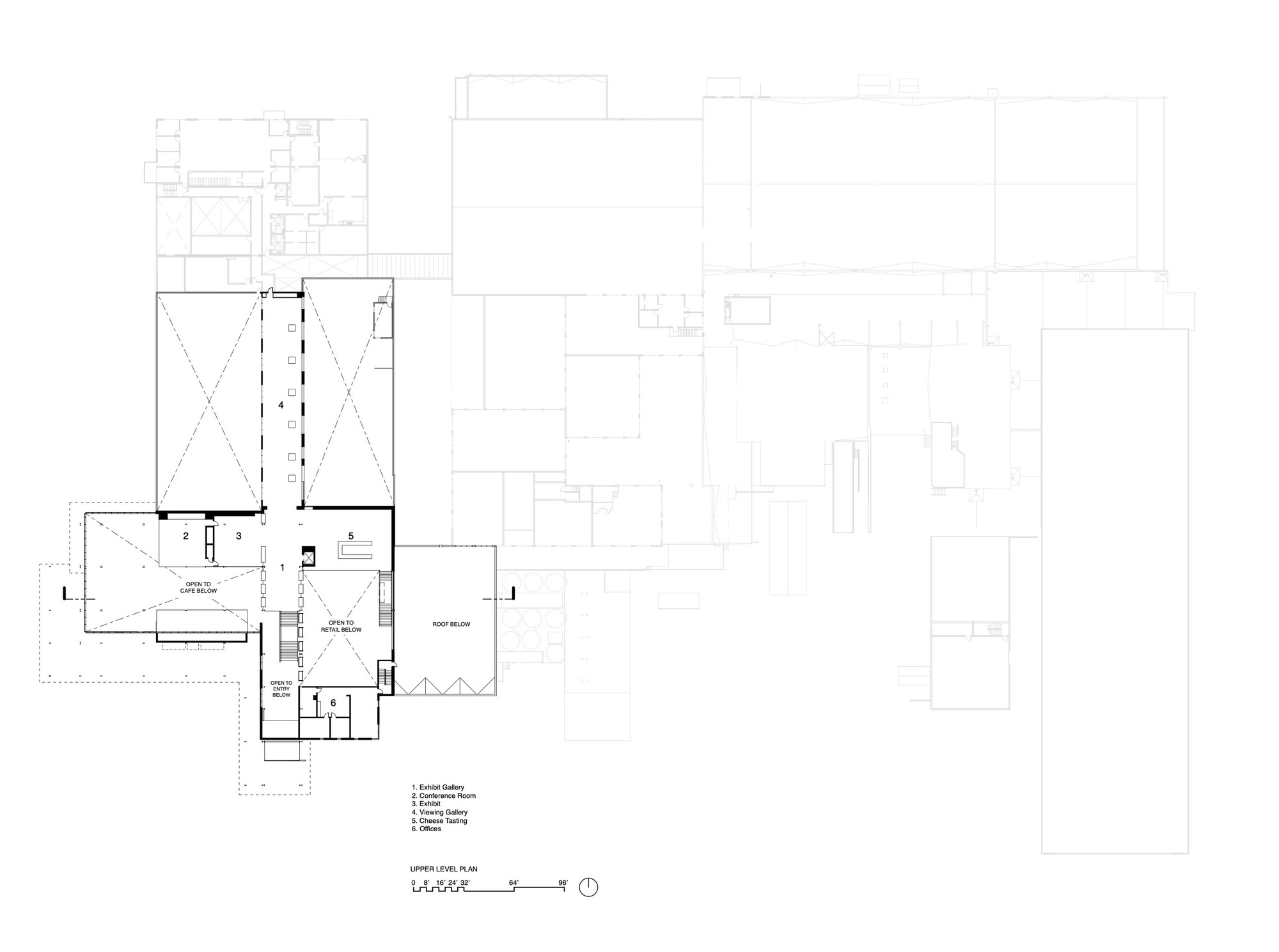
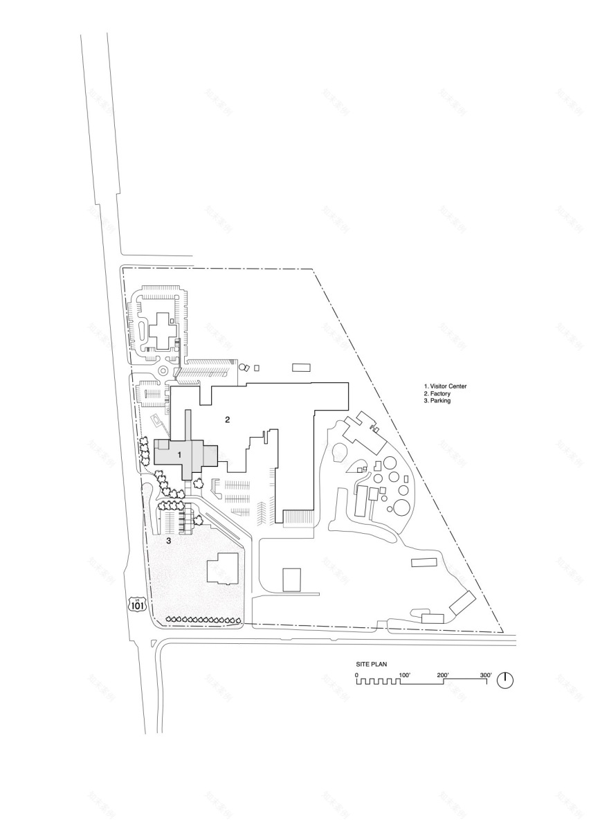
Through architecture, interactive exhibits, landscape design, and custom furnishings, the new Tillamook Creamery is designed to illustrate the story of Tillamook’s mission and origins. Located adjacent to the existing manufacturing facility, the new 42,800-square-foot facility contains exhibits, a retail shop, a restaurant and ice cream counter, allowing Tillamook to share their traditions, processes and products with 1.3 million visitors every year.
“With this project, we wanted to reference Tillamook’s agricultural tradition with a rational, straightforward building that is true to the experience and history of the farmers who make up the Tillamook Cooperative.” –Tom Kundig, FAIA, RIBA, Design Principal – Architecture
Drawing on Tillamook’s agricultural origins, the visitor experience consists of a modern barn structure with a simple shed roof and an adjacent landscape of grasses, shrubs and trees native to the Oregon coast. The building’s form is both inviting and logical, with an exposed structure and a high degree of transparency throughout. Inside, the exhibits provide an in-depth look at dairy farming on the Oregon coast, as well as the high degree of pride Tillamook’s farmer-owners and employees have taken in their work since the cooperative’s founding in 1909.
“For Tillamook, we designed the opportunity for visitors to make a connection between the food on their plates and the story behind it. It was a chance to tell previously untold stories of Tillamook’s 109-year history – the creamery, its cows, its farmer-owners, and the high-quality products they produce.” –Alan Maskin, Design Principal – Exhibits
客服
消息
收藏
下载
最近

































