查看完整案例


收藏

下载
几何小屋
这栋形状不规则的可爱「林中小屋」
藏在纽约莱茵贝克森林里
小屋内部结构紧凑,面积却只有 85㎡
是独栋住宅的实验项目
由 Steven Holl 在 2014 年设计建造
▲Steven Holl 和他的团队有别于那些盖在山野里的巨无霸豪宅这栋小屋刻意的不去「占领」周围的自然景观转而对内部空间进行「压缩」这正是 Steven Holl 的设计事务所对建筑内在空间所做的探索项目的主题就是「EX OF IN HOUSE」
▲环绕着小屋的森林有近 170 亩
Explorations of IN
「EX」除表示「探索」之外,也隐含「外观」之意
试图将建筑的内部空间和周围的环境融为一体
这是一栋由多边梯形和圆形组合而成的小屋
灵感来源于奇妙的几何体
内部空间由球体和正方体相交而成
视觉效果颇为有趣
内部形成独特的折叠跃层
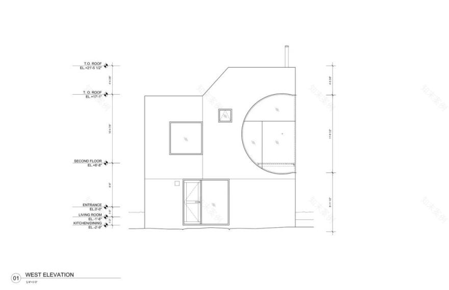
南面的窗户最有特点,又圆又大
冬天可以拥有充足的阳光
夏天盖上一层遮阳罩
能让屋里保持凉爽
步入 EX OF IN,能强烈的感受到外立面和内部空间的反差
▲一层平面
住宅轴测草图和模型
展示出几何体相交、掏空、切割的过程
从而形成了或虚或实的 4 个球体结构
▲东立面
▲矩形与圆形交叉而成的入口
玄关是一块实木墙体挖出的半球空间
这栋屋子内部交错着或方或圆的几何结构
光影变换更是将时间流逝立体呈现
这张造型别致的实木茶几为伊东丰雄(Toyo Ito)设计的「涟漪桌」。
柠檬绿座椅为麦洛·鲍曼(Milo Baughman)设计的 Scoop 椅。
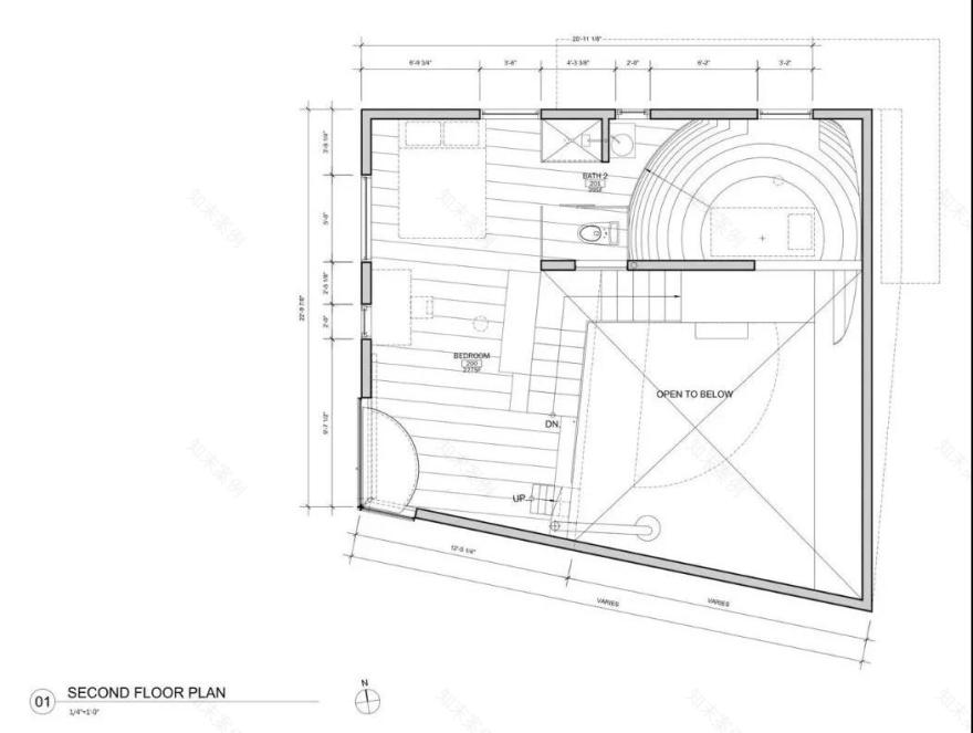
楼梯后是开放式的厨房和餐厅
给人一种「拾级而上」的上升感
旁边的门可通往屋外的池塘
从楼梯上去,来到一块方形台子上。
虽然平面图上把这里标成卧室,但没有卧室,但可以住供 5 人居住。
二层平面
▲西立面
阁楼的大圆角窗
由三个平面组合而成圆形切角
就好像一个圆球被房子截了一块
起居室比玄关低两级台阶
面向中央的开放厨房
这种布局为主人增加了空间的开阔性
厨房内有定制橱柜
入口处的用餐区与建筑的户外石板路遥相呼应
卧房区域的一角
床搭在玄关顶部天花板的上方
▲屋顶平面
南立面整栋屋子几乎全用天然环保材料建造。木屋的窗户、门框和楼梯是用当地天然桃花心木和桦木胶合板制成。原木色营造出安心、舒适的氛围。灯具就更特别,是 3D 打印成型的定制款,材质是玉米淀粉集聚乳酸(PLA)。
这片区域日照时间长,阳光充足
建筑团队因此设计了太阳能储电系统
木屋的电力都来自地热和太阳能
以确保能源的自给自足
既环保又独立
设计师已然把几何体运用到了极致
北面的半圆形小窗
可以隐约瞥见屋内的陈设
▲北立面
莱茵贝克森林与哈德逊河相接
这里每天都能看到河谷日落的绮丽景色
因距离产生的光晕变化
吸引了学校里的学生过来写生
因地制宜的建材运用
独具匠心的结构颠覆了人们对空间的感知
令人不得不佩服设计师 Steven Holl
对建筑语言和绿色环保的全新探索
入夜,小屋灯火通明与四周静谧的山林和谐相伴
▼快来看看这栋神奇的小木屋的是如何诞生的~
撰文:Lilith
客服
消息
收藏
下载
最近






































