查看完整案例


收藏

下载
在维也纳以西60分钟车程的朗根卢瓦(Langenlois),罗仙姆酒店与葡萄酒中心(Loisium Hotel and Wine Center)伫立于一座微微朝向南方的葡萄园里,以静谧的姿态传承着当地古老的葡萄酒酿造传统,守卫着当地丰富的历史遗产。场地下方有着历史悠久的地下网络系统,900年历史的石制通道奠定了城镇规划的基础。
In Langenlois, 60 minutes west of Vienna, on a gently south-sloping vineyard, the Loisium Hotel and Wine Center celebrates the rich local heritage of an ancient wine vault system. The historic subterranean network, which includes stone passages that are 900 years old, underlies the urban plan of the town.
▼项目与周边环境概览,overall of the project and surrounding environment © Hertha Hurnaus
▼项目远景,viewing the project at distance © Hertha Hurnaus
▼建筑与葡萄园,Architecture and Vineyards © Hertha Hurnaus
项目由Steven Holl Architects事务所设计改造,两栋以酒窖为灵感的建筑共同组成了罗仙姆酒店综合体。葡萄酒中心与酒店分别建于2003年与2005年,其中葡萄酒中心建筑与广袤的葡萄园融为一体,而酒店的改造设计则呼应了原建筑上方的拱顶肌理。
The first two buildings of the SHA designed Loisium Hotel Complex sought to create an analogical relation to the geometry of the cellars, with the Wine Center (2003) embedded within the vineyards and the Hotel (2005) referencing the branching morphology of the vaults above.
▼项目概览,overall of the project © Hertha Hurnaus
▼预制拱顶将扩建部分与原建筑相连,prefabricated vault connects the expension to the original building © Holzinger Sam Architects
酒店的扩建部分包括30间客房,预制拱顶将这些房间与原建筑的拱顶相连。建筑弯曲而流畅的几何形态倒影在入口的景观水池中,带给人们别样的视觉体验。地下室、建筑主体,以及拱顶元素分别代表了三种基本建筑类型:地下、地中与地上。
▼三种基本建筑类型:地下、地中与地上,three basic types of architecture: under, in, and over the ground © Steven Holl Architects
The concept for the 30-room Hotel Expansion “out of the ground” connects to the original vaults via precast vaulted rooms. A reflecting pool at the entry reflects the curved geometry. Together, these three elements represent three basic types of architecture: under, in, and over the ground.
▼底层大厅,reception hall on the ground floor © Hertha Hurnaus
▼套间 – 大面的玻璃窗提供了充足的采光与良好的视野,suite – Large glazed Windows provide plenty of light and views © Holzinger Sam Architects
▼套间中的定制天然木制家具,Custom made natural wood furniture in the suite © Holzinger Sam Architects
▼阳台,the balcony © Holzinger Sam Architects
扩建部分的屋顶和墙壁采用了Rheinzink莱茵钛锌板作为饰面材料,天然的磨砂纹理经过风化处理,与景观和天空融为一体。通过客房内的玻璃窗,可以看到远处的山脉、葡萄园和现有的罗仙姆酒店以及葡萄酒中心。裸露的混凝土墙面与定制的天然木制品为室内增添了粗旷而不失温暖的舒适氛围。
The roofs and walls of the expansion building are clad in Rheinzink. The matte natural material is pre-weathered to blend with the landscape and sky. Glass walls at the hotel rooms provide views to the mountains, vineyards and existing Loisium Hotel and Wine Center. Board form exposed concrete walls compliment custom natural wood millwork.
▼标准客房,guest room © Hertha Hurnaus
▼客房细部,detail of the guest room © Hertha Hurnaus
▼拱顶与走廊,Vaults and corridors © Holzinger Sam Architects
▼天窗,skylight © Holzinger Sam Architects
▼模型,model © Steven Holl Architects
▼水彩手绘,Watercolor hand-drawing © Steven Holl Architects
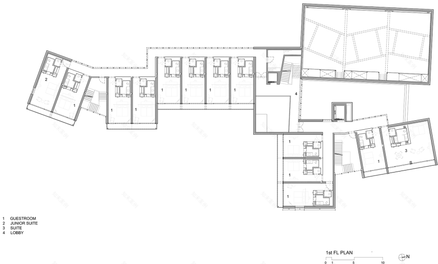
▼底层平面图,ground floor plan © Steven Holl Architects
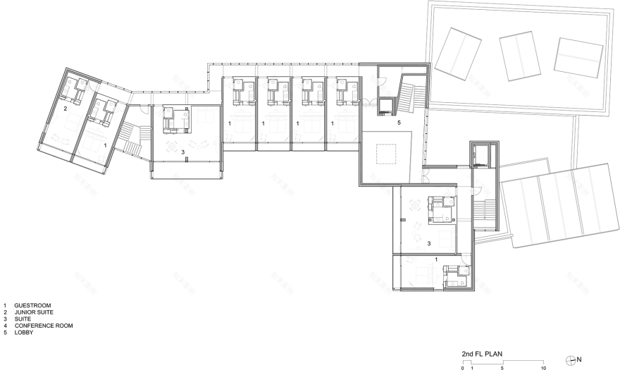
▼二层平面图,first floor plan © Steven Holl Architects
▼三层平面图,second floor plan © Steven Holl Architects
▼地下室平面图,basement floor plan © Steven Holl Architects
▼立面图,elevations © Steven Holl Architects
▼剖面图,sections © Steven Holl Architects
client:Loisium Lanenlois Besitz GmbH Walterstraße 4 3550 Langenlois architect:Steven Holl Architects Steven Holl (design architect, principal) Noah Yaffe (partner in charge) Lourenzo Amaro de Oliveira (project architect) JongSeo Lee Ruoyu Wei Lucas Almassy associate architects:Sam-Ott-Reinisch Irene Ott-Reinisch Franz Sam Gregory Holzinger Karin Sam Daniel Wohlschlager structural engineers:RETTER & Partner Ziviltechniker MEP engineer:KWI Engineers GmbH contractor:Swietelsky AG construction period:January 2020 – May 2021 building area:2,900 sm program:30 guestrooms, board rooms, conference center, underground tunnel connecting to original structure:cast in place board form concrete with precast vaults
客服
消息
收藏
下载
最近









































