查看完整案例


收藏

下载
世界是绝对黑白的存在,正如我们绝对掌握着画笔的笔触,黑白键的节奏,沉默与狂欢,大题小做的相爱,若无其事的离别……—— 大曾
这是一个挑战传统“茶空间”设计方式的项目,中国茶与消费者沟通长期处于失语状态,业主从筹备阶段开始就将其定位在“新型茶空间”的非传统领域,纸间营造得以从不同角度洞开茶饮的神秘之门。
01 INDOOR SCENE 内景
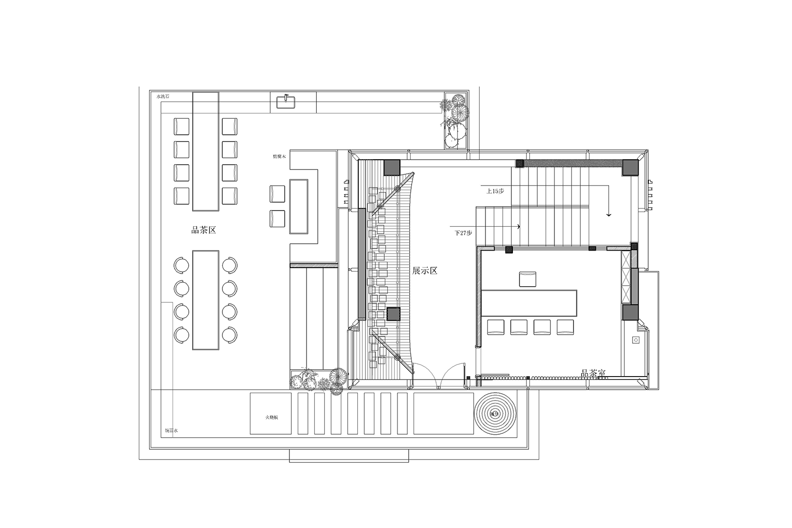
中国茶的当代化和年轻化,设计师在对空间进行深度解剖以后,决定逆思维叙事,改变传统茶室纯粹以包厢接待的方式,选择更便捷且现代的吧台接待模式。“与人见面”的近场体验,有助于重建人们的信任系统。
P. 01
P. 02
P. 03
沿着建筑本身的原始骨架,空间生长在一个四面采光的独栋建筑体内,这为营造出高度集中人流的设计提供了良好条件,因此明档被设计在一楼空间的中央核心部位。
视线聚焦之处,万物生长。沿街的大落地窗前被土壤填充,绿色的植被构筑出“内景观带”。人在草木间,可诗,可画。
P. 04
P. 05
P. 06
P. 07
P. 08
P. 09
P. 10
P. 11
入口处的口袋型结构,构成了内外两种不同的空间感受,外部是内凹的“礼让”,内部却成了一个外凸“起伏”,起伏处蜿蜒出的过道,串联起了公域和私域。
P. 12
P. 13
P. 14
02ENCLOSURE
围合
通往二层空间的楼梯挨着“L”型夹角的大落地玻璃,设计师利用构造砖的砌筑,将内外景人为切开。原因是该区域的街景较为杂乱无序,但构造砖所形成的光影却能为原本不利的条件带来意想不到的加分。
P. 15
P. 16
P. 17
P. 18 “发光踏步”是梦境与现实之间的桥梁。设计师期待这种体验带来深刻的启示和领悟。
P. 19
P. 20 踏着光的通道,沿途是有风景的,那风景好似一幅还未完成的画,是绣铁板裁出了太湖石的形状。
P. 21
P. 22
P. 23
03ARTISTIC
意境
木头装置的设计,它们都是斟酌过的。每一次的心动,都不是凭空捏造。每一处意境深远的细节,都是有人刻意为之。
P. 24
P. 25
P. 26
P. 27
P. 28
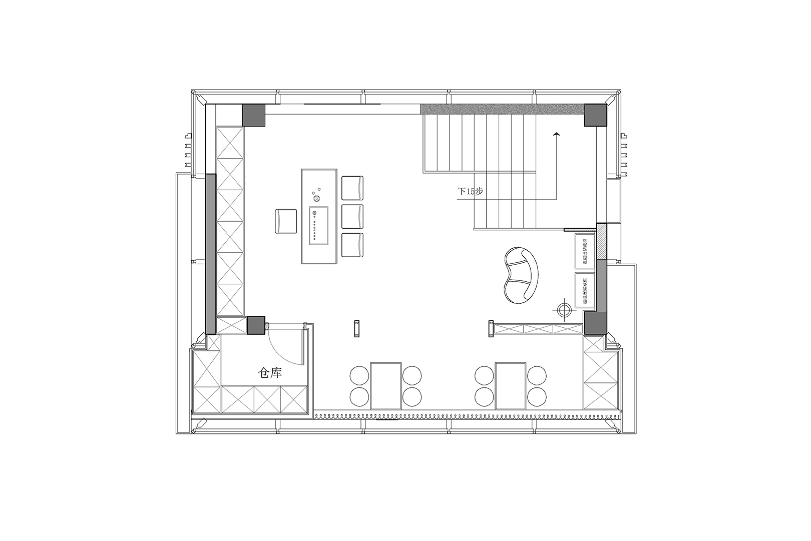
设计师在设计过程中强调节奏的逐层递进,“味蕾”经过一楼空间的迷幻调戏之后,二楼包厢作为整个设计思路的扩展网络,被千呼万唤地呈现出来。它所荷载的是这家店最为核心的部分。
P. 29
P. 30
P. 31
P. 32
P. 33
P. 34
太湖石在设计语言里,有“靠山”的寓意,主人座背后有“靠山”,生意自然顺遂。
水晶砖被铁板型的太湖石包裹,让观者产生分不清:水晶砖是太湖石,还是锈铁板是太湖石的错觉。其中禅意,各人自解。
P. 35
P. 36
P. 37
04OUTDOOR SCENE
外 景
二楼露台设计师特意安排了一汪镜面水。除了加强楼板的隔热作用外,也掀开了露台休闲区的盖头,踏着汀步从室内走出,一步步走向别有洞天。
P. 38
P. 39
沿街的主入口做了内退设计,从视觉上勾勒出商铺沿街面的层次感,以退为进,内部栖息地是森林草原,具有生态感;其夜行性特点,强调独特灯光照明下神秘浪漫气氛。
这个空间,叫夜莺的信纸,是表达情感、传递信息、记录历史、见证文化的载体和媒介。回到最初的命题,是中国茶的当代性和年轻化的诉求。
P. 40
P. 41
• 05
ANALYSIS
DIAGRAM
分析图
手绘稿 P. 42
1F 2F 3F 平面图
INFO
- 项目名称 -夜莺的信纸
- 设计机构 -Paper Design 纸间营造
- 主案设计 -大曾(曾承林)阿德(杨绍德)
- 设计制图 -缪芬萍
- 灯光设计 -梁剑东
- 项目面积 -300㎡
- 项目地址 -福建 福州
- 项目摄影 -李玲玉 大曾
DESIGNER 曾承林 纸间营造主理人 杨绍德 纸间营造主理人
「PAPER DESIGN」2021 年成立于福州,其前身为云南几木设计,由几位青年设计师共同创办,几位合伙人从 2008 年开始协同与统筹细分工作领域,历经十多年砥砺前行,终于在 2021 年完成东、西贯通,在福州顺利会师。
设计业务涵盖:酒店、民宿、办公、地产、餐饮、商业、住宅等室内外与软装设计及施工,致力于为客户提供更加优质的设计服务,用艺术的手法打造空间的无限可能,孜孜不倦地为商业空间创造财富,为人居空间创造温暖,带着新一代设计师的使命感不断创作出一个又一个具有时代精神的作品。
客服
消息
收藏
下载
最近


















































