查看完整案例


收藏

下载

翻译
Dublin Library brings an urban gravity and mentality to an established suburban context. The library aims to be part of a more connected and walkable community through thoughtful landscape design and active public spaces.
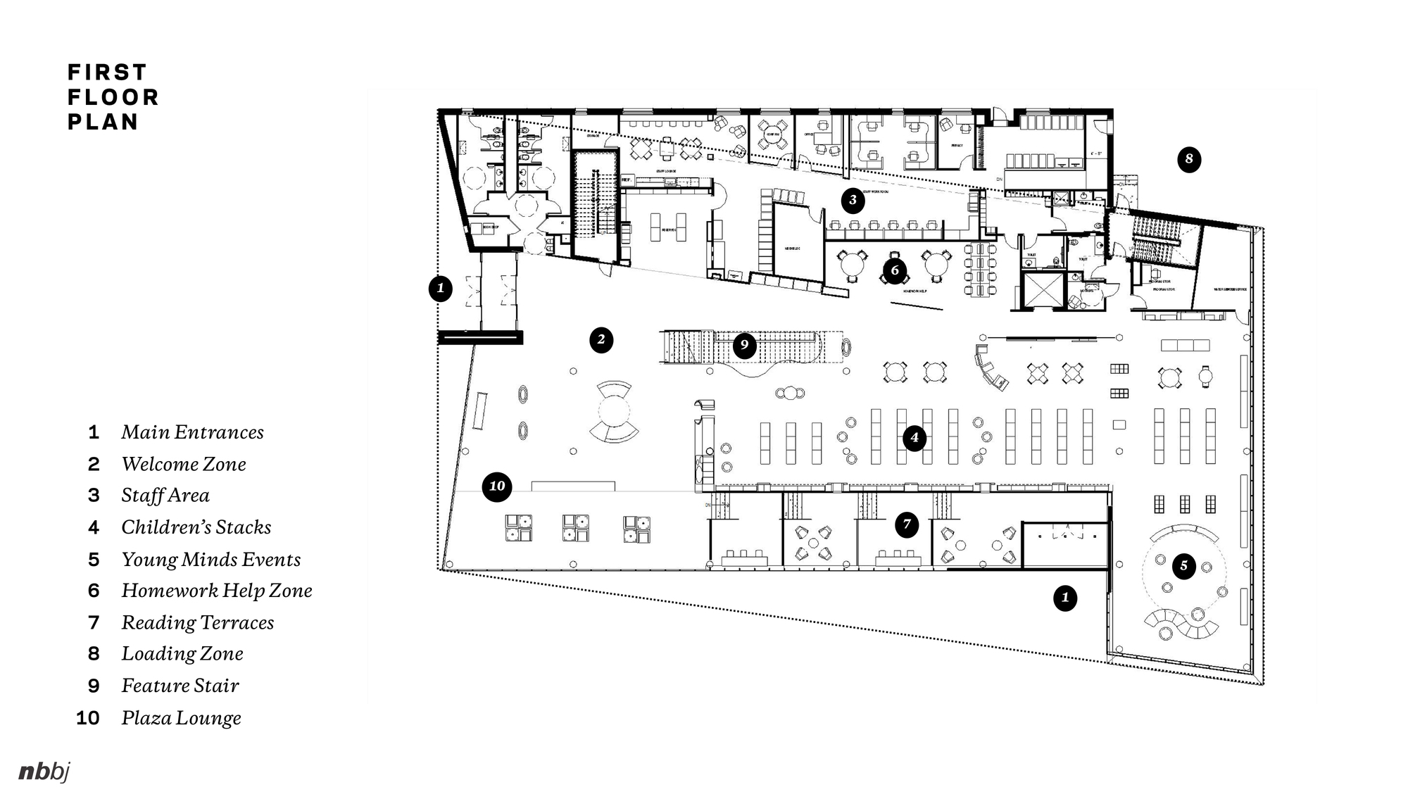
The new Dublin Library stands tall as the Columbus Metropolitan Library system’s largest branch. Doubling the square footage of the previous building, the library merges spaces for quiet introspection with places to meet, socialize, study, hang out and plug in. A double-height atrium brings daylight to all levels.
Programmatically, the site size and topography have required a reduced footprint and cemented a design strategy that maximizes space, lifting a less-active stack volume above a split-level ground condition. Its dynamic upper volume cascades above a heavy plinth that negotiates grade and facilitates movement down and through the library space.
At grade, the library puts very little obstructions between itself and a plaza adjacent to the south. Conceived of as a flexible space for the people of Dublin and the public at large, the new library extends learning opportunities and interaction through space-making, becoming a hub in a suburb on the cusp of transformation.
客服
消息
收藏
下载
最近

















