查看完整案例


收藏

下载

翻译
The new Täuffelen Primary School and Kindergarten complex and its thought-through architecture for school buildings, offers pupils and teachers a maximum window seat capacity and benefits from fantastic views of the Berner Seeland. Preserving the generous space of its outdoor surroundings, the main school building is linked with the sports hall. Both integrate perfectly and naturally into the village structure and surrounding area.
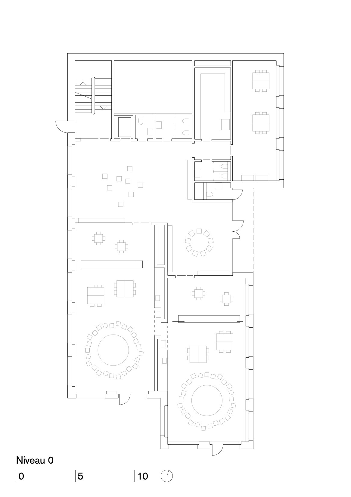
The slightly sloping terrain equally characterizes the concept for the outdoor-space and the overall development of the building. Outdoors, generous multi-levelled steps feature seating areas offering a variety of qualities for leisure activities. The new building hosts four spacious classrooms, two flexible kindergartens at ground floor level and a variety of separate multi-purpose rooms.
Offering fully fletched minergie standards, photovoltaic roof top systems, the whole project complies with all aspects for special needs. The new fire protection standards in Switzerland have been taken into full account and hence allowed to optimize the access areas to the individual classrooms. As a result former long dark hallways turned into key signature features of the building: attractively furnished multifunctional spaces allow pupils and teachers space to retreat, work, rest and chat.
Limitation to a minimum of carefully selected materials and the harmonious interaction of concrete, warm colour shades used for floors, window frames and ceilings, grant a quiet, relaxing atmosphere. Wooden lamella ceilings in the multifunctional areas and ribbed concrete ceilings in the classrooms allow all technical installations to be discreetly integrated.
This again grants an attractive distraction-free tranquil appearance. This kind of school building architecture, offers flowing spatial and multi-levelled landscapes for flexible multi-purpose usage, outstanding room qualities and a unique identity, allowing new forms of interactive teaching and communications.
客服
消息
收藏
下载
最近




















