查看完整案例


收藏

下载

翻译
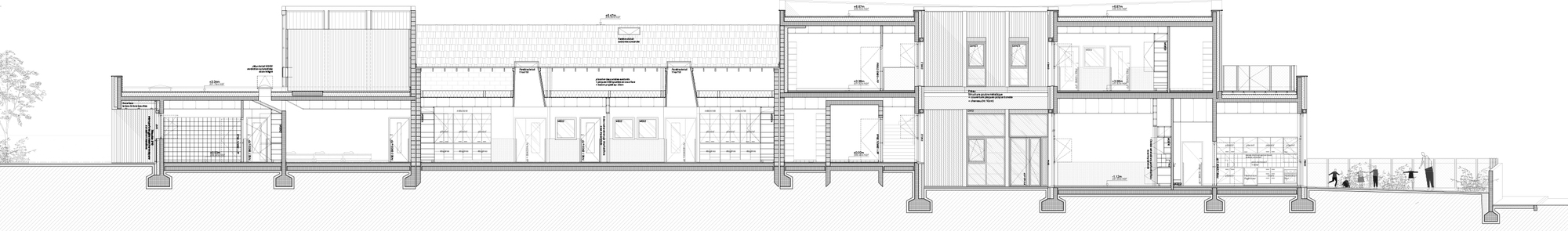
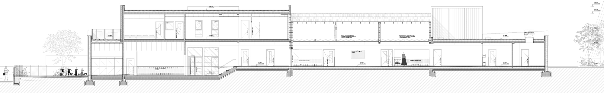
The project CHILHOOD HOME is located in Saint-Genis-Les-Ollières, Rhône, France. It's composed to a nursery, a recreation center and a maternel assistant's relay.
It was built in a residencial district, at the limit with the town center, and it creates links with others publics equipments. After an urban analysis, which reveals an urban pedestrian network linking the various public squares of the municipality, the project is developed as a continuity of the urban plot with two new public squares in front of each entrance of the equipment and a pedestrian way to link them.
The first architectural principe is a game of various layers, with variations of acroteria, making it possible to make transition between the different surrounding typologies.
The building, made of concrete, imposes its form of a public equipment, while integrating in a subtil way in its environment. A white concrete facade frame lighten the overal shape, while highlighting the stamped concrete imitating the wood. Conversaly, all exterior doors are lined with wood to make them dissappear.
客服
消息
收藏
下载
最近






























