查看完整案例


收藏

下载

翻译
In need of educational infrastructure, Goodplanet foundation aims to install a preschool with bioclimatic functioning, as an extension to the existing school building.
The building is inspired by a new vernacular from local typologies, materials and techniques, with a contemporary look, performant bio-climatic functioning and earthquake proof design.
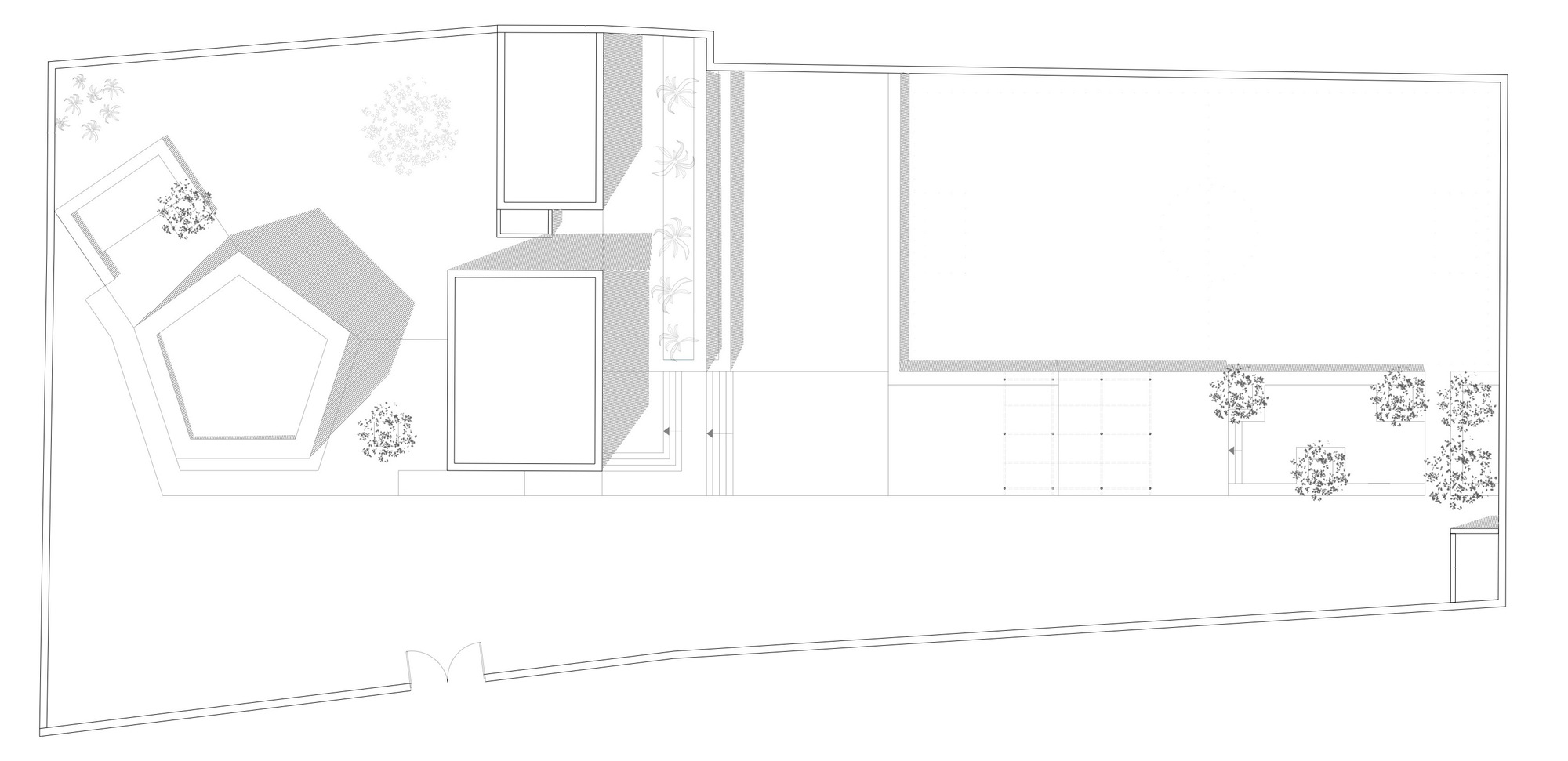
The preschool is implemented on the highest level of the compound, and gives way to a landscaped strip of playground area with benches and swings, going down the compound. The playground strip creates zones of open play area between strip and compound wall: football area, outside class area, playground area for small kids, playground area for bigger kids.
The preschool itself is pentagonal to open up space outside in relation to rectangular compound walls, and to create round space inside which can support alternative teaching techniques such as round table teaching. The area is known for lime production, as well as nature stone, resulting in the choice for lime mortared stone masonry. The roof is made of lime tadelakt on a base of earth-lime. The interior finishing is made of polished nouss-nouss, a "half-half" of earth and lime to create a breathable interior plaster which diffuses indirect sunlight. The southwest façade has a cavity wall for insulation and a big thermal mass, making the building cool during the day, but warmer through the night until the morning. The northwest to southeast façades have window openings with diagonal reveals to let in a maximum of sunlight. The building is made conform the earthquake norms of Morocco, with concrete columns next to façade openings.
客服
消息
收藏
下载
最近








































