查看完整案例


收藏

下载
PARTⅠ 项目概况 1
△校园东北鸟瞰图©THAD
淄博大学城一期项目位于山东省淄博市经开区,鲁泰大道以南、广州路以西,建成后将成为山东农业工程学院的主校区。校园规划以学术规划为先导,构建 10 分钟步行友好的学术社区。校园建筑与环境有机结合,东西向的生态轴-公共轴与南北向的学术轴建立校园空间骨架。
△西侧假山远眺水面及图书馆©THAD
△图书馆立面细部©THAD
图书馆位于轴线交汇处,以抽象的辟雍意象与传统文脉产生对话,总建筑面积 48260 平方米,地上 8 层,地下一层,高度 45 米,为一类高层建筑。建筑属一类高层建筑。建筑的设计使用年限为 50 年,耐火等级一级。屋面防水等级为二级,地下室防水等级为一级。抗震设防烈度按 7 度设防,采用钢筋混凝土框架剪力墙结构。
△会堂及学生活动中心东侧人视©THAD
△会堂及学生活动中心一角黄昏©THAD
会堂及学生活动中心位于东西轴线西段端,体量错落有致,与中心绿地自然融合,建筑面积 5966 平方米,高度 15 米。建筑属多层建筑。建筑的设计使用年限为 50 年,耐火等级一级。屋面防水等级为二级,地下室防水等级为一级。抗震设防烈度按 7 度设防,采用钢筋混凝土框架结构。
PARTⅡ 融合人工与自然 创造可持续的山水校园
△北侧中轴线鸟瞰©THAD
△北侧主入口广场远望图书馆©THAD
营造自然与园林中的校园,主要公共建筑沉浸于自然环境之中。东西向生态轴串联主入口广场——图书馆——中心水景——会堂及活动中心——坡地景观,图书馆与会堂临水相望,会堂建筑局部覆土,与自然相融,营造山水相依的校园特色空间。
PARTⅢ 探讨大学校园发展趋势 营造活力学术社区 3
△东侧主入口广场远望图书馆©THAD
△会堂及学生活动中心中庭©THAD
建筑功能适应开放、复合化需求。图书馆以圆形内院整合各类公共服务设施,成为校园活力公共空间。会堂及活动中心以十字形公共空间整合会堂、多功能厅、学生服务及活动设施,地景式屋面供人室外活动。
PARTⅣ延续地域历史文脉,得体表达建筑的当代性
△会堂及学生活动中心东南鸟瞰©THAD
主要建筑呼应在地历史传承,风格协调又各具特色。图书馆建筑方圆结合寓意辟雍意象,以木色渐变的曲线和格构,似一卷徐徐展开的书简。会堂及活动中心起伏延展的绿化屋面,为校园增添新意、趣味与活力。
PARTⅤ 技术成效与深度 5
△图书馆室内阶梯式交流空间©THAD
校园空间模式创新,建设复合圈层型校园,创造共享、交流的场所环境,交融、弹性的功能组织模式,教学、生活一体的学术社区。着眼学校未来交叉学科发展,关注空间利用的灵活性,各组团既整体协调,又适应不同需求。通过建筑、景观的融合,创造适宜师生交往交流与创新的学术空间,实现多层级、点线面兼顾的公共空间。
△图书馆室内侧庭空间©THAD
△会堂及学生活动中心门厅©THAD
△会堂及学生活动中心中庭©THAD
体现以学生为中心的人文主义理念,以开放、连续的自然山水为生态核心与纽带,营造尺度宜人的多功能、复合型聚落,图书馆提供校史馆、展厅、咖啡厅、开放书店、小组讨论空间、研修间等新功能;会堂及活动中心为学生提供丰富多样、室内外并重的公共活动空间;努力营造成为师生工作、学习和生活的“家”,构筑具有传统意蕴、山水相融、聚散有致、步移景异的校园格局。在经济适用的基础上,匠心独具打造标志性建筑,沿北侧鲁泰大道形成良好的城市界面,树立大学城的新形象。
PARTⅥ 综合效益 6
△会堂及学生活动中心、图书馆俯视©THAD
作为淄博市重点工程,该项目的设计与建设为山东农业工程学院的跨越性学科发展提供了契机,成为学校发展的关键性物质空间支撑。该项目竣工使用近 3 年来,不仅获得了全校师生的一致认可,也成为山东省高校基建项目的标杆。校园规划与建筑设计充分考虑到当代学科发展,并致力于服务周边社区。
△校园鸟瞰图©THAD
主要的公共建筑图书馆、会堂及活动中心等,功能合理,经济适用,为师生们提供了高品质的日常工作学习场所,同时成为淄博市重要的标志性建筑,校园的投入使用也将助力城市实现新形势下新旧动能转换与社会经济的创新发展。
PARTⅦ技术图纸 7
△总平面图©THAD
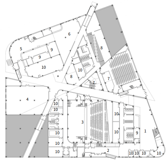
△图书馆首层平面图©THAD
△图书馆五层平面图©THAD
△图书馆西立面图©THAD
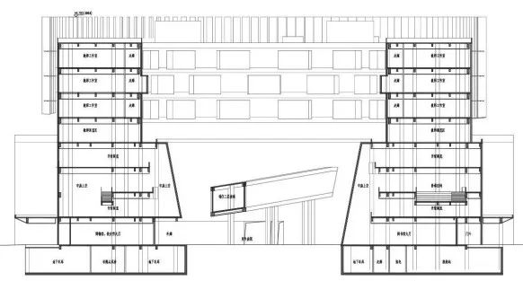
△图书馆剖面图©THAD
△会堂及学生活动中心首层平面图©THAD
△会堂及学生活动中心立面图©THAD
△会堂及学生活动中心剖面图©THAD
PARTⅧ 项目信息 8
项目名称丨淄博大学城一期 图书馆、会堂及学生活动中心
项目地点丨山东省淄博市
建筑类型丨教育建筑
用地面积丨67.74 ha
建筑面积丨54,226 ㎡
设计时间丨2019-2020
竣工时间丨2021
设计单位丨清华大学建筑设计研究院有限公司
合作单位|淄博市规划设计研究院有限公司
建设单位丨山东农业工程学院淄博校区工作领导小组工程建设办公室
项目负责人丨刘玉龙 王彦 姚红梅 辛桂兴
建筑设计丨祝远 李坚 任培 张守鹏 孙华阳 孙明录 孙晓磊
结构设计丨蔡为新 刘俊 窦鹏
给排水专业丨刘福利 王辉
暖通专业丨韩佳宝 杨凯
电气专业丨王磊 孙霄
客服
消息
收藏
下载
最近



























