查看完整案例


收藏

下载

翻译
Commissioned by the Office of Arts & Culture (ARTS), this dynamic new space for arts and culture responds directly to feedback from community focus groups with an emphasis on people of color. Located on the top floor of Seattle’s historic King Street Station, the 17,500-square-foot space designed by Schacht Aslani Architects provides flexible, co-use areas for community gathering in addition to professional offices and a presentation gallery.
Beginning in 2016, ARTS worked with Olson Kundig to create concept designs for the new space. The initial concept for this adaptive space centered on dynamic areas to serve community needs, creating a welcoming and vibrant community arts and cultural hub in the heart of Seattle. The final design met rigorous sustainability requirements – it is the first City of Seattle funded project to be designed to LEED® v4 Gold certification.
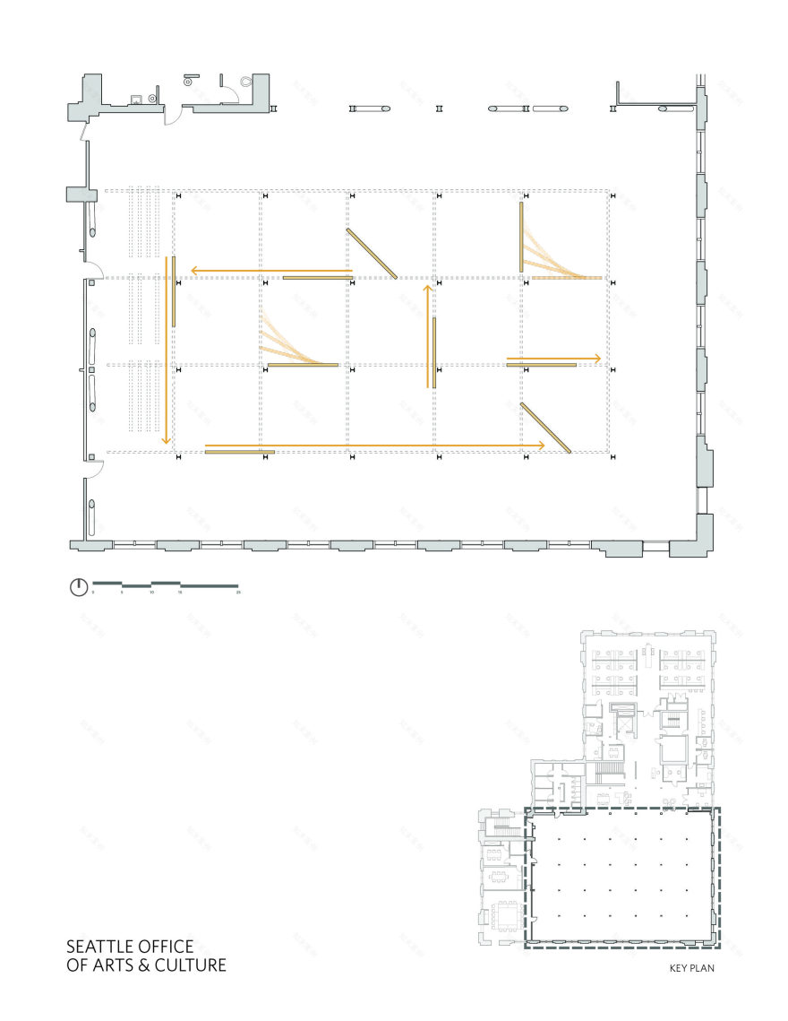
A public lobby, the “Living Room,” connects the large multi-disciplinary presentation gallery with the offices and a studio for artists-in-residence. In the 7,800-square-foot presentation space, kinetic gallery walls designed by Olson Kundig enable the community and artists to reconfigure the displays as needed for changing exhibitions and events. Suspended from a custom-designed elevated track inspired by the railroad tracks that serve the station below, a set of eight movable walls with integrated lighting support a wide range of displays and spatial configurations. The result is a flexible space that can easily transform to meet the evolving needs of ARTS and the community.
The unadorned historic structure and kinetic gallery walls that characterize the presentation gallery allow the communities that will use it to project their own identities in the space. Throughout, new architectural interventions emphasize transparency, highlighting and revealing historic elements of the original building such as the historic masonry and steel structural system, ornamental stairway, and original terrazzo floor. When contrasted with the restored train station, the unfinished character of the ARTS space tells the story of King Street Station’s evolution from an early twentieth-century train station to a contemporary transit and cultural hub for the City of Seattle.
客服
消息
收藏
下载
最近





























