查看完整案例


收藏

下载
房屋,怀特菲什,美国
设计师:Olson Kundig
面积: 6500 ft²
年份:2016
摄影:Nic Lehoux
建造商: AutoDesk, Lutron, B&B Italia, Dynamic Architectural Windows & Doors, Paola Lenti, ARC Flooring, Adobe, Bonderized, Jieldé, Newforma, Norris Woodworking, Olson Kundig, Phantom, Sawkille, Sutherland, Tom Kundig, Vladimir Kagar
设计团队:Gizmo Design, Tom Kundig, Justin Helmbrecht, Debbie Kennedy, Laina Navarro, Brianna Schoeneman, Irina Bokova, Phil Turner
承包商:Bear Mountain Builders
城市:白鱼
国家:美国
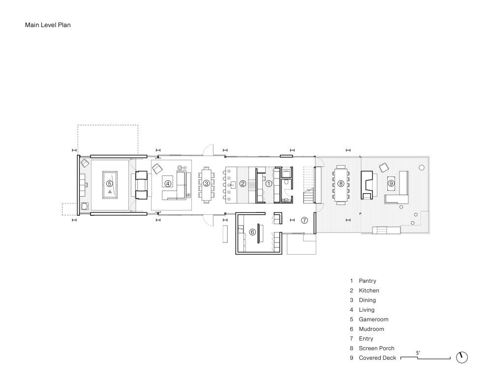
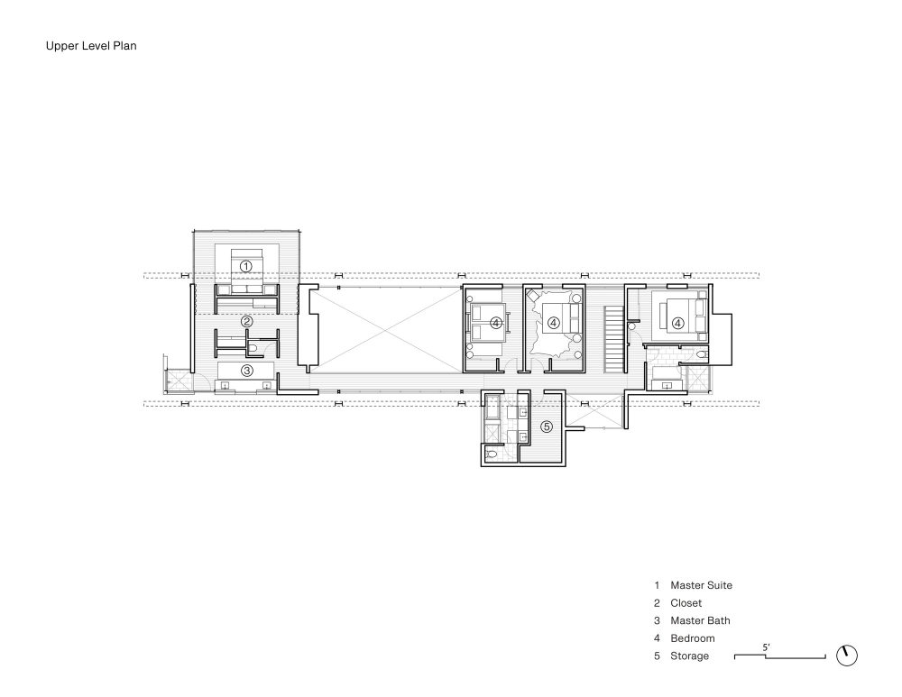
从本质上讲,这座度假屋旨在创造一个年轻的家庭可以聚集在城市之外的地方,享受户外活动并留下美好回忆的地方。 该房屋位于美国黄松森林和湖泊之间的过渡带或边界,是家庭体验大自然的框架。 房子强调了这两个生态区之间的交汇点–这是家庭存在和遗产的鲜明而又微妙的标记。 房屋的重要性有助于其融入景观。
回收的Barnwood的外墙板在风化时会变成银色,将房屋编织成森林。 房屋的中心是开放式起居和用餐区,其两侧各有一个双高的断头台窗墙。 从远处看,这种透明性使整个房屋都可以看到远处的湖泊。 当两个窗口都打开时,效果是一个单一的基座浮在森林地面上方。
本土植物长到家的边缘,南端的遮蔽式门廊通向有盖甲板。 这些不同程度的围护结构使家庭在所有季节都可以与自然融为一体。 对于家庭来说,这是一个长期的度假胜地,他们在建造房屋之前就已在那里露营过,该房屋的设计旨在保持家庭在土地上度过的时光所带来的自然发现感。 场地规划围绕穿过森林并通往湖泊的路径进行组织。
从车道出发,一条碎石路穿过草地到达房屋的入口,然后绕着房屋蜿蜒而下,沿着山坡到达湖水。 一路走来,一系列的户外空间,包括有盖的甲板,火坑和一个热水池,依nest在山坡上,描绘了从房屋到湖泊的发现之路。 “这个家庆祝在森林,湖泊和草地之间的过渡带状况。 它在边缘–从草地的较浅部分过渡到通向下方湖泊的陡峭斜坡。” –汤姆·昆迪格(Tom Kundig),FAIA,RIBA,设计负责人。
项目完工照片 | Finished Photos
客服
消息
收藏
下载
最近

























































