查看完整案例


收藏

下载
纷繁迷人,取而悦
醉中似光阴凝止
心本初
可从容褪之
让岁年再现,重起流逝
自此净观起落
无染一尘
丨 如一辰语 丨
主案设计 丨 袁辰
Principal Designer 丨 Yuan Chen
辅案设计 丨 章婉静
Auxiliary Designer 丨 Zilli
项目地址 丨 台州临海
Location 丨 LinHai,TaiZhou
项目面积 丨 120㎡
Area 丨 120㎡
Entrance 入户
Kitchen & Dining area 厨房与餐厅
丨落丨
家是起点,也是落点。
而往往落下时,才回于本初。
躯体与精神皆源起自然。
运用木、石等物料营造质朴的调性,既表达对自然的感恩,也体现淡然的生活态度。
Reading room 书房
丨筑丨屋主从业古建多年,
也热衷于此,希望在设计中体现这点。
不以单一的装饰思维演化空间,而从建筑与园林汲取,引入室内,打造一个专属的具有代表性特点的家。
Master
bedroom 主卧
Bathroom 卫生间
Sec
ond bedroom 次卧
丨本丨
归从自然而然的本然,是人类从古至今一直追
寻的至高之道。
它给予生活的启迪是,过于现代化、物质化的环境在某种层面上是空洞的。
反而本态的物质基础上,更有利于建立起高远的精神涵养,这也是这个时代与未来的需要。
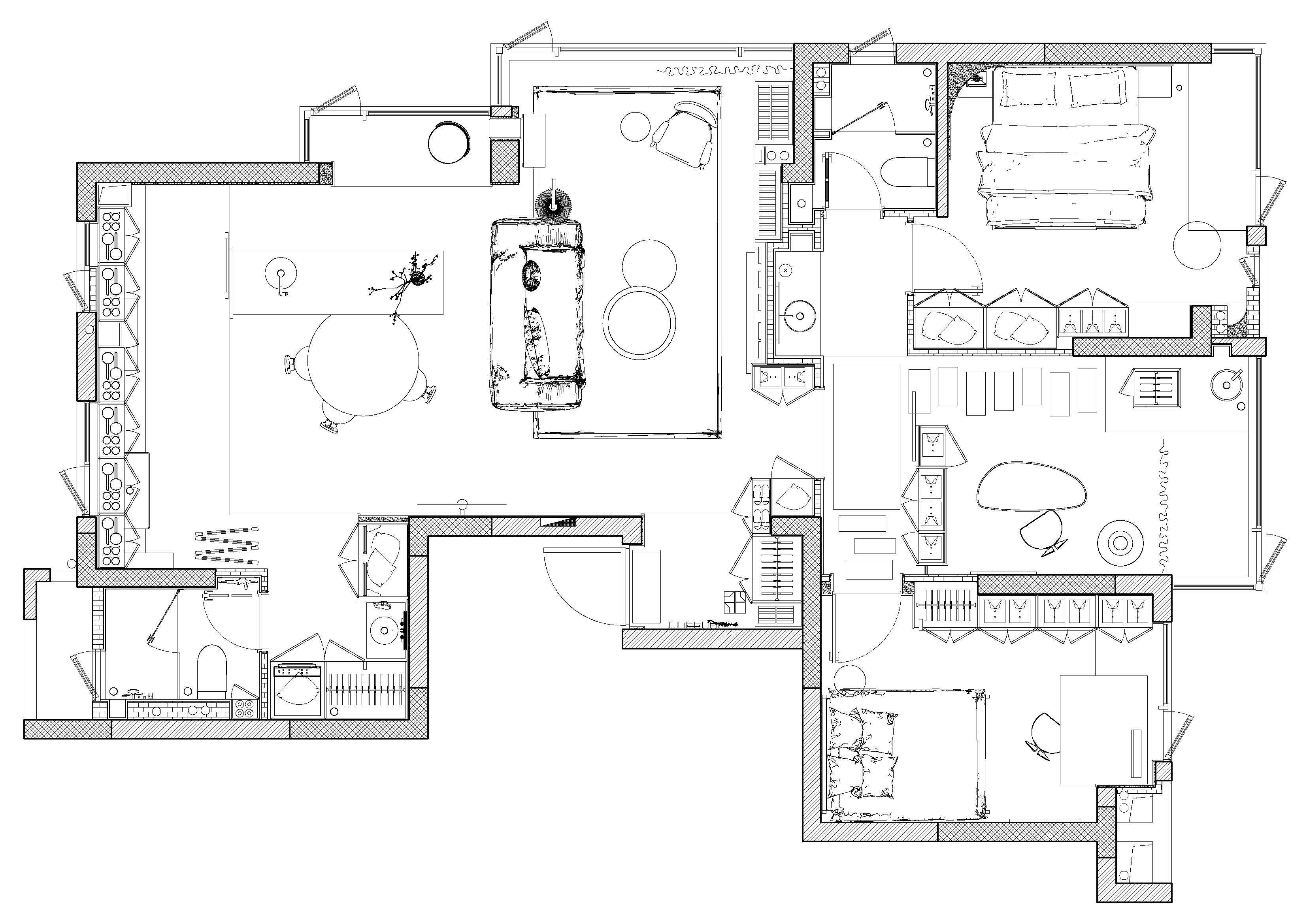
Layout plan 平面布置图
如一设计 RUYI DESIGN 丨 原创出品
客服
消息
收藏
下载
最近


































