查看完整案例


收藏

下载
我有一所宅子
落在云端
伫立着仰望
游鱼、飞鸟、粼粼波光
生活里
应有些向往
揉进云里
伴随音符与茶香
飘去远方
丨如一辰语丨
主案设计 丨 袁辰
Chief Designer 丨 Yuan Chen
辅案设计 丨 章婉静
Assistant Designer 丨 Zilli
项目地址 丨 台州 临海 城市之光
Location 丨 Chengshizhiguang,LinHai,TaiZhou
项目面积 丨 220㎡
Area 丨 220㎡
Entrance丨Second floor 二层入户
二层厨房与餐厅
Living area丨Second floor 二层客厅
丨起舞弄影丨
高,是本案的客观状态,而设计更想表达的是一种高处应有的空间姿态。
远离地面百米有余的住宅,把人送到了地表喧嚣之外的空中。此处为家,神清气爽。
可有人间烟火,可有阔论高谈,亦可有空灵琴声,伴随翩翩舞影。
于是,优雅与自由,是空间姿态的主旋律。
Tea area丨Second floor 二层茶室
Piano area丨Second floor 二层琴房
丨心生向往丨
向往是人的思绪与天空的美丽邂逅,而往往天空是沉默的。我们希望它可以给予人一定的回应,于是加入房顶水池,当波动的水影洒向地面,仿佛天空正在对你诉说着什么。这是一场独特的对话,惬意、留恋。
Balcony丨Second floor 二层过道
Corridor丨First floor 一层过道
Reading room丨First floor 一层书房
Daughter’s room丨First floor 一层女儿房
丨胜似人间丨
除了空间调性与情绪的表达,强大的生活功能是必不可少的。为了利用好采光与窗景等优势,我们在室内运用了非常规形式,设出众多生活上的保障与拓展功能。人不能没有向往,但也乐于遍食烟火,身在人间,胜似人间。
Master bedroom丨First floor 一层主卧
Master bathroom丨First floor 一层主卫
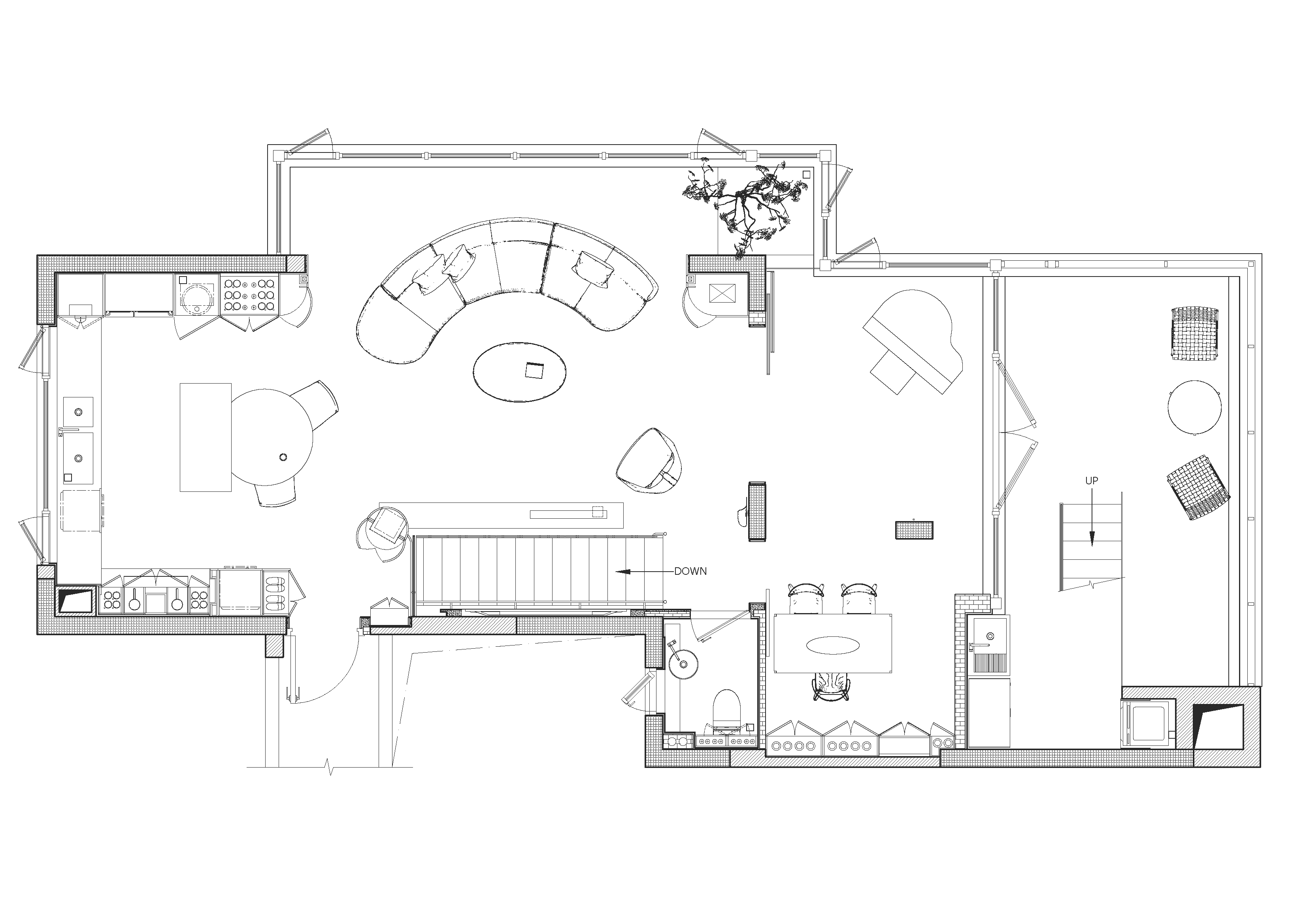
Layout plan丨Second floor 二层平面布置图
Layout plan
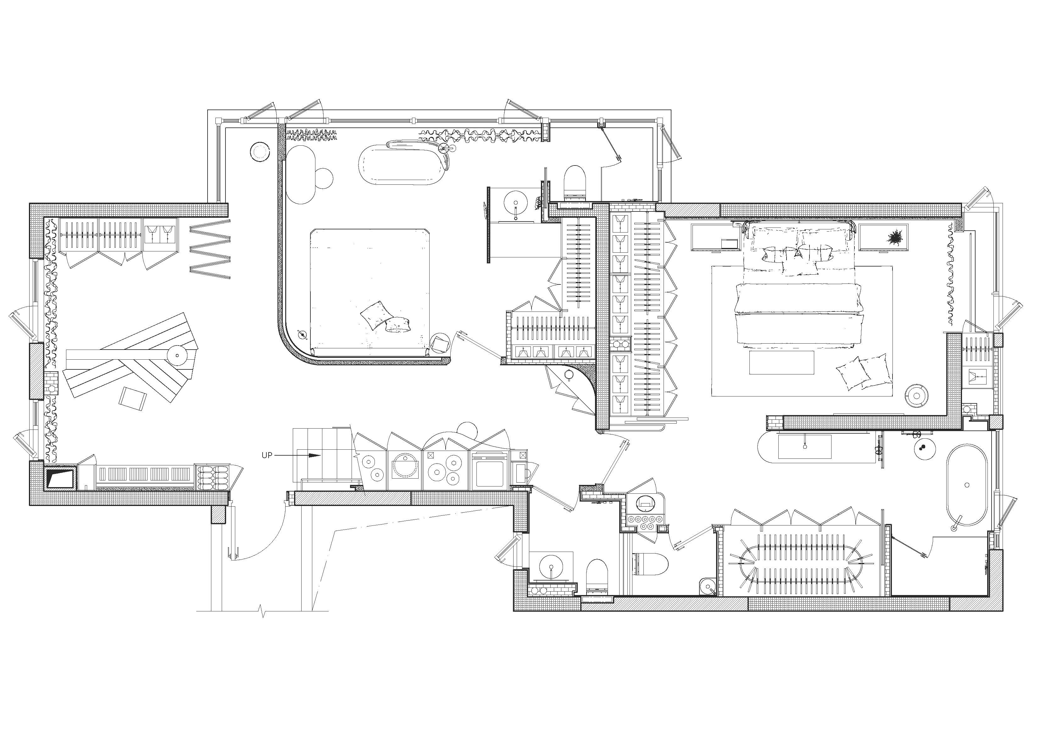
丨First floor 一层平面布置图
如一设计 RUYI DESIGN 丨 原创出品
客服
消息
收藏
下载
最近























































