查看完整案例


收藏

下载
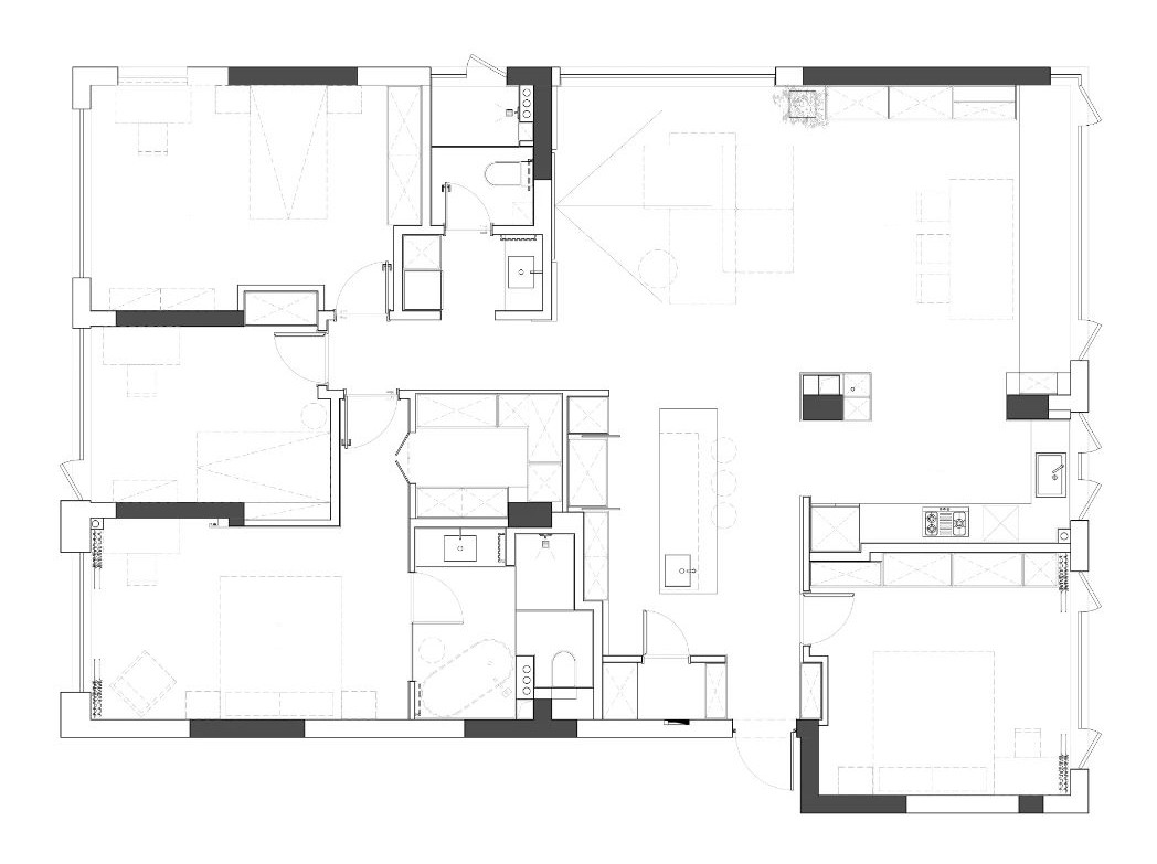
该项目楼层位于四楼,虽然楼层不高但是恰好都可以看到绿色,我们将空间都打开,无论在客餐厅的某一处都可以看到外面的景色。
不同质感的白色材质,橡木色占据了空间中大部分墙面,局部区域的黑灰色让空间更有层次划分,大面积的隐形门以及顶天立地的柜门让空间更加干净利落。
中岛上的轨道灯一直延伸到厨房,成为顶面区域划分的纽带;隐藏式油烟机以及吊柜内部隐藏的拉篮五金让以往杂乱的厨房瞬间干净整洁;而西厨区域隐藏式推拉柜门将极简美学贯彻到底。
地址:中国杭州
面积:180平方米
设计公司:Mr来设计工作室
设计团队:来波 付蓉
施工团队:杭州梵品筑匠
空间摄影:吴昌乐
客服
消息
收藏
下载
最近





















