查看完整案例


收藏

下载
Loja, Showroom, Brasília, Brasil
设计师:Studiopippa
面积:630 m²
年份:2018
摄影:Haruo Mikami
Arquiteta Responsável:Priscila Gabriel
设计团队:Gabriela Schinzel, Valentina Moura, Maria Eduarda Millington, Giovana Mapelli
客户:São Geraldo
Cidade:Brasília
País:Brasil
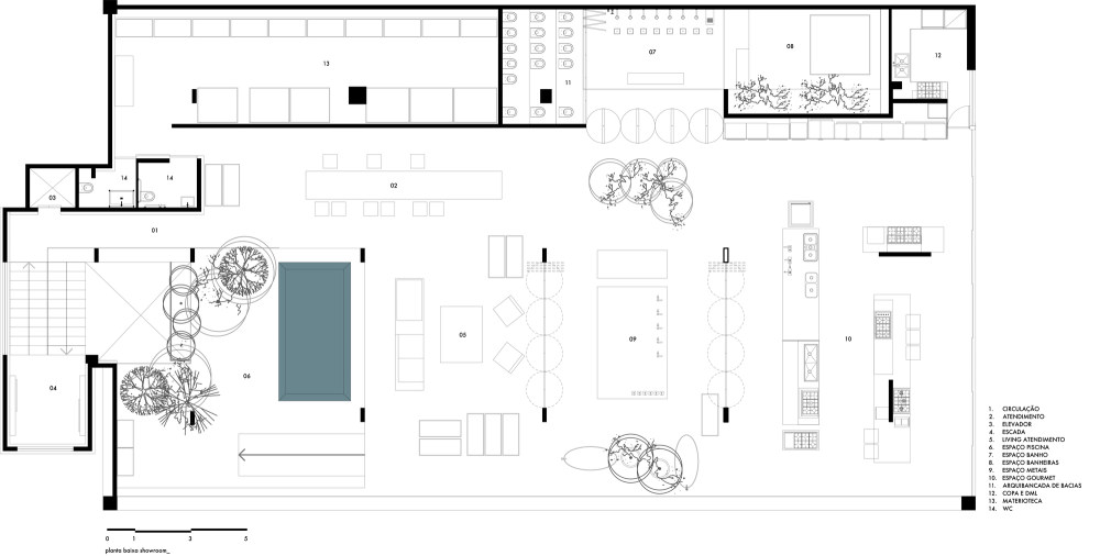
设计师描述 | Designer description:
Criar um projeto limpo e com poucas informações para uma loja de acabamentos, onde usualmente os produtos preenchem bastante o campo visual, foi um grande desafio.
Aqui a estratégia do projeto foi tratar o produto como uma obra de arte em uma galeria:exposto no silêncio arquitetônico necessário para que eles mesmos pudessem falar.
A ideia foi tirar absolutamente tudo do espaço, todos os revestimentos que ali existiam. As vigas e pilares são lavados e aparentes, mostrando a estrutura como ela é, sempre revelando a natureza do material.
项目完工照片 | Finished Photos
设计师:Studiopippa
分类:Loja
语言:葡萄牙语
阅读原文
客服
消息
收藏
下载
最近






































