查看完整案例


收藏

下载

翻译
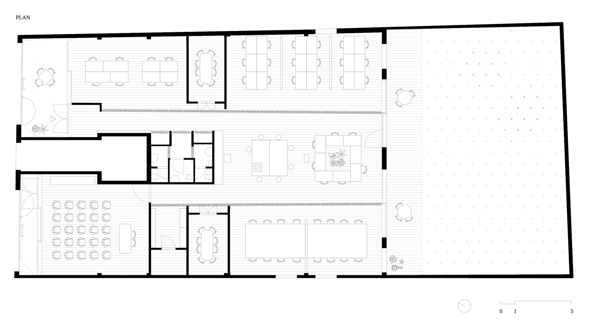
An old warehouse in Porto which was vacant for 44 years, with an anonymous ground floor underneath a residential multi-storey building, in a neighbourhood slowly abandoned by commerce and businesses in the last decades.
oitoo brought it back to life as armazem cowork. This project is a reflection on the hidden qualities of often unused ground floor spaces and showcases the design methodology potentiality as a catalyst of reactivation.
The project hopes to demonstrate the underlying qualities and opportunities of unused ground floors and remake the collective opinion of these spaces often tainted by a poor public perception as unsafe and unfit for inhabiting or working. If these spaces remain unoccupied, street life will continue to be absent. Walking on a sidewalk amidst neglected, empty stores is a harrowing experience, and emptiness breeds poor use of public space, resulting in disquieting, seedy streets.
The change of use from former warehouse to co-working office will hopefully contribute to the reactivation of the street level as a lively space. A buffer space mediates street and working areas and acts as a display for businesses inside; in the back, a surprising garden allows for perfect outdoor work or leisure moments.
客服
消息
收藏
下载
最近





























