查看完整案例


收藏

下载

翻译
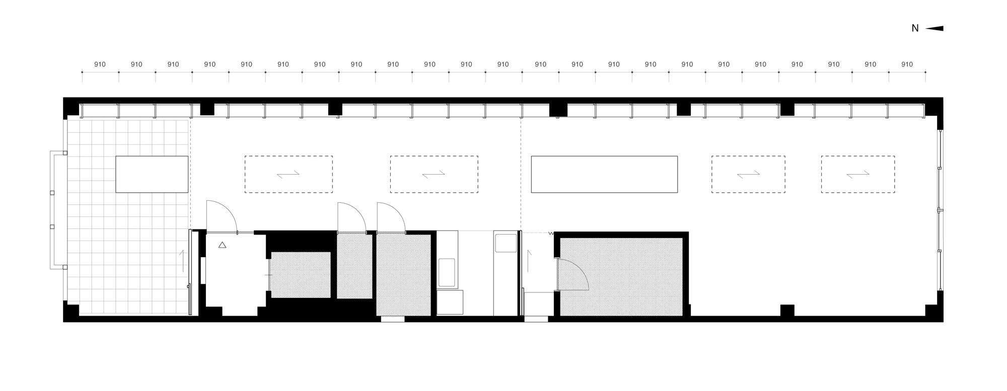
A new office space designed for a ‘Calm Design’ global start-up firm “mui Lab” from Kyoto. Located along Ebisugawa street known as a furniture craft + retail district, a deep tenant space (on previous Kyoto-machiya plot) is renovated with minimal interventions of a 21-meter-long grid shelf, a set of fixed/movable tables, and two big sliding doors.
The products by mui Lab is a unique hybrid of technologies (sensing devices, mother boards, and touching panels, etc) and a natural materiality (wood). To develop such a hybrid, there are not any members with same knowledge and skills, creating a kind of contemporary craftsmen town in one firm. The design aims to spatialize this hybrid identity of the firm.
The gridded shelf is made out of regular-sized timber (30mm x 40mm) with 910 mm pitch, covering existing unregularly-located columns and reintroducing machiya-type module, as well as creating a new interior façade. It also works as the frames of two big sliding doors. A set of tables with same profiles is utilized for various activities such as a reception, a meeting, an assemblage of hardware, programming, lunches etc. Some of them are movable, attaching or detaching with each other to create different modes of operations.
When the hardware assemblage hits its peak, the assemblage area becomes bigger. When they host a public event, meeting, reception, and eating tables become together to create a one big table, for instance. The idea of such flexibility in a long-deep space comes from the notion of flexibility in old machiya typologies, where people transformed the modes of spaces by different status of sliding doors.
These simple interventions create a multi-layered office landscape; same fixtures occupied by various activities and objects in parallel, or same places with various uses time by time. This realized scape resonates with the streetscape and the spatial practice in Ebisugawa street, with the great mixture of the old and the new, and work and life.
客服
消息
收藏
下载
最近























