查看完整案例


收藏

下载

翻译
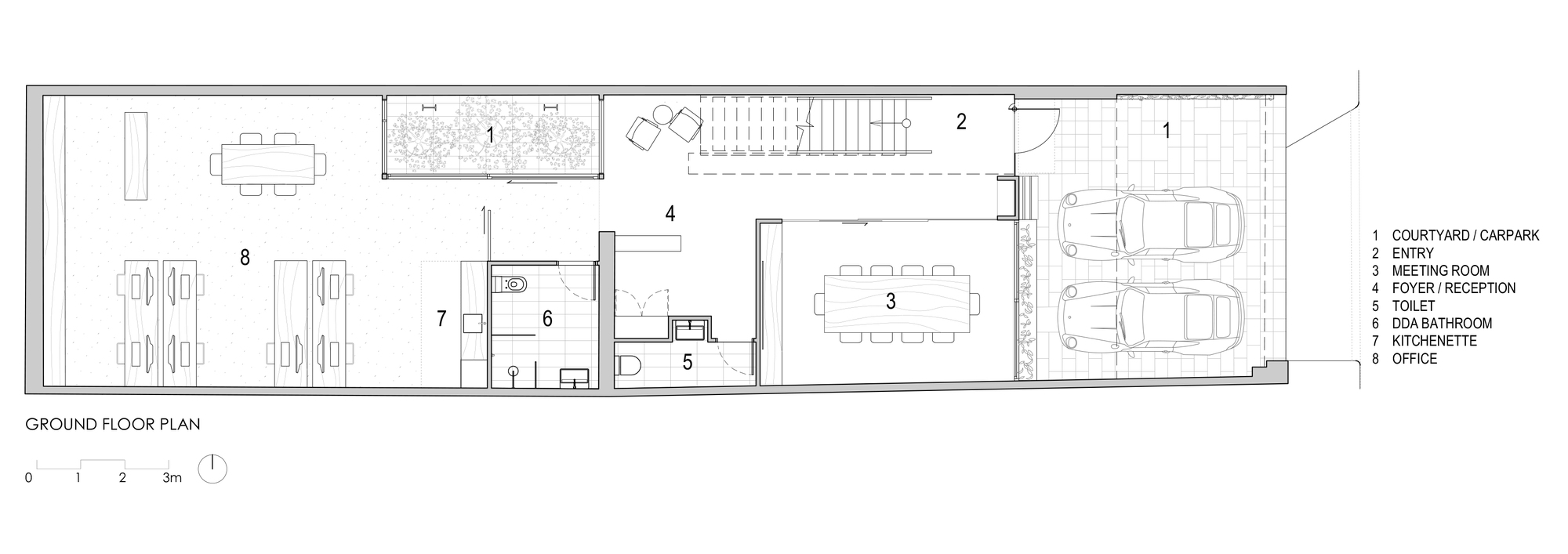
Whether it was love-at-first-sight is hard to say, but it was definitely potential-at-first-sight when we inspected this derelict warehouse in 2013. Having purchased the property shortly after, we realised that what we had bought was simple - some bricks, a couple of trusses, some steel beams, an asbestos roof and an open, voluminous space.
Located in Cremorne, the site had a long and checked history having been home to the Village Belle Hotel, a malting plant, mechanics, glaziers and in recent times, an illegal marijuana growing facility. Our tenure aimed to instil new life into this building, while respecting its layered past.
The deep, lofty space presented numerous challenges and opportunities. Many in-house discussions followed exploring endless possibilities - the task of designing our own workspace was equally exciting as daunting. In essence it needed to be rich in character and to facilitate our collaborative approach, while being flexible, functional and welcoming.
The old warehouse has now transformed into a modern workspace. Expansive windows frame views of this historic precinct and welcome natural light and ventilation. Original components are featured and sit alongside new elements which have been thoughtfully inserted and the result is a rich, textural, revitalised building.
客服
消息
收藏
下载
最近





















