查看完整案例


收藏

下载
随着时间的推移和科技信息时代的发展,人们对居住环境的需求再不是简单的一套好房子,更多的是对品质生活的追求。在地产的白银时代,愈来愈挑剔的消费者已经不会再为缺乏配套的住宅社区所打动。那么,面对作为时代经济中流砥柱、对高端生活品质有追求的新兴一代客户,什么样的生活才是他们理想中的样子。
客户社区生活需求的大调查的结论显示:新兴都市精英向往的是更自由更多变的生活方式,独具艺术性和个性的社区生活往往更有吸引力。当越来越多的都市精英们习惯用书店、咖啡厅、餐厅等公共空间来替代传统居所中的书房、工作室、会客室、厨房后,现代新型社区的产生变得尤为重要。而天津万科想要做的就是可以让新型社区变成“家的延伸”和“生活的一部分”
压力在后,目标在前,越来越多的都市精英们不会随着夜幕降临而离场。他们更讲究生活品质,更注重健康养生,却没有过多的时间打理生活。从这个层面想,万科提供的绝不再仅仅是过去的一座好房子,好物业.....作为新兴一代都市人群的理想居所,万科西华府为人们提供是一个配套完善的居家生活圈——V-Life Box,它所要创造的是一个白领圈层的高端生活场。
由此,“简单精致、新鲜营养、烟火味儿”便成为了V-Life Box社区商业生活圈的关键词。
那么,社区周边商业配套该如何运营便成为当前主要研究的课题:
研究表明,传统社区商业由于单价远远高于住宅,导致租金居高不下从而进一步影响店铺商品价格远高于市场平均价,再加上购买路线与归家路线相冲突,导致业主消费欲望下降,长此以往,由于店铺本小利薄,难以为继,导致社区商业很难真正的运营起来。这是传统社区商业运营的几大痛点。
对此,万科为之开出了一剂良方——下沉式地下商业配套(松社)。
下沉式的地下商业完美解决了传统商业地价高、租金贵的根源性问题。将商业地块与地下车库相结合,将地下停车位改造提升成为地下商业区,大大降低了租金成本,成为了社区商业“活下去”的“救命”良方。与此同时,传统商业往往位于社区外围,相对独立,导致业主于商业和归家路线间折返的问题成为社区商业运营的另一大痛点。地下商业切实解决了归家动线的客观问题,让社区商业成为归家动线上的重要节点。
同时,将商业配套通过地下车库与各楼座相连接,无形中打造了一个风雨无阻的社区连廊,使社区商业在任何环境条件下成为满足业主生活需求的第一选择。
下沉式地下商业由多个商业模块构成,通过不同商业业态形式全方位的为业主提供生活便利服务。 通过对不同客群的分析研究,V-Life Box希望为用户的美好生活搭建场景、提供舞台、提供价值,将他们“聚”在一起。考虑到全生命周期中,孩子、青年、中年、老人不同角色的需求,V-Life Box为每一个社区群体提供更为细致周到的生活服务。
所以说,万科提供的是一种全新的生活方式,是一个美好舒适的社区,更是一个有爱有温度的家。
西华府V-Life Box 是天津万科将全新的社区商业形式成功植入社区生活的完美典范。它是加拿大温哥华UBC Wesbrook Village社区的规划理念的衍生产物,兼顾了都市、人文、活力三大得天独厚的优势。
万科耕耘天津27年,每一次新的探索和进步都引领着时代的风潮。在这里,除去得天独厚的自然和人文气息,人们享受到的还有关怀备至的社区配套服务。
西华府的整体设计围绕下沉式商业松社展开,以一横一纵十字形的商街及景观带作为主轴,将两个分离的地块进行连接和渗透,再通过两个地块的景观副轴将整个社区分成了8个组团,整体形成了“一条活力商街、两条景观轴线、四大社区公园、八个社区组团”的规划形态。
松社让生活更加的便利,足不出户,就可以享受到多方位的服务:在提供便利生活的同时,引领的是全新生活方式的时代风尚。
松社是家的灵魂,是全新生活方式的核心影响力。
自古以来,文人墨客挥笔写下无数赞美松的诗篇。而松,与梅、竹一起并称岁寒三友,潜意识中,人们赋予了它高洁的品格,傲人的风骨。同时,它还承载着文人墨客、古代先贤们隐于林间的生活情趣。所以说,松,是一座极具包容性和承载力的“艺术容器”,它代表的不仅仅是一种文化,更多的是一种源远流长的传承,是对中国人品格和风骨的塑造。
曾几何时,“隐”只是文人骚客的代名词,它总是那么高冷,那么特立独行。显而易见,现代人向往的并不会是这样的“小隐”生活,更多的是大隐隐于市的洒脱。所以,“社”便应运而生。那么,如何为这只沧桑瑰丽的“艺术容器”注入新的灵魂,便成了新时代的课题.....
如果说“舍”代表着“家”,那么“社”就意味着“大家”。所以说“社”就是一只全新的“魂”,它赋予了松全新的时代意义,同时也重新定义了城市人群新的生活方式。“松”是人们心中诗和远方的种子,而“社”这只“魂”便为我们指引了诗和远方的方向。
松社是社区配套的24小时家庭能量场——以最美书店为核心,打造的下沉式社区共享花园,为新兴都市生活提供了更多便利和可能性。松社配套有V-BOOK最美书店,V-CAFE蛋糕店、便利店和早餐店,以及V-GALLERY健身房等不同商业业态模块,全方位满足全龄段客群的生活需求,多角度为业主营造温馨的家庭生活氛围。
初入松社,便会为它的魅力所打动,而这魅力的最初来源便是松社的核心影响力——最美图书馆。这座处处透着松香的图书馆仿若那世外桃源,遗世而独立,隽秀而清逸。仿佛在静谧的森林中,有这样一处能让人获得精神惬意和心灵的满足之所,或许没有令人为之心潮澎湃的壮丽景色,却独具别样的生活情趣,足以使人领悟到“禅意”之妙处。
几千年来,中华民族的文脉源远流长,从未间断,历经千百年磨砺而养成的民族气节与风骨早已深深印刻在中华儿女的血脉之中。古人喜欢以物喻人,而松便是文人骚客常常用以自比的对象。松的品格、松的气质、松的风骨都深深刻在中国人的骨血中,影响了一代代中国人。
松社由此而来,旨在能让人获得精神惬意和心灵的满足。从潇潇晚风的洗礼中得到感悟;从随风摇曳的松涛中得到心灵的满足;从潺潺的溪水中领略到恬静的清趣。让松风禅意溶化于灵魂深处,让淡淡书香荡涤心中的烦恼与忧伤.....松社,定会让每一位热爱生活的人都能从中获得乘兴而来,兴尽而返的惬意感受。
相对于古代先贤而言,现代人对于松、竹的热情丝毫没有消退。与松的品格一样的,是木结构建筑对中华文脉的影响。木质榫卯结构的建筑形式几乎成为中式建筑的代表形态。因此,木制建筑成为体现中华文化意境的首选。
松社图书馆的设计以木饰展现自然的亲和力和感染力,使人们自然融入到松林氛围中,在自然的环境中感受书籍带给人生的乐趣。
初入松社,便为这座隽美的社区庭院所深深吸引,它虽隐于世间,却与这繁华的都市有着千丝万缕的连系。“松”便是这条连系清泉山野于现代都市的纽带。 最美图书馆便是松社间的点睛之笔:
那“劲松”奋力向上,冲破群峰的屏障,与“飞瀑”相遇,沐浴着透过云层洒下的日光。正如人们赋予松的品格那样,傲然挺立,坚韧不拔。
同时也为父母们提供了更多见证孩子渐渐成长的机会。在假日的午后,和孩子们一起来到这里,品一杯香浓的咖啡,在水吧里选一种映衬当下美好心情的甜点,看着孩子们青春洋溢的笑脸,听着松树下琅琅的读书声,仿佛回到童年......
05.云海
拾级而上,穿越溪流来到松社的一层——成人阅读区、V-BOOK商品销售区及休闲区。坐下身来,品一杯浓香的咖啡,抬眼望去,便为中庭处活动区的景象所吸引。参天的松树雕塑穿过层板与一层“飞流直下”的“瀑布”造型互相呼应。
仔细听,仿佛能听到那“潺潺的水声”,亦或是能听到那“波涛”低声的诉说........与三五好友于休闲区相聚,谈谈乐事见闻,聊聊人生感悟;或独自一人捧一本好书,静静融入书中的世界,从书中找到人生的影子;亦可以流连在精致的V-BOOK商品销售区中,为其精美的书册所深深吸引,末了,携三五心悦书册伴以身侧,于家中更深的体会其中的奥妙。
图书馆一层的顶面设计融合了云海意向,“云海”延墙面飞流而下,在地面上激起了朵朵浪花,起伏的浪花将休闲区包围在内。
与整体的气氛相比,细节的设计往往能够成为画龙点睛之笔。
这里,就是这繁华都市中静谧的诗和远方。这里有俯拾即是的「书」;有举头即现的“云”;有簌簌作响的松涛;有静静徜徉的溪流......在这里能够感知书香和咖啡相遇的欣喜,在溪花与禅意并存的世界中感悟生命的意义。
松社的设计融合了松针的元素,从人们步入松社的第一步开始,便能隐隐感受到大自然的气息。图书馆入口处顶面的松针设计,与顶面灯光相结合用以营造树影斑驳的林间感受。搭配一本印刻有松针LOGO的书册,品一杯带有松针奶泡的浓香咖啡,让人仿佛置身松林之间。无论是图书馆中精致的“松”元素摆件,还是松社中随处可见的松针LOGO以及印刻有松针LOGO的精致松社周边,无一处不在传递给世人一份精致的生活态度......
松社,提供的不仅仅是精致的生活品质,更是一种超然的、自我的生活情趣以及生活方式,这种精致的生活方式将引领人们进入更高的生活境界,无论从视觉审美还是精神寓意的角度来看,都与古今文化相契合,在这里,人们将感受的中华文化的内在气质,通过这一枚小小的松针,让更多的人知道“松式美学”,享受松式生活。
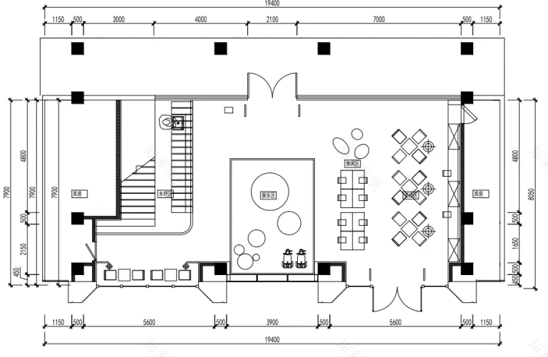
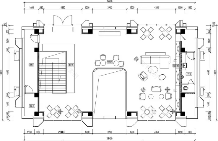
平面图
项目名称 | 万科·西华府松社
图书馆项目地址 | 天津市西青区
设计公司 | 赛拉维设计 CLV.DESIGN
总设计师 | 王少青
设计主创 | 董皓翔 杨贵钧
设计团队 | 张博 王丽园 荣蕾 刘佳 杨永 张志永
竣工时间 | 2019年7月
项目摄影 | 刘鹰
客服
消息
收藏
下载
最近








































































