查看完整案例


收藏

下载
▲ 展示区(Show space)--View one
本方案为服装展示空间,围绕女
性展开,汲取女性的精神与特质,塑造空间整体气质。
旨在表现女性的温柔细腻,婉约优雅。
展现生命与跃动、飘逸与静谧的美感。
动静结合,静若处子,动若脱兔。
似舞者演绎舞动的艺术,旋转跳跃、延伸与弯曲。
虽然我们不是舞者,但每个人都活跃在
自己的
人生舞台上,演绎自己的故事与
精彩。
展示区(Show space)--View
two
律动的曲线、飞舞的彩带,灵动飘逸、自由徜徉。是女性的曼妙身姿与唯美的曲线,落花人独立,微雨燕双飞。温柔的性情,蜕变的美丽。也是生活最真实本真的状态,人生何尝不是一条波动的曲线,时高时低。低谷与高峰交错着构成人生的轨迹,低谷的时候不沮丧,高峰的时候不骄躁,坦然地面对人生沟壑,走过四季风霜。
展示区(Show space)--View three
理性的结构造型,冷静沉着。
感性的曲线律动,自然变换。
两种精神与性质互相穿插与交织,构成典雅而生动的艺术,碰撞出统一而多元的火花,展示别具一格的精彩。
黄铜色彩稳定整体基调,雍容华贵,展现出浓重的时间沉淀感,粗糙的清水混凝土,表现的是最原始的状态,也是最赤裸本真的自我。
曲线、造型与灯光设计的配合,形成纷繁交错的光影关系,营造自然舒适的氛围。
展示区(Show space)--View four
空间主色调为橙色,鲜艳跳跃,明亮醒目,是盛放花朵的颜色,属于自然的色彩,具有强烈的爆发力与和感染力,结合明快的节奏,共同迸发出昂扬的精神状态和生命活力,饱满而鲜活,闪耀与自信,体现女性的娇艳,积极昂扬。黄铜的沉稳色彩,橙色的欢快跳跃,白色的纯洁率真,似白玉兰静静绽放。将自然色彩萃取后引用进空间映射女性的魅力与精神,和谐统一,匠心独具。
▲ 中央展示区(Show space)--View one
中间的Box是建筑结构的室内再现的方式,架空与留白构成自然通透的空间感受,单纯而纯粹,在满足基础功能的基础上设计形式,形成简约和理性主义格调,穿梭其间,流畅舒适。
▲ 局部细节(Local details)--View one
结合 Carlo Scarpa 建筑理念的衣架,起承转折、凹凸进退,经过理性的思考、斟酌和沉淀,形成独特的造型,演绎构成的趣味。
局部细节(Local details)--View two
斑驳质感的黄铜,浓重的历史感,是时间沉淀的结果;交叠的结构和层层递减的装饰线条,配合清水混凝土的粗糙质感,不同材料间的碰撞、交错与融合,演绎材料变化与造型塑造之美。入口门把手作为入室的第一触感,是有感情、有温度的。把手上设计品牌logo,细节的雕刻更触动心灵,也最体现设计对人文的关怀是无微不至的。
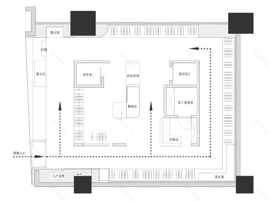
平面图
项目名称 | 上海龙湖天街欧点服装店
设计公司 | 淘艺设计
设计时间 | 2019年2月
主创设计 | 陈林平
参与设计 | 瞿冰杰
项目地址 | 中国 上海
项目面积 | 100㎡
关于陈林平
淘艺设计 创始人&创意执行总监
杭州栖间堂艺术酒店 发起人
共合设 联合发起人
从业室内设计18年
风格趋向:自然原生态,不随意妥协,对浪费生命的设计,我就是说不,只希望做出可以打动人内心的设计,以精益求精的心打造每一个独有空间。
代表作品
▲ 上行珠宝丨一画一世界
客服
消息
收藏
下载
最近




































