查看完整案例


收藏

下载
电影《颠倒的帕特玛》讲的是一个世界里有两种相反的重力存在,角色意识到了相互之间的不同,最终达到和谐。公寓住宅“颠倒的帕特玛”位于Haengdang市场的入口处,将对于公寓设计来说相冲突的两种元素结合在了一起。首先,项目所在基地由高度不同的三种建筑组群组成,成为了设计的一大挑战。市场中有数不清的单层和二层商铺,后方零星分布着四五层高的办公楼,以及大片高层楼房。“颠倒的帕特玛”一二层使用红砖和透明玻璃等材料,在面向市场的位置设有一间咖啡厅。建筑下部为白色体块,与附近住宅的高度相仿;上部的居住区采用两种深浅不同的灰色水泥砖。底层的红砖体块自然地融入到了复杂的市场建筑之中,相对明亮的中层区域则得到突显;两种色调的灰色仿佛在向建筑顶层生长,削弱了区域中由于层高造成的不同。
▼项目鸟瞰,aerial view of the building ©Kim Jae Yoon
▼项目远景外观,位于复杂的城市环境中,distanced view of the project located in a complicated urban environment ©Kim Jae Yoon
The movie <Patema Inverted> is set in a world where opposing gravities exist sharing one sky and is a story about recognizing disparities through each other and achieving harmony. The studio apartment ‘Patema Inverted’, located at the entrance of Haengdang market, talks about how conflicting things that seem rather heterogeneous for an efficiency apartment to be built can coexist. First, the disparate level difference between the three types of building groups that form the district raised an issue. There are countless one- or two-story stores that form the market. Behind them four- to five-story office buildings are sparsely located, and high-rise buildings are widely spread out. ‘Patema Inverted’ utilized red bricks and transparent glass as exterior materials of the first and second floors, and a cafe that is open towards the market intersection was placed. The lower floors were made into white volumes of similar levels to the neighborhood living facility buildings nearby, and the residential area on top was finished with two tones of gray cement bricks. The volume of red bricks on the ground floors naturally blends in and dissolves with the complicated market buildings in the surrounding, the relatively bright-colored middle floors are emphasized, and as the two tones of gray seem to retreat upwards for the upper floors, the heterogeneity caused by the level difference in the region is diluted and embraced.
▼建筑外观,不同高度使用不同的颜色和材料,external view of the building using different materials and colors on different levels ©Kim Jae Yoon
▼底层与市场建筑呼应,白色体块与附近的住宅高度相仿,the ground floor corresponded with the market buildings, while the white volume is on the same level with the nearby residential ©Kim Jae Yoon
▼建筑上部不同深浅的灰色水泥砖,gray bricks in different tones on the upper part of the building ©Kim Jae Yoon
▼立面细部,facade details ©Kim Jae Yoon
接下来的挑战来自项目内部,高效公寓在功能和生活模式上面临着不同要求。在首层和二层宽敞的咖啡厅中,市场人群与公寓住户之间的界限被打破并重组。上部楼层中的公寓计划供一到两人居住,主要是大学生、研究生和新婚夫妇,试图将年轻活力注入到死气沉沉的市场之中。空间越小,在设计过程中需要仔细考虑的东西就越多。在解决照明问题的同时,还要保证一定的私密度;在满足人体尺度的基础上,还要找到新的空间使用方式,避免任何浪费。设计最终设置了不规则的开窗,既可以保证个人空间,又能让阳光在室内均匀分布。项目希望将城市中心的外部环境引入建筑内部空间,并且让内部功自然投射到建筑表皮上,在室内外形成灵活的互动,创造出可以自我成长和进步的建筑形式。
The problem that came afterwards was the inherent heterogeneity of efficiency apartments in terms of functions and life patterns. The boundary between the multiple people of the market and the residents of the efficiency apartment is broken and formed again in the widely open cafe on the first and second floors. The upper floors were planned as housings for one- to two-person households, which are mostly university students, graduates and newlyweds, in an attempt to bring young generations into the stagnant market. The smaller the area is, the more things there are to carefully consider in the design process. The privacy issues have to be suitable mediated while solving the lighting problem, and studies on anthropometric measurements as well as new ideas for space utilization are also required in order to avoid any areas being wasted. We used a method of securing personal areas while bringing sunlight into the interior as evenly as possible by placing uneven windows in the interior. We hope that the external situations in the city center are attracted into the internal architectural environment, and that the internal programs are sometimes naturally projected and displayed to the exterior to appear as the building’s envelope, allowing the interior and exterior to flexibly react to each other so that it becomes an architectural form that grows and evolves by itself.
▼面向市场的咖啡厅,cafe facing the market ©Kim Jae Yoon
▼公寓走廊,corridor in the apartment ©Kim Jae Yoon
▼公寓室内,不规则的开窗同时保证采光和私人空间,interior of the apartment, unevenly opened windows ensuring personal space while letting in enough sunlight ©Kim Jae Yoon
▼细致的设计有效利用每一处空间,careful design making use of every space ©Kim Jae Yoon
▼夜景,night view
▼一层平面图,1F plan ©L’EAU design
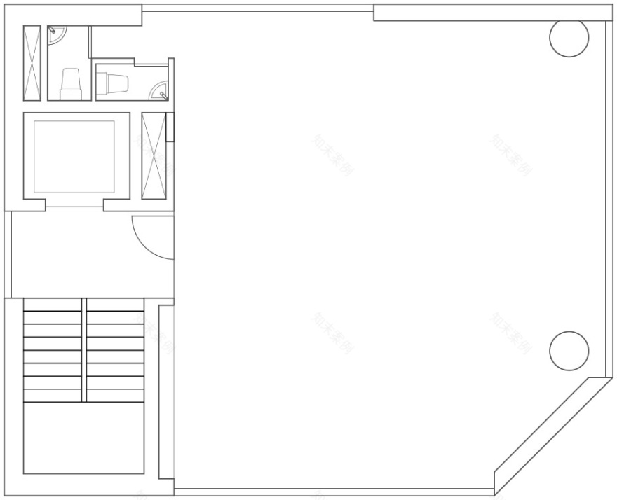
▼三到四层平面图,3~4F plan ©L’EAU design
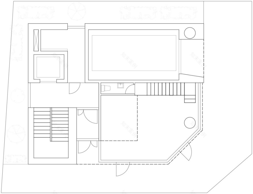
▼五到六层平面图,5~6F plan ©L’EAU design
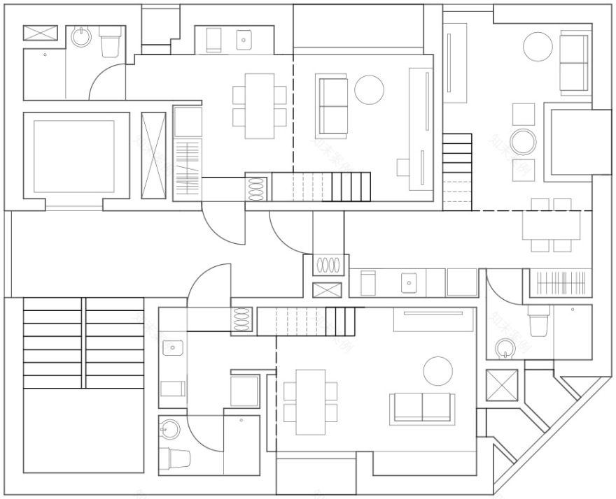
▼七到九层平面图,7~9F plan ©L’EAU design
▼立面图,elevations ©L’EAU design
Architect : Kim Dong-jin (Hongik University), L’EAU design Co., Ltd. Location : 286-19 Haengdang-dong, Seongdong-gu, SeouL Program : Commercial Facilities Site area : 202.00㎡ Building area : 106.81㎡ Gross floor area : 918.48㎡ Building scope : 10F, B2 Structure : RC Construction : Co-Workers Design Period : Completion : 2020 Photo : Kim Jae Yoon
客服
消息
收藏
下载
最近
























