查看完整案例


收藏

下载
该项目位于北京市东城区,楼房身处胡同内,总六层,项目在第二层,南邻胡同,视野是青砖灰瓦,北侧可观赏一颗玉兰树,南北侧均有几颗超过50年树龄的大树,使用面积约43平米,是为一位男士设计的居所,屋主爱好阅读与摄影品尝美食与酒。
The project is positioned in Dong Cheng District, Beijing. The building is bounded by block buildings of six stories. Our project is in the second floor, in the south of alleys. The project gathers views of tiles and bricks. In northward, it is open to a magnolia denudata. There are trees more than 50 years old on both north and south sides of the building, with floor area roughly 43㎡, that is ideally designed for single males that loves reading, cameras, gourmets and fine wines.
▼项目位于住宅楼二层,the project is located in the second floor of the residential building ©金伟琦
因房屋所处于的位置与环境相对特殊,考虑到胡同的文化背景,与胡同的关系,街道的市井气息,因此将设计的重心由室内向室外延展,南北两侧的窗景作为设计的重点,同时也在小的空间内营造大的气场,化零为整,通过深色调营造包裹感的生活场景。
Considering its position and surroundings and the cultural background of Hutong, as well as its relationship with atmosphere in the street, designs of the project is extended from interior to exterior. Designs of the project focus on north and south windows. Moreover, it means to construct atmosphere of space by uniting minimum spaces into large ones. With dark colors, it aims at constructing life scenes that conserves more life style.
▼室内空间一瞥,interior partial view ©金伟琦
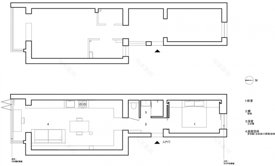
改造前: 是典型的一字型户型,南北方向瘦长,两端的起居室与卧室采光较好,位于中间部分的门厅与厨房采光较暗,因为房屋处于六层楼的第二层,这两个位置的窗是靠天井采光,几乎没有日光,卫生间面积较小,使用起来比较局促。
改造后: 1: 将卫生间移至原门厅的位置,形成马桶区、洗漱区、淋浴区三个空间分离使用的模式。 2: 门厅被卫浴空间占用一部分面积后,压缩成条形空间,透过两侧开口可看向卧室与起居室,直至两端窗外美景,形成了暗厅两侧向光的延展效果。 3: 卧室作为纯休息的空间,移门作为隔断划分与门厅的界限,北侧的方形窗作为取景框看室外玉兰花。 4: 由门厅走向起居室空间,从狭小空间走向更大空间,有一种豁然开朗的感受,起居室作为多功能空间,包含了餐厅、厨房、收纳、看球赛、以及客人临时住的沙发床,最南端的位置是可观胡同街景的书桌位置。
▼改造前(上)和改造后(下)户型对比,floor plan: before renovation (top) & after renovation (bottom) ©罗秀达
Before Improvement: This is a classical north-south I-shape house. Bedroom and guest room gather more lights than hallway and kitchen in the middle. The house is in the second floor of six. The positions gather lights through the little yard while direct sunshine is very limited. In addition, the toilet is very small, providing limited spaces.
After Improvement: 1: Removing the toilet to gallery position to form a separate area of toilet, washing and bathing. 2: The hallway is compacted into a strip due to occupation of bathroom. Its openings at the ends extend to the windows and scenery outside. 3: As a space for rest, the bedroom is blocked from the gallery by a door. The square window on the north provides access to the magnolia denudata. 4: The space that links the gallery and bedroom is a space that provides a feeling of spacious. As a multifunctional space including canteen, kitchen, collection, game watching and sofa bed for guests. The bed at south is a desk to the Hutong scenery.
▼改造后室内概览,interior general view after renovation ©金伟琦
入户门面对是门厅与浴室共用的一面隔墙,顶面用深色木地板、墙面、地面材料也与其它空间统一,凸显质感。
The entrance of the house encounters the wall between the hall and bathroom. The roof is made of dark floor, wall. Meanwhile, the floor materials are of identical characters with other spaces that form unique textures.
▼玄关,entrance hall ©金伟琦
作为全家最大的空间,这里承担了很多功能,厨房位置设计在靠墙一侧,敞开式的厨房,小而精,与电视柜和收纳柜在一个立面,备餐用的抽拉板隐藏在收纳柜里,餐桌靠近的立柱是用金属材料包起来的燃气管道,沙发选择可以睡眠使用的款式,沙发后吊柜是收纳屋主喜爱的书籍柜,电视柜到起居室入口两侧柜,再到沙发后吊柜,三面具备收纳功能。为了突出空间的包裹感,顶面用了深色地板,深色木纹地板与餐桌材质呼应。灯光设计在立面。
天气暖和的时候,打开最南端折叠窗,室内与室外融为一体,坐在这里感受胡同的市井气息。
As the largest space of the house, it provides more functions. The fine open kitchen is set against the wall, at the same side with TV stand and cabinet. The kitchen table is reserved in the cabinet. The pillar at the table is a metal pillar containing fuel gas hose. A sofa suitable for sleeping is suggested. The hanging cabinet behind the sofa is a book cabinet for the host. In summary, The TV cabinet, the cabinets at the living room, the hanging cabinet behind the sofa are capable of plenty of reservation. To emphasize feeling of wrapping, the ceiling of the house is made of dark colors and textures that merges internal and external. This makes it possible to feel air of Hutong while the host is at home.
▼起居室,living room ©金伟琦
▼厨房位置设计在靠墙一侧,the fine open kitchen is set against the wall ©金伟琦
▼餐厅,dining area ©金伟琦
室外是老旧的楼房,胡同里的平房,停的很靠近墙的车,电线杆,空调外机,金属护栏,街道上不时有过往的行人,也有街坊邻居站在胡同里聊天,室内住着的是一位对每一件物品都很讲究的屋主,室外室内形成很有趣的反差,同时也有些某些连接。这种特殊而鲜活的生活状态,是在北京胡同里独有的氛围。
It is old and shabby buildings outside, flats in Hutong, vehicles next to walls, standing poles, hanging air conditioners, safety barriers and people walking and talking. Inside, it is host that cares about each single item of the home. What an interesting contrast and connection. Actually, it is unique for Hutong life in Beijing.
▼胡同里的生活,Life in Hutong ©金伟琦
▼起居室窗景细节,living room view ©金伟琦
卧室作为纯休息空间,床尾走道很窄,所以调整床的比例,将高度降低,插座与开关整合在床头柜与墙面的凹槽中,布窗帘与金属暖气罩,形成了柔软与硬朗的材质对比。摄影作品是屋主拍摄的故宫。
As a space specifically for refreshment, the end of the bed is left with limited space. It is suggested to rectify ratios and height of the bed. The bracket and switch are compacted within the trench between the bed cabinet and the wall. A clear contrast between tenderness and solid is formed between the curtain and heater covers. The photo is the the Imperial Palace taken by the host.
▼卧室内部:柔软与硬朗的材质形成对比,bedroom: a clear contrast between tenderness and solid ©金伟琦
▼室内细节,interior detailed view ©金伟琦
三个功能独立划分开,马桶区、洗漱区、淋浴区分离使用的模式。
The toilet is separated into three spaces including washing closet, cleaning area and bathing zone.
▼卫生间,toilet ©金伟琦
项目信息 设计师:罗秀达 施工图深化:何沙 摄影:金伟琦 主要材料:微水泥、水泥漆、木地板、不锈钢金属
材料品牌 全屋定制:班尔奇 微水泥: 宅匠 推拉门:和玺木门 家具:北欧表情、梵几 灯具:本土创造、FLUA 窗帘:米夫家居 洁具:卡斯科KASKADE
Project Information Designer: Luo Xiuda Deepening of Construction Drawing: He Sha Photographer: Jin Weiqi Main Materials: Micro Cement, Cement Paint, Wood Floor, Stainless Metal
Brands of Materials: Whole House Customization: Pauchie Micro Cement: ZESTMAN Sliding Door: Hestia Furniture: NORHOR, fuji Lights: BENTU, FLUA Curtains: MIFU Cleansing Facilities: KASKADE
客服
消息
收藏
下载
最近

















