查看完整案例


收藏

下载
© Amit Geron
阿米特·杰龙(Amit Geron)
架构师提供的文本描述。功能和简单的材料是规划这座别墅在特拉维夫北部社区的起点。这座房子被设计成一个基本的几何结构-一个由两个生混凝土盒子组成的组合。每个盒子似乎都有随机的开口,外部遮阳系统可以通过电子方式旋转和打开,这样动态的立面就会随着居民的需要、时间和天气而变化。
Text description provided by the architects. Functionality and simplicity of materials were the starting points for planning this villa in a northern neighborhood of Tel Aviv. The house was planned as a basic geometric structure– a combination of two raw-concrete boxes on top of each other. Each box has seemingly random openings, and an external shading system that rotates and opens electronically, so that the dynamic façade change with residents’ needs, the time of day, and the weather.
© Amit Geron
阿米特·杰龙(Amit Geron)
室内设计带来了同样的原则,简单和气候效率,随着建筑现在搬到室内。内部规划是基于清晰和简单的移动围绕两个原始的混凝土支撑墙,这与外部的回声。通往地下室和一楼的楼梯位于这两堵墙之间。所有的家庭功能都是从这个焦点自由地发挥出来的。一间宽敞的厨房配有橡木橱柜和不锈钢烹饪岛,旁边有客厅和餐厅。另一边是一个图书馆,里面有一个黑色硬件工作区,还有一个父母套房,面向前面的花园。一楼有一间服务室和三间儿童房,每个房间都有自己的浴室和屋顶露台。一个明亮的,功能性的走廊被放置在两翼之间,容纳着平行的楼梯。
The interior design brings in the same principles of simplicity and climatic efficiency, with the architecture now moving indoors. The interior planning is based on clear and simple movement around two raw concrete supporting walls, which echo the exterior. The staircase to the basement and first floor is located between these two walls. All household functioned emanate freely from this focal point. A spacious kitchen with oak cabinets and a stainless-steel cooking island, with an adjacent living room and dining room are on one side. The other side holds a library with a black-hardware workspace, and a parents’ suite facing the front garden. Up on the first floor are a service room and three children’s rooms, each with its own bathroom and roof terrace created by moving the upper box. A bright, functional hallway is placed between the two wings, hosting the parallel staircase.
© Amit Geron
阿米特·杰龙(Amit Geron)
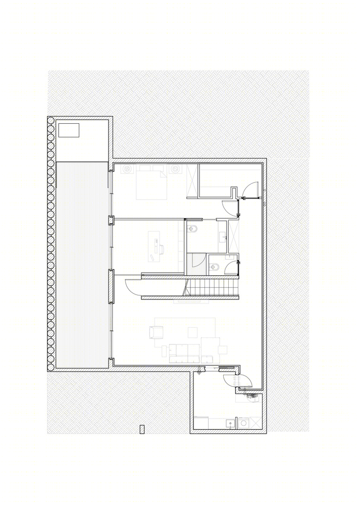
Ground floor plan
© Amit Geron
阿米特·杰龙(Amit Geron)
在房子的主要设计元素-它是在它的正面-是外部铝,Corten-完成遮阳系统。每个窗口设置为一个内部功能,并作为一个内部框架,从遮阳系统已被定位,以适应阳光和每个室内空间的气候需要。该系统允许不同程度的光过滤,创造了一个额外的层,丰富了空间,并带来了有形的户外体验的房子。这层随着太阳的方向,遮阳系统的开度而不断变化。在那时,房间里充斥着红色的阴影,创造了独特的内部组成和不同的外部曝光率。内部和外部一样,不是静态的。这所房子每天每小时都有生命和运动。
The dominant design element in the house – as it is on its facades – is the exterior aluminum, Corten-finished shading system. Each window is set for an interior function, and acts as an interior frame from the shading system that has been positioned to accommodate sunlight and the climactic needs of each interior space. This system allows various degrees of light filtering, creating an additional layer that enriches the space and brings the tangible outdoors experience into the house. This layer changes continuously with the direction of the sun, the amount of opening of the shading system. At time, the rooms are flooded with shades of red, creating unique compositions inside and varying exposure outside. The interior, like the exterior, is not static. This house has life and movement every hour of the day.
© Amit Geron
阿米特·杰龙(Amit Geron)
© Amit Geron
阿米特·杰龙(Amit Geron)
客服
消息
收藏
下载
最近












































