查看完整案例


收藏

下载
© Amit Geron
阿米特·杰龙(Amit Geron)
架构师提供的文本描述。天际线-地球和天堂的交汇处-是阿基米德点在每一条建筑的方向,使建筑在其周围。无论是建在浓密的城市结构中,在高山上,还是在狭窄而深邃的峡谷里-每一座建筑都是由它的天空来衡量的。古典建筑是在教堂的怀里发展起来的,渴望达到崇高的境界,通过垂直的窗户和高耸的柱子向上推进。然而,与之相反的是,现代建筑,特别是住宅建筑,把天际线看作是人类创造力的背景,是对建筑物尺寸的横向强调,甚至仅仅是满足人类需要的工具。
Text description provided by the architects. The skyline - the meeting of earth and heaven - is the Archimedean point in every swath of architecture that orients the building in its surrounding. Whether it be built in a dense urban fabric, on a high mountain or a narrow, deep canyon - each building is measured by its sky. Classical architecture that developed within the bosom of the church, aspired toward the sublime, the dimensions were propelled upwards by way of vertical windows and tall columns. In contrast, however, modern architecture, particularly residential constructions, see the skyline as a backdrop of human creativity, a horizontal emphasis on the buildings’ dimensions or even as a mere tool serving human needs.
© Amit Geron
阿米特·杰龙(Amit Geron)
无论是古代还是现代,天际线都是最简单的元素,可以将建筑物置于具体的环境中,甚至是想象的环境中。其次是另一栋建筑的存在,然后是树木,等等,在环境中的元素列表中。也许正因为如此,私人住宅的建筑才是物体建筑的最后堡垒-不需要向周围的环境卑躬屈膝-它既包括建筑,也包括雕塑。
In both the ancient and modern cases, the skyline is the simplest element required to place the building in a concrete context, even an imagined one. Second to that is the presence of another building and then trees and so on down the list of elements in the environment. Perhaps because of this, the architecture of private homes is the last bastion of the architecture of objects - not required to kowtow to its surroundings - it engages both architecture and sculpture.
© Amit Geron
阿米特·杰龙(Amit Geron)
© Amit Geron
阿米特·杰龙(Amit Geron)
这就是位于.的S屋。乍一看,这是一个悬停的水平棱镜,强调一个双天际线-上面和下面。再看一眼棱镜与地面的相遇,试图破译一种物理平衡系统,该系统允许构筑物漂浮,同时锚定在英国花园上方的钢梁上的水平混凝土墙上。其结果是一个编排的结构,永远保持在一个重力挑战的姿态。
Such is the S house located in --- . At first glance it is a hovering horizontal prism, emphasized by a double skyline - above and below. A second glance seeks out the meeting of the prism with the ground, attempting to decipher the system of physical balance that allows the composition to float while being anchored, as it were, to a horizontal concrete wall resting on a steel beam hovering above an English garden. The result is a choreographed construction held eternally in a gravity-defying pose.
© Amit Geron
阿米特·杰龙(Amit Geron)
© Amit Geron
阿米特·杰龙(Amit Geron)
棱镜的悬浮,由干净的线条组成,通过不同类型的透明隔板-向地面下降和标记-指示整个地面和入口。因此,家庭的公共空间-餐厅、厨房、客厅、花园和装饰性游泳池-内部和外部的界限都完全模糊了。同样的,从街道的入口准备“太空飞船”,借助百叶窗般的木墙形成一个室外大厅几乎看不到从街道到房子的内部开放。一个大厅,它是按照沙龙的比例建造的,虽然它早期是由额外的混凝土质量构成的,进一步放大了悬停的棱镜。
The levitation of the prism, formed by clean lines, dictates the entirety of the grounds and entrance by way of transparent partitions of different types - dropping down toward and marking the ground. As such, the public spaces of the home - the dining room, kitchen, living room, garden and decorative pool - have their inner and outer boundaries entirely blurred. Similarly, the entrance from the street prepares the visitor for the “space vessel” with the aid of shutter-like walls of wood - forming an outdoor lobby - barely visible from the street and open to the interior of the house. A lobby which is built in proportion to the salon, inchoate as it were, formed by an additional mass of concrete that further amplifies the hovering prism.
© Amit Geron
阿米特·杰龙(Amit Geron)
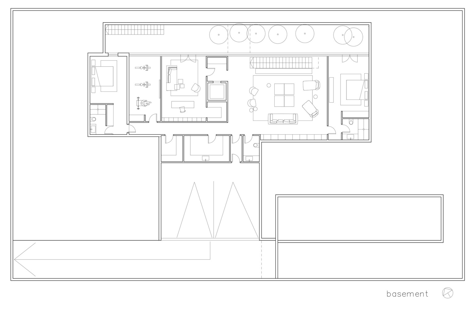
较低楼层的设计与上面的棱镜是分开的,但通过横截面来平衡它,具有一定的建设性功能。从任何意义上说,它都是一种平衡力,一种资产负债表,甚至是一种技术锚。它为亲密和隐私提供了庇护,为卧室提供住房,并管理与环境的倒置关系,从而确定这所房子不仅是一个良性的对象,而且是一个计算生命的空间。
The design of the lower floor is separate from the prism above, yet nonetheless balances it through cross sections with a certain constructive functionality. It is indeed a counterweight, a balance sheet or even technical anchor in every sense. It gives shelter to intimacy and privacy, housing the bedrooms and managing the inverted relationship to the environment, thereby establishing that this house is not only a virtuous object but a space around which life is calculated.
© Amit Geron
阿米特·杰龙(Amit Geron)
Architects Pitsou Kedem Architects
Location Hertsliya, Israel
Category Houses
Initial Design and Planning Irene Goldberg, Pitsou Kedem
Architects in Charge Raz Melamed
Area 750.0 sqm
Photographs Amit Geron
客服
消息
收藏
下载
最近
































