查看完整案例


收藏

下载
在过去的三十年中,这个名为Saint-Jean-Port-Joli的安静的小村庄一直以其历史悠久的传统木雕工艺而闻名于世,也吸引了来自世界各地的艺术家们前来一探究竟。从20世纪90年代起,这里逐渐形成了一个艺术家驻场计划空间,从而为那些在圣劳伦斯河(St. Lawrence River)沿岸寻找灵感的艺术家们提供一个歇脚地。然而这个驻场空间一直以来都只是个临时的场地,直到2018年来自魁北克的建筑事务所Bourgeois / Lechasseur architectes在村子里设计了一座全新的Est-Nord-Est艺术家之家。该艺术家之家位于村庄的郊区地带,坐落在原临时驻场空间的旧址上,建筑面积高达951平方米,是2017年的一个建筑竞赛获奖方案。经过多年的准备和筹款,这座令人期待已久的艺术家之家如今终于正式落成。
During the last three decades, the quiet village of Saint-Jean-Port-Joli known for its longstanding woodcarving tradition has been a rallying point for artists from various locations around the world. What started as a series of casual encounters in the early 1990’s gradually turned into an artist-in-residence program, open to artists looking for inspiration along the St. Lawrence River. Confined to makeshift facilities until 2018, Centre Est-Nord-Est now boasts a brand new building designed by Québec City’s Bourgeois / Lechasseur architectes. The 951-square-meter structure, which stands on the outskirts of the village, is the result of an architectural competition launched in 2017. After years of preparation and fundraising, the long-awaited Centre Est-Nord-Est sits elegantly on the same site as the building it replaced.
▼艺术家之家外观,exterior view of the artist residence
建筑师Olivier Bourgeois和Régis Lechasseur都在较为偏远的地方长大。在本案中,他们将自身对魁北克乡村景观的深入了解与现代视野融合在了一起。最终的艺术家之家是传统建筑形式与现代建筑形式融合的结果,它采用较长的单建筑体量,让人不禁回想起传统的谷仓。
As was obvious from their competition entry, Olivier Bourgeois and Régis Lechasseur who both grew up in relatively remote locations were able to blend their intimate knowledge of Québec’s rural landscapes with their modern-day vision. The long monolithic volume reminiscent of traditional barns evolved quite naturally from their ability to marry tradition and contemporary architecture.
▼艺术家之家外观,采用较长的单建筑体量,让人不禁回想起传统的谷仓,exterior view of the artist residence in a long monolithic volume reminiscent of traditional barns
艺术家之家的主入口并没有设在主要的城市道路上,而是极为巧妙地隐藏在建筑短边的木制外立面中。穿过入口,人们便来到一个令人惊叹的双层通高的空间内。这个多功能空间可作为聚会场所、休息室、展览区、社区厨房或餐厅使用,是整座建筑的核心。顺着多功能空间内的螺旋楼梯向上走,人们便来到了一个安静的学习区。倾斜天花板上的天窗将阳光引入了上层空间,而首层空间则通过毗邻的室外庭院来满足自然采光的需求。
▼入口处双层通高的多功能空间,通过毗邻的室外庭院来满足自然采光的需求,the double height multifunctional volume at the entrance, mostly lit through large openings giving to an adjacent court
▼顺着多功能空间内的螺旋楼梯向上走来到一个安静的学习区,one accesses a quieter library zone via a voluptuously curved spiral staircase
ENE’s front entrance is off the main highway, delicately inserted in the narrow wood-lined façade. Once passed the door, a surprisingly exuberant double height volume awaits visitors, staff and residents alike. This multifunctional space, the true heart of the project, serves as meeting point, lounge, exhibition area, community kitchen, and dining room. One accesses a quieter library zone via a voluptuously curved spiral staircase. Carefully framed skylights are carved out of the sloping ceiling, flooding the upper level with natural light while the main floor is mostly lit through large openings giving to an adjacent court.
▼倾斜天花板上的天窗将阳光引入了上层空间,carefully framed skylights are carved out of the sloping ceiling, flooding the upper level with natural light
▼多功能空间内的螺旋楼梯俯视图,top view of the voluptuously curved spiral staircase in the multifunctional space
工作区和日常生活区则位于艺术家之家的后半部分,通过一扇门与入口处热闹的公共空间分隔开来。建筑师在后半部分空间内设计了五间布局相同的、带有夹层卧室空间的可居住工作室。这些工作室具有高度的灵活性,可适应雕塑、行为艺术、摄影以及其他一系列艺术学科对空间的要求。此外,沿着连接着建筑后方各个空间的中央走廊还设置着三个共享的工作空间,它们分别是木工房、金属加工房和装配间。
The residents’ combined work and living quarters are located towards the back of the building. Key to the concept was the design of five identical, yet flexible, live-in studios with sleeping mezzanines. As floor requirements vary widely from one discipline to another, the expandable workspace was planned to be highly flexible and adaptable to individual pursuits whether sculpture, performance art, photography or others. Individual studios are reached through a central corridor, which isolates them from the livelier public areas towards the front. Three shared workshops (wood, metal and assembly) are also located along the corridor.
▼带有夹层卧室空间的可居住工作室,the flexible, live-in studios with sleeping mezzanines
▼沿着中央走廊布置的共享木工房,the shared woodshop that is located along the central corridor
建筑外墙采用当地的白色雪松饰面,倾斜的屋顶则采用金属板,让人不禁想起魁北克乡村里的农舍。由于整个项目的资金并不充裕,因此室内装修多采用胶合板、石膏板和抛光混凝土等。经过隔音处理的石膏板被安装在某些倾斜天花板的下方,以便将室内混响降至最低水平。
本项目致力于通过简单而独出心裁的设计以及对自然光线和材料的深思熟虑,为艺术家们提供一个独特的、极具创造力的创作环境。随着本艺术家之家项目的落成,该地区的艺术社区、尤其是这个名为Saint-Jean-Port-Joli的村庄迎来了真正的、生机勃勃的新生。充满活力的艺术家之家凭借着其永恒的形象,在如今的艺术世界中绽放着自己的光芒。
Locally harvested white cedar was used for the exterior cladding while sheet metal protects the huge sloping roofs, reminders of farm buildings in rural Québec. Given the institution’s modest budget ($2.3 million CAD), interior finishes are mostly plywood, gypsum boards and polished concrete. Acoustically treated gypsum panels were installed on some of the angled ceilings to keep sound reverberation to a minimum.
As they designed this unique artistic abode, the architects looked for simple, inventive solutions in order to create the best possible environment for artists. In St-Jean-Port-Joli, as in the Newfoundland, Bourgeois / Lechasseur architectes gave considerable thought to natural light and to material conditions conducive to reflection, quiet stimulation and experimentation. The region’s artistic community and the village of Saint-Jean-Port-Joli in particular were given a true surge of vitality with the recent inauguration of Centre Est-Nord-Est. With its timeless image the vibrant new facility can now easily compete with the most desirable institutions of this type in today’s art world.
▼艺术家之家庭院夜景,night view of the court of the artist residence
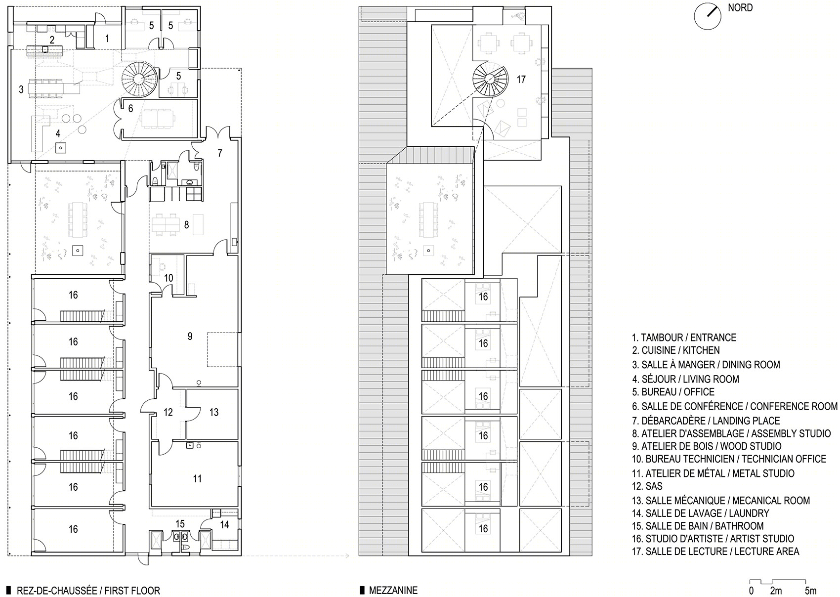
▼平面图,plans
Title: Centre Est-Nord-Est, artist residence Location: Saint-Jean-Port-Joli, Québec, Canada Client: Est-Nord-Est Architects: Bourgeois / Lechasseur architectes Design team: Olivier Bourgeois, Régis Lechasseur, Romy Brosseau, Pascale Ouellet-Dompierre, Valérie Gauthier, Isabelle Auclair, Maxime Rousseau Structural/civil engineers: Génie-Plus Mechanical engineers: LGT General contractor: Marcel Charest et fils inc. Project manager: Michel Roberge, Norda Stelo Spiral staircase manufacturer: Métal DUMEX Completion: July 2019 Area: 951 m2 Photographer: Adrien Williams Resident artist (studio appearing in photographs): Amanda Smith (United States)
客服
消息
收藏
下载
最近













