查看完整案例


收藏

下载
建筑事务所Some Place Studio为SML公司设计的新办公总部已于近日落成。该大楼将工作空间与公共空间联系在一起,以促进员工之间的交流。
Some Place Studio has designed a new office headquarters bridging the need for focused work with ample communal spaces fostering exchange and chance encounters.
▼总部大楼外观,exterior view of the headquarters © Simon Oberhofer
建筑师从SML公司的核心产品中汲取设计灵感——圆柱形的体量和重复出现的立面元素都暗示着流延薄膜的生产和重复的机械运动。金属的冷色调和干净利落且精确的角部线条与圆柱形的体量相结合,创造出一个在外观造型上宛如大型机器的总部大楼。
The architectural language takes cues from the machines that the company is building, creating moments suggesting rotating cylindrical shapes and repetitive machinic movements. Combining a metallic, cold color palette, clear cut and precise corners with cylindrical and rotational shapes, creates a building in itself reminiscent of a large machine.
▼总部大楼外观,金属的冷色调和干净利落且精确的角部线条与圆柱形的体量相结合,exterior view of the headquarters that combines a metallic, cold color palette, clear cut and precise corners with cylindrical and rotational shapes © Some Place Studio
总部大楼的外立面设计最大程度地提高了室内空间的灵活性,而尺寸相当的开窗也确保了每间办公室都享有同样舒适的环境。从室外可以看到大楼北侧角部的圆形空间的内部环境。该空间仅采用玻璃围合,不添加任何其他的外立面装饰,除此之外,竖向的隔板在玻璃外立面上重复出现,打造出一个简单的极简主义外观。
The facade is designed to allow for maximum flexibility on the interior and the equitable office structure, where all offices have similar window sizes. Through a repetitive vertical fin system, the facade is structured to be simple and minimalist, with only one moment interrupting the repetitive system. The rotund encounter spaces become visible on the outside, through a pane of rounded glass.
▼总部大楼外观局部,角部的圆形空间仅采用玻璃围合,除此之外竖向的隔板在玻璃外立面上重复出现,partial exterior view of the headquarters with a repetitive vertical fin system, with only the round corner interrupting it © Simon Oberhofer
户外的休闲空间以旋转为设计概念,创造出一系列木制平台,当夏季来临的时候,员工们可以坐在这里享受悠闲的午餐或者下午茶时光。
The landscaping is picking up the rotational theme in a series of wooden platforms designed for the summer months, where employees can sit outside for lunch or coffee breaks.
▼总部大楼剖透视图,户外的休闲空间由一系列圆形的木制平台构成,perspective section of the headquarters, the outside lounge consists of a series of round wooden platforms
位于首层的大堂空间在入口处设有一个圆形的接待处,在后方还设有一个咖啡厅。员工餐厅也位于首层,为整个公司的所有员工提供美味的午餐。大楼二到四层的中央位置是一个三层通高的中庭空间,二层的中庭部分就像是一个大型的室内广场,组织着通向大会议厅、小会议室和个人办公室的流线。
The lobby space at the bottom greets visitors with a round desk and a cafe in the back area. The staff cafeteria is also located on the ground floor, offering lunch for all workers from the entire factory. Through a small cut in the floorplate, visitors enter the ‘market’, the large plaza at the first floor which is also the bottom of the atrium, that become the starting point to access a large conference hall, meeting rooms, individual offices or the factory floors.
▼二层明亮的中庭空间,设有大型天窗采光,the bright atrium on the first floor with large skylights for the natural light © Simon Oberhofer
总部大楼的中心位置是一个明亮的中庭,围绕着中庭布置着一系列私人办公室。而雕塑般的楼梯不仅将中庭空间一分为二,更在竖向连接各楼层的同时提供了社交空间。
At the heart of the project sits a light flooded atrium surrounded by private offices. The atrium is bisected by a sculptural stair, connecting the levels and creating a social condenser.
▼中庭的楼梯将中庭空间一分为二,在竖向连接各楼层,the atrium is bisected by stairs that connect the levels
为了增强各楼层之间的联系,建筑师改变了各层楼板的形状,创造出一系列悬挑和阳台空间,形成出人意料的室内空间景观。各办公室的空间环境相同,均设有大窗户,可以满足自然通风和采光的需求。通常情况下,每间办公室可容纳2-4名员工,一侧可以直接通向中庭, 另一侧则设置大窗。
▼中庭楼梯俯视图,提供了社交空间,top view of the stairs in the atrium that create a social condenser © Some Place Studio
To amplify the connection between levels, the floorplates are changing their outlines, producing overhangs, balconies and unexpected vistas. The offices spaces are designed to be equitable and provide all employees with large windows, providing natural light and ventilation. A typical office holds 2-4 employees and has direct access to the central courtyard on one side and a window on the other.
▼明亮的中庭,采用白色色调,一系列悬挑和阳台空间形成出人意料的室内空间景观,the bright atrium in the white palette, overhangs and balconies create unexpected vistas © Simon Oberhofer
▼从三层看中庭,viewing the atrium from the second floor © Some Place Studio
▼中庭顶部,the upper part of the atrium © Simon Oberhofer
影印室和自助餐厅被布置在特定的位置,不仅为人们相遇创造了机会,更提供了一些闲谈的空间。
Printers and cafeterias are placed strategically to foster encounters and creates zones for casual meetings.
▼二层中庭的影印空间,the printers in the atrium on the first floor © Simon Oberhofer
圆柱形的多功能空间位于大楼的北侧,仅通过一个可拉开的幕帘与周围空间分隔,吊灯顺着圆柱形空间的边缘设置。多功能空间内部的环形桌具有极高的灵活性,即可配合着毗邻的厨房作为餐桌,又可配合着旁边的打印处作为会议桌。
▼圆柱形的多功能空间,通过可拉开的幕帘与周围空间分隔,the circular multifunctional space divided by a move-able curtain
On the north side, a circular space becomes a multifunctional space, only divided by a move-able curtain. The ceiling lights, visible from the outside, suggest a cylindrical shape, rotating on the interior of the otherwise opaque building exterior. A kitchen, printer island and circular lunch/meeting room table allows for various uses.
▼圆柱形的多功能空间,the circular multifunctional space
▼圆柱形的多功能空间,设有环形的吊灯和桌子,the circular multifunctional space with circular ceiling lights and tables © Some Place Studio
▼总平面图,site plan
▼首层平面图,ground floor plan
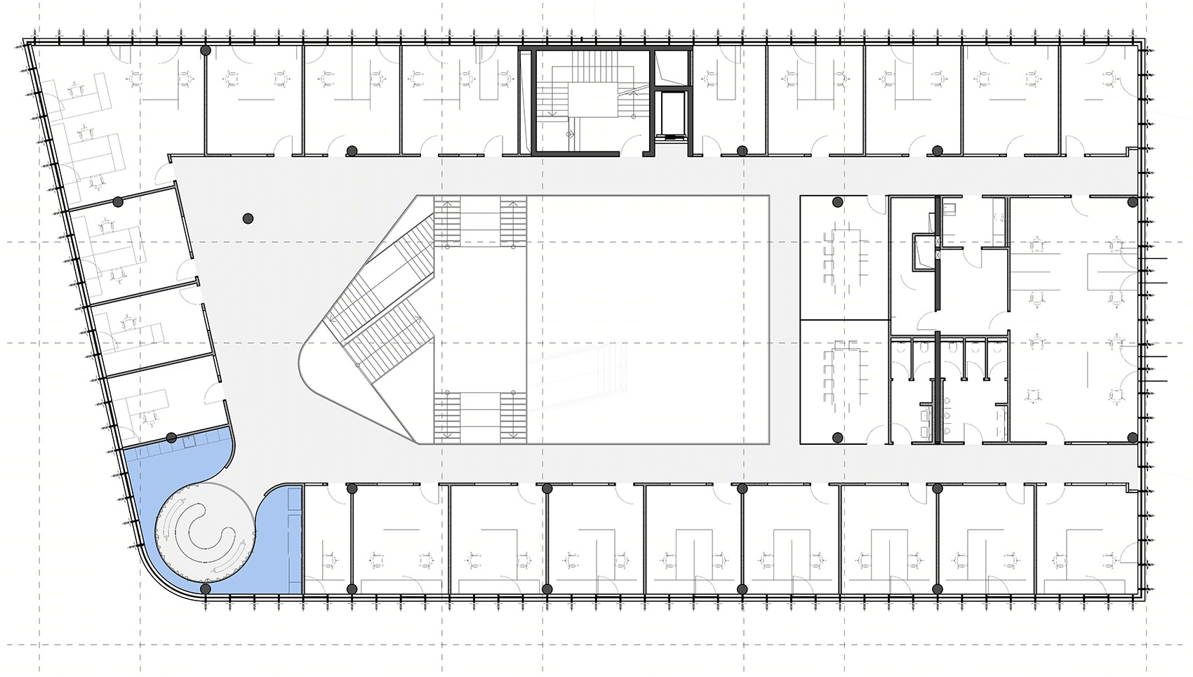
▼二层平面图,first floor plan
▼三层平面图,second floor plan
Project name: SML Headquarters Architecture Firm: Some Place Studio Completion Year: 2019 Gross Built Area: 5880 m2 Project location: Redlham, Austria Photo credits: Simon Oberhofer, Some Place Studio
客服
消息
收藏
下载
最近




















