查看完整案例


收藏

下载
把空间构想为连接事物的普遍能力,我们试图去探索更多空间构成的可能性,以及现实中物、物与物之间形成的场所对人行为及情绪的影响。作为个人工作室,我们力图营造一种更原始更基本的空间状态,空间原始些,对设计思考的触发力就会更大。
To conceive space as the universal ability to connect things, we try to explore the possibilities of more spatial composition, as well as the effects of the places formed between things, things, and things on human behavior and emotions in reality. As a personal studio, we try to create a more primitive and basic space state, the space is primitive, the trigger for design thinking will be greater.
▼空间一览,overall view of the interior
原始建筑中墙体作为空间分隔的界面,只作为单一元素存在。如果墙体足够宽厚,墙体自身是否有形成空间的可能?为此,我们依序置入三个长方体,将立面切开,挖去一些部分。这三重体量就本身来说都是不完整的,甚至是片段的,但在视觉上却叠合在了一起,拓展了空间秩序。
The wall in the original building acts as a space-delimited interface and exists only as a single element. If the wall is lenient enough, does the wall itself have the potential to form space? To this end, we put three cubes in sequence, cut the façade, and dig out some parts. This triple volume is incomplete in itself, even in fragments, but is visually stacked together to expand the spatial order of space.
▼分解轴测图,空间中置入三个长方体,exploded axonometric, three cubes put in sequence
相互平行的界面互相参照,墙体消失,体量成为室内的框景。根据不同功能位置需求,对体量内部空间进行压缩与释放,形成廊道、天井与巷弄。借由依附实体的白色纱帘,柔化了方正体量的僵硬感,虚实变化让空间变得更加暧昧随性自由。
Parallel interfaces refer to each other, the walls disappear, and the volume becomes the frame of the room. According to the needs of different functional locations, the internal space of the volume is compressed and released to form corridors, patios and alleys. By relying on the white yarn curtain of the dependent entity, the stiffness of the founder body is softened, and the virtual change makes the space more ambiguous, natural and free.
▼入口空间,entrance space
▼办公区,working area
▼白色纱帘形成柔和暧昧的空间效果,white curtains soften the space
▼抬起的地面和体量围合成休息区,raised flooring and volumes created the resting area
▼休息区旁边的独立办公室,individual office beside the resting area
▼墙体消失,空间更为灵活自由,replace the concrete walls to make a more flexible space
▼体量组合形成的走廊空间,corridors created by volumes
入口设置 Donald judd的铝制装置,灯光透过蓝色有机玻璃渐渐晕开,为毫无装饰的白墙增添了几分纯粹。界外素水泥与白色体量形成一种内与外、新与旧、紧张与放松的对话关系。设计定制的白蜡木家具简洁有张力,平衡着饰品、空间量体的磁场关系,即彼此依赖相互交融的物限定了空间的存在。
Entrance set Donald Judd’s aluminum device, the light gradually fainted through the blue plexiglass, adding a bit of purity to the unadorned white wall. The amount of exogenous cement and white body forms an internal and external, new and old, tense and relaxed dialogue relationship. Designed custom white wax wood furniture simple and tension, balance the jewelry, space volume of the magnetic field relationship, that is, each other dependent on the blend of things to limit the existence of space.
▼入口蓝色灯光细部,details of the blue lighting at the entrance
▼置物柜的灯光效果,lighting effect of the cabinet
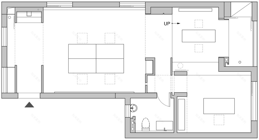
▼平面图,plan
客服
消息
收藏
下载
最近

















