查看完整案例


收藏

下载
停车场是城市发展的必要产物。基于对博登湖沿岸土壤污染和地下水高水位线的考虑,立体停车场似乎是当地社区环境的首要选择。坐落于滨海湖畔这一战略性位置上,该栋建筑除作为停车场外,还承载了船舶码头和消防站等功能。它的存在不仅解决了社区需求,还重新组织了社区结构,加强了周边社区与港口的联系。
▼建筑外貌,exterior view
建筑如同庞然大物般植入场地之中。带有不规则波浪纹理的立面穿孔金属板,为建筑内部营造了悦动又丰富的光影空间。暖调的金属外壳在日光下闪闪发光,它隐匿在城市之中,却又优雅的向人们宣誓它的存在。
The parking building looks like a giant stranger lying inside the neighborhood. The shell-like perforated metal panels in copper are placed around the building, through which the sunlight goes into the space leaving the dynamic light-spot on the ground, while the warm tone of the metal sheet shines under the sun. The parking building hides inside the city as well as showing its appearance gently.
▼波浪穿孔金属板外貌,the shell-like perforated metal panels in copper are placed around the building
▼穿孔金属板为建筑内部营造了悦动又丰富的光影空间,the sunlight goes through the space leaving the dynamic light-spot on the ground.
▼空间内景,interior view
▼阳光下闪烁的建筑,the shining building
▼场地图,site plan
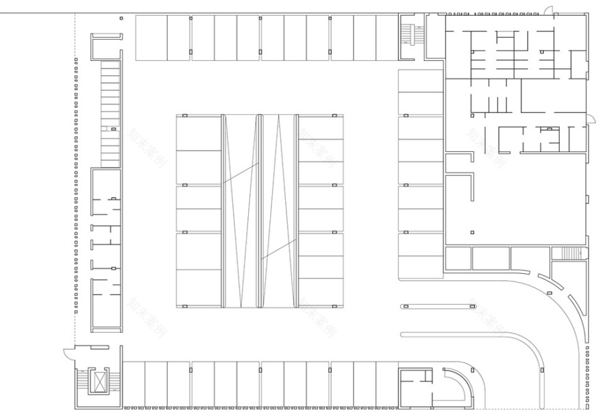
▼底层平面图,the ground floor plan
▼二层平面图,the first floor plan
▼剖面图,section
Standort Zwanziger Straße, 88131 Lindau Auftraggeber Stadt Lindau; Lindau Tourismus und Kongress GmbH Architekt Auer Weber, München;
Till Richter (verantwortlich),
Florian Zopfy (Projektleitung),
Doris Binder, Daniela Hohenhorst,
Duc Hua, Markus Schoch, Martin Stang, Christina Stein, Daniela Sacher,
Franz Stinner, Heinz Wendl,
Moritz Wolf, Mohan Zeng Freianlagen Rainer Schmidt Landschaftsarchitekten GmbH, München Tragwerksplanung Boll und Partner GmbH & Co. KG, Stuttgart Technische Ausrüstung Ingenieurgesellschaft für Haustechnik Wetzstein, Herrenberg;
Raible + Partner GmbH & Co. KG, Ditzingen Brandschutz mhd Brandschutz, Konstanz Verkehrsplanung PSLV Planungsgesellschaft Stadt-Land- Verkehr GmbH, München Signaletik Sägenvier DesignKommunikation, Dornbirn (A) Projektsteuerung Hitzler Ingenieure, München Daten Wettbewerb 2010 Beauftragung 2014 Baubeginn 2015 Fertigstellung 2017 Programm Barrierefreies Parkhaus mit knapp 400 Stellplätzen; öffentliche WC-Anlage, Sanitäranlagen für Bootslieger, Feuerwache und Fahrradboxen.
photo by Aldo Amoretti
客服
消息
收藏
下载
最近















