查看完整案例


收藏

下载
来自Rockwell Group的设计师与Second Stage紧密合作,为这栋拥有100年历史的剧场建筑赋予全新的生命,并用当代设计语言重新解读了建筑的历史特性,回应了经营者的当代艺术审美标准。此次工程包括了室内外环境的翻修,及更为现代化建筑环境的整体营造。
Rockwell Group has collaborated with Second Stage to completely renovate the historic 100-year-old- theater and bring about a more modern and approachable design vocabulary that references the theater’s heritage and reflects the operator’s contemporary aesthetic. The redesign involved updates to existing exterior and interior design elements and creating a more modern environment overall.
▼剧场外貌,the exterior view ©Paul Warchol
新乔治亚式风格外貌,使Hayes剧院成为纽约剧院区的独特风景。然而随着年代的更替,该建筑急需升级和改造它的基础设施,来满足表演艺术家和观众的高品质使用需求。此次改造为后台加入了全新的传动装置,使戏剧表演在维持优雅转场的同时,提供更为复杂的舞台布景。该项目还包括对建筑各层暖通空调系统的全面整修,火警报警系统的替换更新,并融入节能减排措施,以实现LEED黄金级认证标准。
With its unusual Neo-Georgian design, the Hayes Theater is a striking presence in New York’s Theater District. However, the building was showing its age and was need of significant upgrades to the infrastructure in order to provide artists and audience members with the production values and comfort they expect at Second Stage. The renovation adds a modern rigging system in the stage house, allowing scenic artists to be able to build more sophisticated sets, without reducing the elegance of the transitions. The renovation also includes a complete overhaul of the HVAC system on all floors, an upgraded fire alarm system, and the addition of energy saving measures, with a goal of earning LEED Gold certification.
▼改造为后台加入了全新的传动装置,使戏剧表演拥有供更为复杂的舞台布景,the renovation adds a modern rigging system in the stage house, allowing scenic artists to be able to build more sophisticated sets ©Emily Andrews
剧院礼堂的像素画墙壁展现为由深蓝到浅蓝的渐变。搭配黄铜的黑色座椅架给剧院一个焕然一新的视觉效果,巧妙的将建筑的历史特性与Second Stage的当代风格相结合。原Hayes剧院墙面由洛可可风格艺术家François Boucher(b. 1703 – d.1770)创作的巨型挂毯装饰。此次由Rockwell Group重修的剧院墙壁,以原墙壁挂毯为灵感,用更加数字化和现代化的手法呈现了这幅作品。Boucher的其中一幅挂毯描绘了希腊/罗马剧院之神迪奥尼索司/酒神巴克斯。这一场景被设计师放大并以抽象像素画的形式呈现在剧院墙壁上,且该副画作由剧场坐席背侧的浅蓝逐渐变幻为剧院前侧的深蓝色。
The auditorium has been transformed visually with a pixilated mural over walls that transition in ombré from light to dark blue. Iridescent copper fabric seating and glossy black light fixtures give theater a fresh look that blends its history with Second Stage’s modern style. When the Hayes Theater first opened (as the Little Theater) the walls were adorned with reproductions of large tapestries originally designed by the Rococo artist François Boucher (b. 1703 – d.1770). Rockwell Group’s new environmental mural is inspired by those tapestries, but is a modern, digitised interpretation. A scene from one of Boucher’s tapestries depicting Dionysus/Bacchus—the Greek/Roman god of theater—was enlarged and applied to the side walls of the theater in a blue ombré pattern, shifting from lightest at the rear of the auditorium to darkest at the front. The image that is applied to the walls has a pixelated look that makes it appear abstract up close.
▼剧场内景,interior view ©Paul Warchol
▼剧院墙壁,以原墙壁挂毯为灵感,用更加数字化和现代化的手法呈现了原挂毯作品,Rockwell Group’s new environmental mural is inspired by those tapestries, but is a modern, digitised interpretation ©Paul Warchol
▼搭配黄铜的黑色座椅架给剧院一个焕然一新的视觉效果,iridescent copper fabric seating and glossy black light fixtures give theater a fresh look that blends its history with Second Stage’s modern style ©Paul Warchol
通过幻化原墙面挂毯的形象,设计师希望唤回Little Theater的精神象征,并以此回应与原剧院有着相似经营理念的Second Stage企业未来愿景。设计师以数字化手法将“Bacchus and Ariadne”以单一蓝色点状图案呈现,并将这一图案用激光打印机喷绘在漏字板上。随后,该漏字板被覆盖在蓝色渐变墙壁上,并结合数字化设计和精致的细节雕琢。基于点描绘法和焦点部位的多方位实验使该幅画作始终以抽象的形态呈现。
The Rockwell team digitised “Bacchus and Ariadne” in a blue one-color dot pattern. It then printed the pattern as a stencil on a large laser printer. The stencil is then overlaid on blue ombré-painted walls, combining digital design and painstaking craftsmanship. Much experimentation with the focal point and the pointillism was carried out so that the image remains largely abstract. In playing with the ghost of the original decor, Rockwell Group wanted to evoke the spirit of the Little Theater because its mission of serious theater aligns with Second Stage’s ambitions for the Hayes Theater.
▼墙面像素画由剧场坐席背侧的浅蓝逐渐变幻为剧院前侧的深蓝色,the image shifts from lightest at the rear of the auditorium to darkest at the front. ©Paul Warchol
▼像素画细节,detail of the pattern ©Paul Warchol
剧院大厅的下层维持了其原始功用,供戏迷们在演出先后及间隙在此聚集讨论。原位于剧院三层的办公室被改造成更衣室和演员休息室。此外,设计师在该剧院中引入了一个全新的多功能公共区域。白天该空间可作为工作坊和读书区,夜晚演出期间这里便转变为临时休息空间。
The lower lobby of the theater has been restored to its original use as a gathering space and concessions area for theater-goers before the show and during intermission. Private offices on the third floor were reclaimed as dressing rooms and a green room. A new public space was added by the Rockwell Group design team: a multipurpose room for play readings/workshops during the day and for use as a donors’ lounge during performances.
▼入口门厅,the entrance lobby ©Paul Warchol
▼售票处,the ticket office ©Paul Warchol
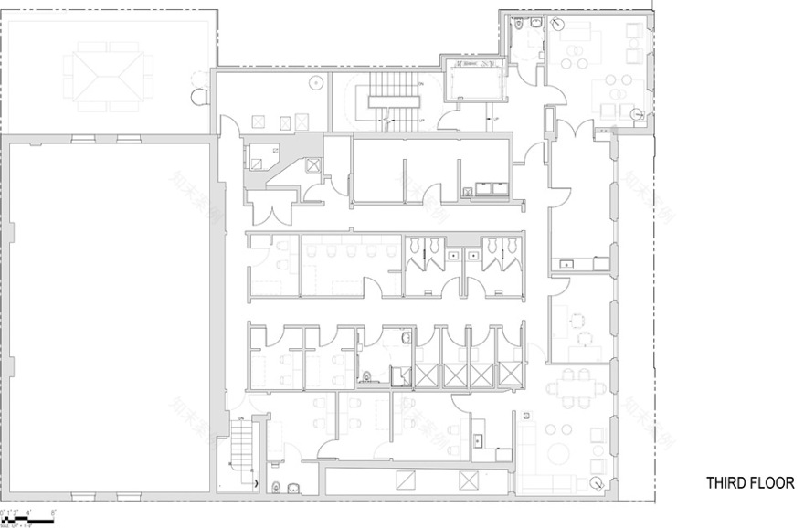
此次改造的最大工程是拆除了原作为紧急疏散通道的联排房屋。这个占地面积18 x 70英尺(约5.5×21米)的空间如今被用作相邻St. James剧院的后台扩建部分。该区域的剩余部分则搭建了建筑的电梯和出口楼梯间,此外,位于此区域上三层沿Donor Lounge休息处及包厢层设置了洗手间。
A major part of the refurbishment saw Rockwell Group demolish the remnant of an old townhouse that was used as an areaway for emergency exiting. A portion of this 18’ x 70’ footprint was used to create an extension to the adjacent stage house of Jujamcyn’s St. James Theater. The remaining area of this footprint provides an accessible elevator and exit stairs as well as an accessible bathroom at the Balcony level and 3rd floor, along with the Donor Lounge at the 3rd floor.
▼楼梯间,staircase ©Paul Warchol
▼地下层平面,cellar plan
▼演奏层面,orchestra plan
▼包厢层面,balcony plan
▼三层平面,third floor plan
Address: 240 West 44th Street, New York, NY Photography: Images by Paul Warchol
客服
消息
收藏
下载
最近





















