查看完整案例


收藏

下载
木又寸 (Atelier Tree) 为服装品牌TF.33设计了在2018北京服装展会上的临时展亭。经典的东方庭院空间被抽象为装置,呈现于中国农业展览馆展馆室内空间中。
Atelier Tree designed a temporary pavilion for the fashion brand TF.33 in a clothing exhibition in Beijing, 2018. Traditional eastern courtyard space is epitomized into an installation, presented in National Agricultural Exhibition Center in Beijing, China.
▼展亭外观,exterior view
安装建造时间被限定在16小时之内,以工业成品材料构建,使材料藉由成为结构或饰面清晰地传达毫无掩饰的诚实精神的建造策略,实现了极低的预算控制。混凝土空心砌块、铝箔风管、聚碳酸酯板、金属方钢管这些构成展亭的材料,在完成3天的服装展示任务之后,可全部被回收再次利用。
Time for construction and building is restricted within 16 hours. We used finished industrial products as structure as well as decoration surface to express clearly an inconspicuous and honest construction strategy, which also kept the budget at a very low level. All materials used to build the pavilion, including hollow concrete blocks, flexible aluminum foil ducts, polycarbonate panels, and square steel tubes, can be recycled and re-used after the 3-day exhibition.
▼展亭室内概览,interior overview
▼展亭使用了混凝土空心砌块、铝箔风管、聚碳酸酯板和金属方钢管等可回收的材料,hollow concrete blocks, flexible aluminum foil ducts, polycarbonate panels and square steel tubes can be recycled and re-used after the 3-day exhibition
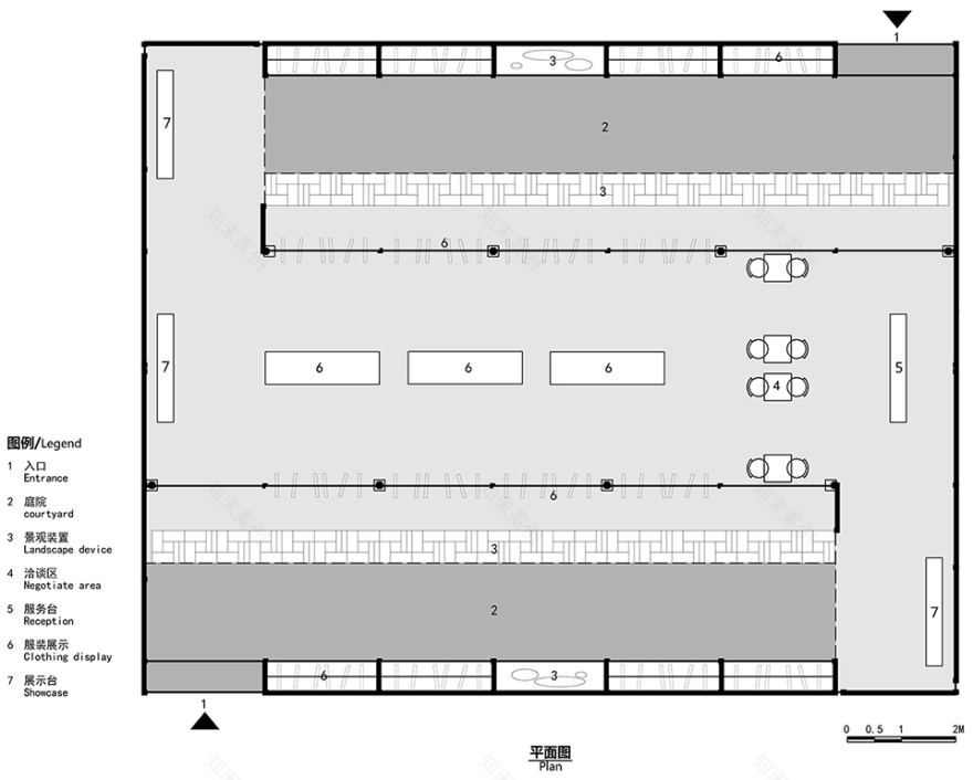
展场限高4.5米,木又寸降低庭院两侧围合结构高度至两米,使中部金属编织坡屋面闪耀的光芒越过围墙。在场地周边极限利用限高建造的高大展亭的围合之下,反而成为目光与人流汇集的能量盆地。矩形展位四面毗邻展厅通道,自然的将出入口预留在南北主要通道界面沿场地对角线的位置,南北两侧庭院与中部坡屋面将场地划分为三部分平行的内外空间,也同时限定出S型参观动线,贯穿了庭院和室内服装主要展示区及洽谈休息区。
The exhibition site has a height limit of 4.5 meters. Atelier Tree lowered the courtyard fence height to 2.0 meters, which enabled lights of the metal-weaved dual-pitched roof to flash over the fence. Surrounded by tall exhibition stands built to the height limitation of 4.5 meters, the pavilion managed to attract views and crowds as an energy basin. The rectangle exhibition site was enclosed by pathways from four directions, so we naturally reserved the two entrances/exits diagonally on two main paths: the north path and the south path. The two courtyards and the pitched roof in the middle sectioned the site into three parallel internal and external space, leading to an S-shaped tour line throughout the courtyard, the main clothing exhibition area, and the business negotiation area.
▼服装展示区,fashion exhibition area
▼金属编织坡屋面闪耀的光芒越过围墙,the lights of the metal-weaved dual-pitched roof to flash over the fence
▼风管孔洞与风管间缝隙使室内外空气、光线、视线得以穿透和流转,the structure of the ducts and the gaps between them enabled the air to circulate and to flow, the light to pass through, and visitors’ eyes to keep moving
展亭外围用金属方钢管做框架,同时兼具围墙结构与服装挂架的功能。外部包覆乳白色半透明聚碳酸酯阳光板,纤薄却不可逾越。摇曳的服装和展亭内参观者朦胧的影子,在聚碳酸酯板上留下生动的黑白影像,围墙成为时刻变化的默剧荧幕。参观者穿过低调的展亭入口,进入抽象庭院内部,在直率单纯的装置空间中穿行,探索展示在庭院与坡屋面空间下的服装设计作品。
Outside the pavilion, we used square steel tube as frames which served both structure and display functions. The fence and the roof were covered with ivory translucent polycarbonate panels, thin but unable to be traversed. The slight swing of the clothes and the hazy shadow of the audience left a lively monochrome image on polycarbonate panels, turning the fence into a constantly changing dumb-show screen. Visitors passed through the low-key pavilion entrance and walked into the inside of the epitomized courtyard, crossing the straightforward and pure installation space and exploring designer’s clothes exhibited under the pitched roof and in the courtyard.
▼展柜视角,showcase
编织屋面压低的檐口强化了与庭院空间的边界,檐口下框出了当人坐下时可放置目光的横向展开的平静洞口。混凝土砌块拼砌成景观装置在檐口下铺展开来,是室内和庭院的区隔,亦是二者共享的风景。
The eave of the weaved rooftop was lowered to emphasize the boundary of the courtyard, creating a calm cave that was unfolded horizontally for visitors to rest their eyes while sitting down. Landscape installation constructed from concrete masonries formed a threshold between the interior and the courtyard, rendering a scenery that could be shared by audience in both spaces.
▼混凝土景观装置分隔出室内和庭院,concrete installation formed a threshold between the interior and the courtyard
▼展示台,display stand
坡屋面这一东方传统建筑重要元素意向,在展亭中部用直径300毫米的铝箔风管编织覆盖。金属质感编织屋面呈现出厚重的体积感,但其实铝箔材质却只有极轻的重量。风管孔洞与风管间缝隙,使室内外空气、光线、视线得以穿透和流转,屋面成为仿佛具有生命的呼吸器官,空间装置与环境被融合起来。
The pitched roof, as the realization of a vital classic architectural element of the East, was covered by weaved flexible aluminum foil ducts with diameter of 300mm. Despite of the heavy sense of volume presented by the metal-weaved roof, the aluminum foil material weighs extremely light. The structure of the ducts and the gaps between them enabled the air to circulate and to flow, the light to pass through, and visitors’ eyes to keep moving. The roof became a breathing organ that integrated the space installation and the environment.
▼屋面细部,detailed view
屋面编织与聚碳酸酯板几何裁切的动作将建造行为引向布料的制作联想,展亭也即刻转变为参观展示行为的皮肤,展亭建造演变为服装的创作活动。半透明纤薄外墙与铝箔风管上陆离的光影,以及空间中恍惚移动的参观者,制造了一场虚幻与现实间的当代梦境。
The making of weaved roof and the geometric cut of polycarbonate panels associated the construction activity with the making of textiles and clothing. Meanwhile, the pavilion itself instantly turned into the “skin” of the exhibition activity, and the construction of the pavilion became a creation of clothing design. Shadows projected onto the thin translucent walls, lights reflected by the aluminum foil ducts, and visitors moving in a trance together created a contemporary dream between the virtual and the reality.
▼聚碳酸酯半透明外墙,translucent wall made of polycarbonate panels
▼模型,model
▼概念生成示意图,concept diagram
▼轴测图,axon
▼功能示意图,function legend
▼动线示意图,circulation diagram
▼平面图,plan
▼立面图,elevations
▼剖面图,section
设计公司:木又寸建筑事物室 主创建筑师:常凯生 设计团队: 建筑师:常凯生、曾丹、郭心朵、杜雷 项目名称:即时风景 – TF.33 服装展亭装置 项目性质:建筑、展示、装置、室内 项目规模:180 m² 客户:灯塔市七鹤星皮装厂 位置:全国农业展览馆 设计时间:2018.4.24 – 2018.5.15 建成时间:2018.5.22 施工单位:北京华美万泰文化传媒有限公司 摄影师:李什么,木又寸团队 Design Studio: Atelier Tree Chief Architect: Casen Chiong Team: Architects: Casen Chiong, Dan Zeng, Xinduo Guo, Lei Du Project name: Instant Scene – TF.33 Pavilion Installation for Clothing Exhibition Program: Architecture, Exhibition, Installation, Interior Building area: 180 m² Client: Qihexing Leather Clothing Factory Project location: National Agricultural Exhibition Center, Beijing, China Design date:2018.4.24 – 2018.5.15 Completion date:2018.5.22 Construction team: Beijing Hua Mei Wan Tai Culture Media Co. Ltd. Photographer: Shenme Li; Atelier Tree
客服
消息
收藏
下载
最近

























