查看完整案例


收藏

下载

翻译
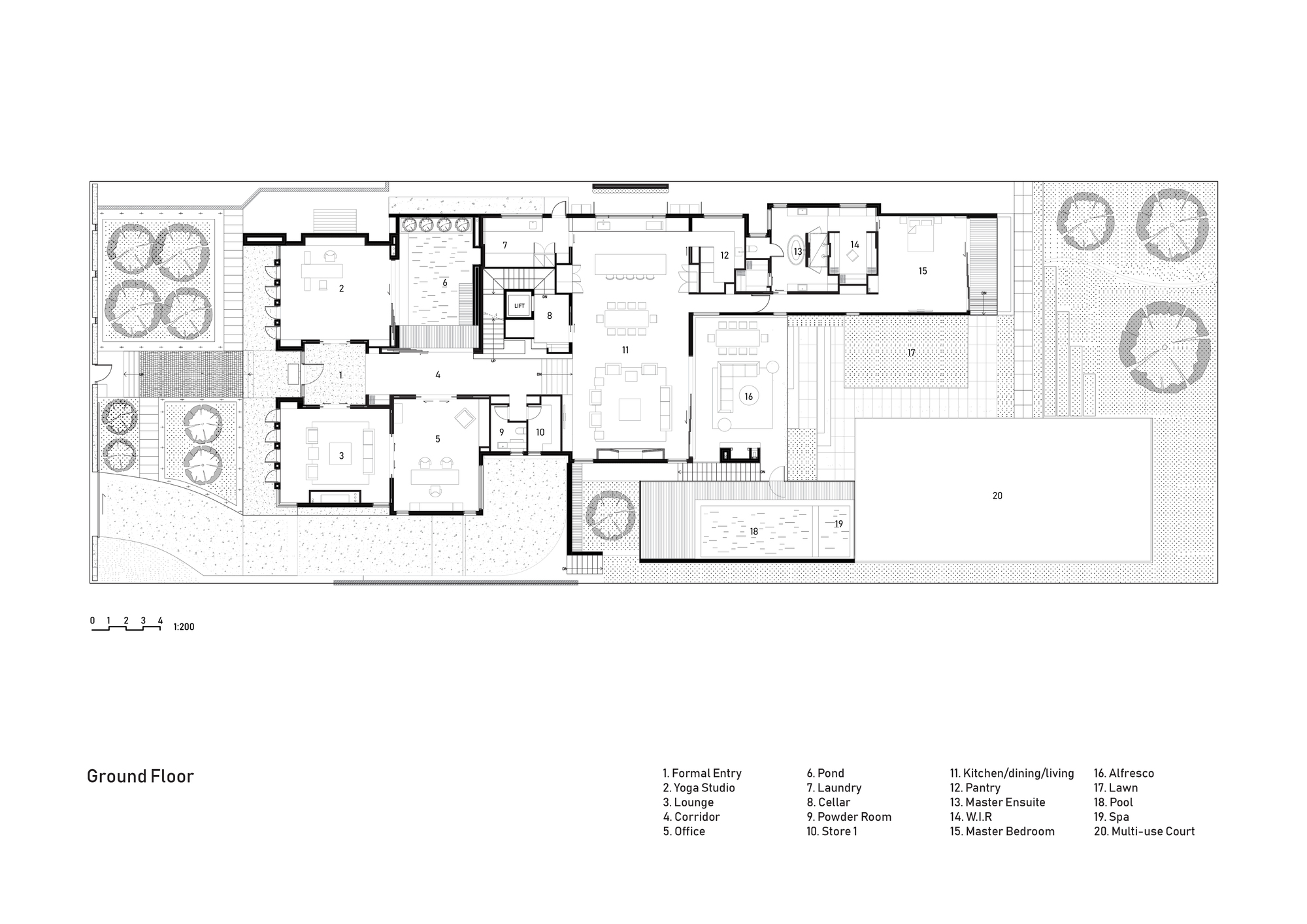
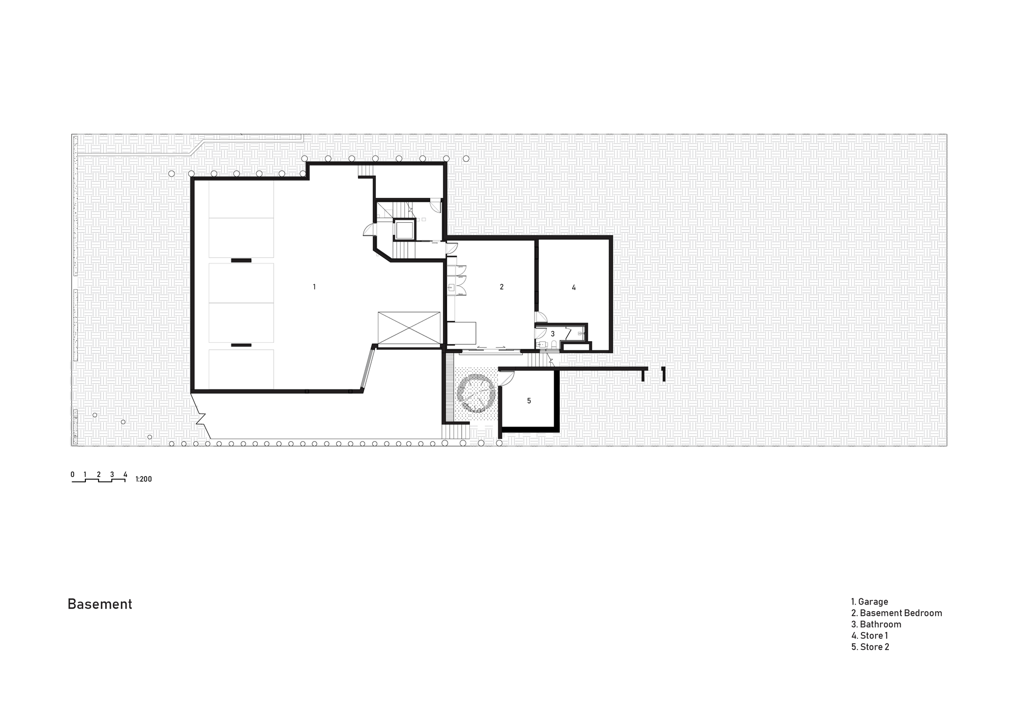
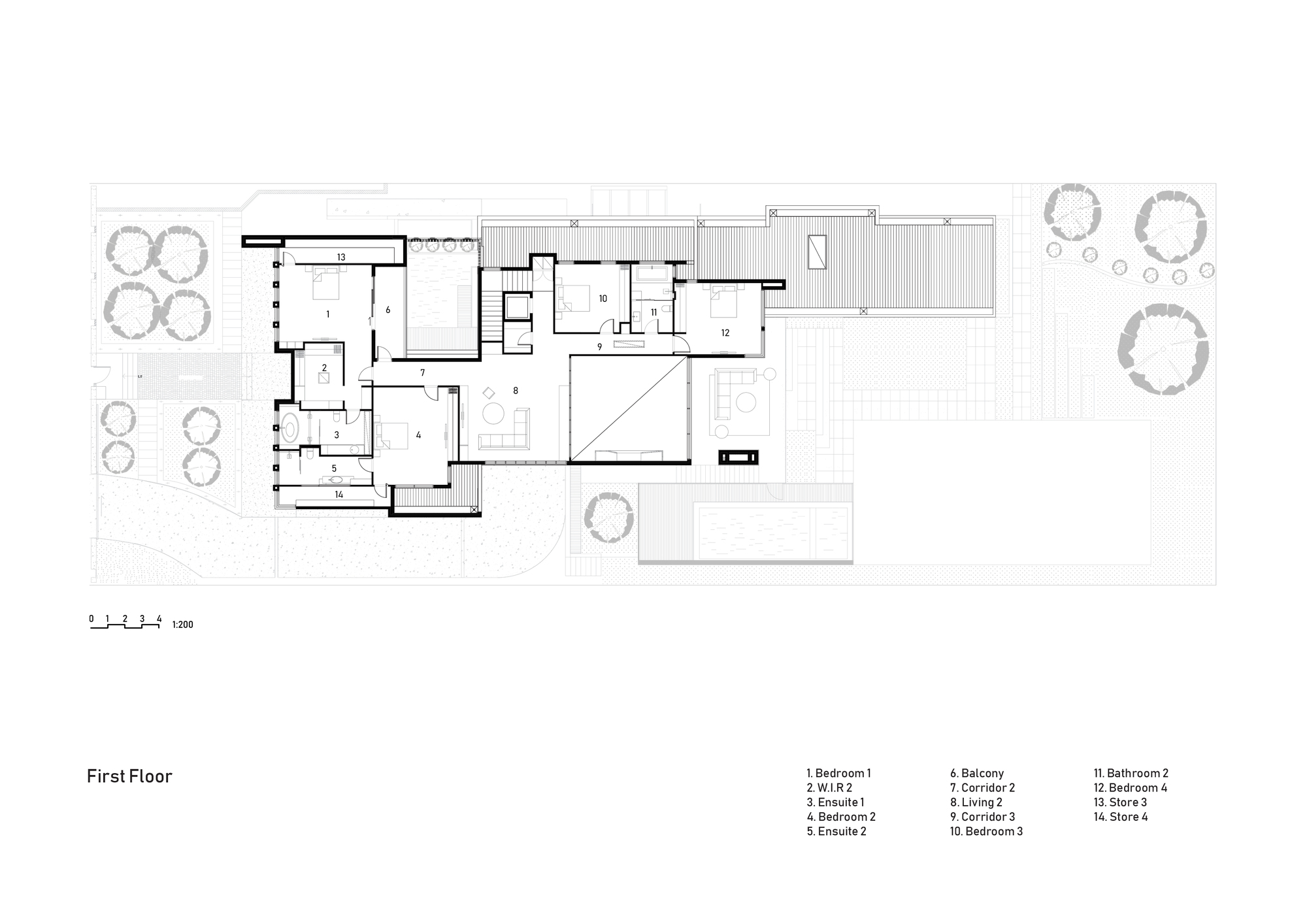
J house is a modern 7-bedroom mansion designed for a private family. The house sits on a significantly sloping site with excellent views and Northern light to the rear. Over three levels, the brief included multiple living spaces, gym, theatre, tennis court, swimming pool with spa and a garage for several cars. Enhanced sustainability was a priority. Accordingly, the house features a solar farm on the roof with supply batteries in the basement and utilises insulation, double glazing and water recycling, creating a sizeable energy-efficient home.
Despite being a luxury home, the architectural design demonstrates restraint concerning the appearance of the building. The house was to remain timeless and retain strong resale appeal within the context of the area. The main living areas take advantage of the lush gardens and a northerly aspect while an expansive internal courtyard captures natural daylight and improves the airflow and ambience to its adjacent spaces.
High-quality stones, both natural and synthetic, were used throughout ensuring durability and longevity. These were often in darker earth tones. Genuine brass trimmings used in handrails and door handles give contrast and finish the homes earthy palette. The owners wanted a modern feel without looking extreme or futuristic. The external of the house is elegant, timeless and mindful of the surrounding traditional and classical architecturally inspired neighbourhood. The result is an understated contemporary home that feels luxurious without being ostentatious.
客服
消息
收藏
下载
最近

























