查看完整案例


收藏

下载
项目名称:澳大利亚J之家
位置:澳大利亚
设计公司:Wolf Architects
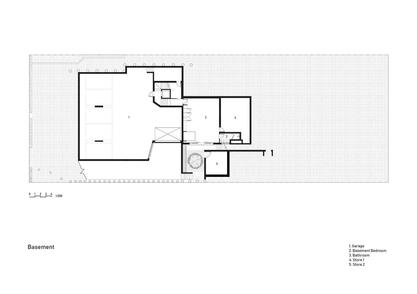
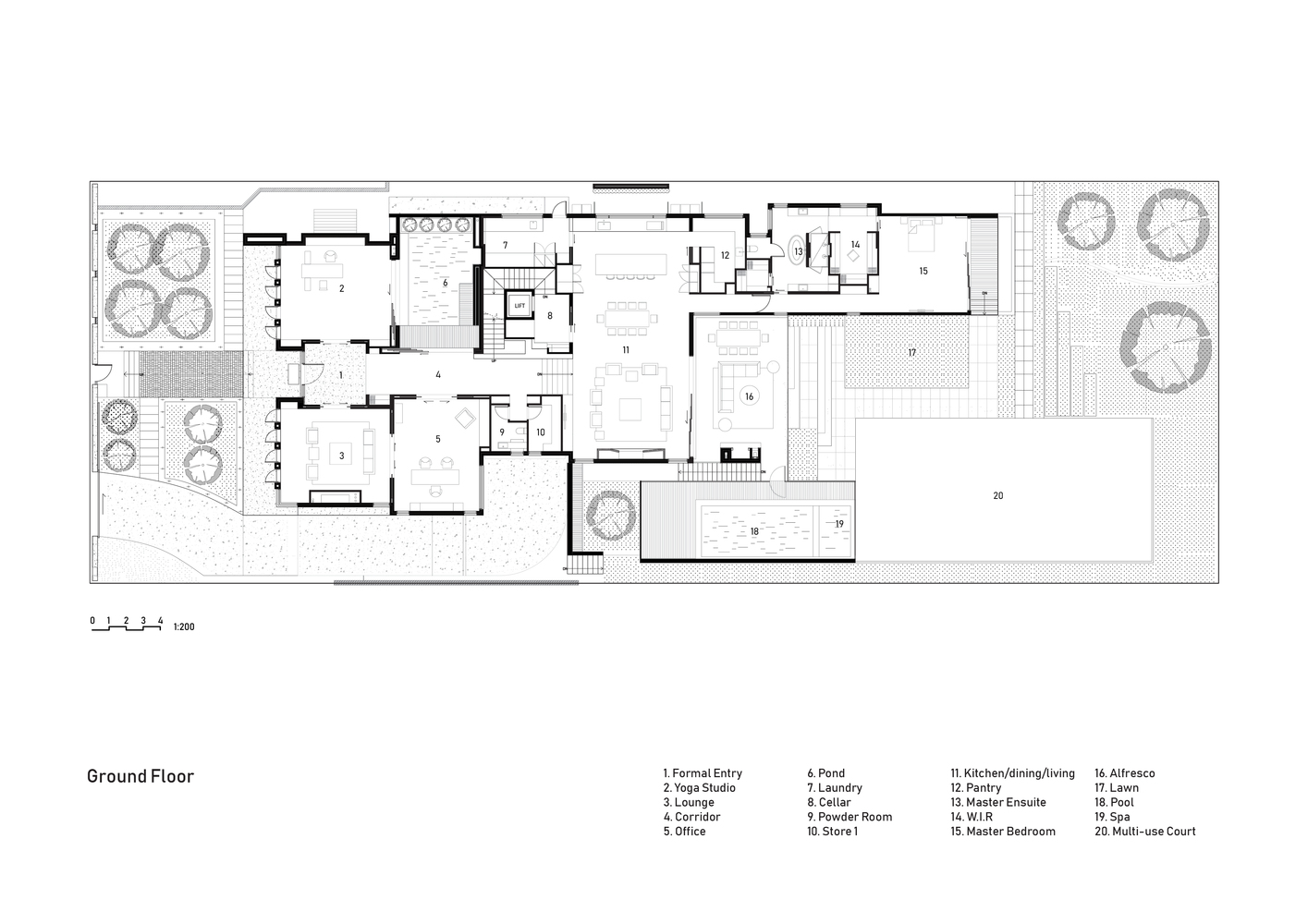
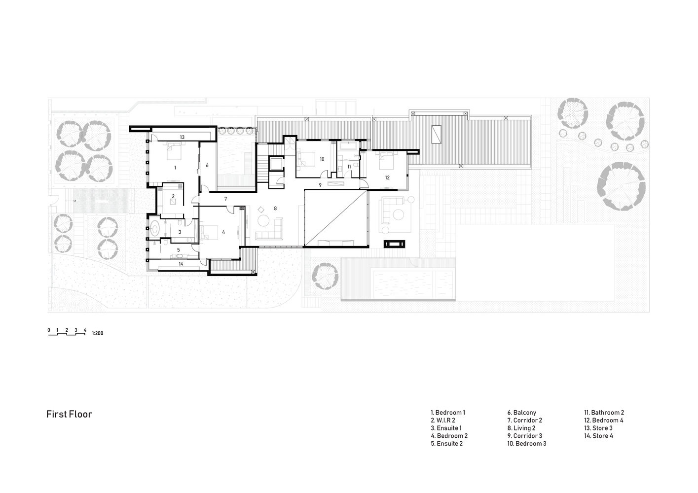
J house是专为私人家庭设计的现代化7卧室豪宅。房屋位于明显倾斜的场地上,享有绝佳的视野,并向后方照射北极光。简介分为三个层次,其中包括多个起居空间,健身房,剧院,网球场,带水疗设施的游泳池和可容纳数辆汽车的车库。增强可持续性是当务之急。因此,该房屋的屋顶上有一个太阳能农场,在地下室中有供电电池,并利用了隔热材料,双层玻璃和水循环利用,从而形成了一个大型节能住宅。尽管是豪华住宅,但建筑设计显示出对建筑物外观的限制。该房屋将保持永恒,并在该区域内保持强烈的转售吸引力。主要生活区利用葱郁的花园和朝北的景色,而宽敞的内部庭院则可吸收自然光,并改善了相邻空间的气流和氛围。始终使用高质量的天然和人造石材,以确保耐用性和寿命。这些通常是深色的。扶手和门把手中使用的纯黄铜饰边给人以对比,并完成房屋的泥土色调。业主想要现代感,而又不显得极端或未来主义。房屋的外部优雅,永恒,并铭记着周围传统和古典建筑风格的居民区。结果是一个低调的现代住宅,既豪华又舒适。
澳大利亚J之家外部实景图
澳大利亚J之家内部实景图
澳大利亚J之家平面图
澳大利亚J之家立面图
客服
消息
收藏
下载
最近





















