查看完整案例


收藏

下载
罗马建筑设计公司Alvisi Kirimoto设计的行政办公室位于芝加哥West Loop城市中心,在河流岸边一栋224米高的新建摩天楼的32层,面积为2600平方米,它耸立于云层之间,牢牢扎根于自身环境之中。项目设计目的是容纳客户的总部和展示其部分艺术收藏。
建筑师Massimo Alvisi与 Junko Kirimoto这样描述这个空间体验:“一走出电梯抵达32层,你感觉仿佛自己又沉浸于城市环境之中了——虽然是位于不同的高度和视角,却像是好好地站在芝加哥街道上。我们在墙壁、光线和视觉轴线紧凑韵律的引导下,漫步于当代东方艺术或考古展品中,偶尔震惊于窗外强烈的色彩或高耸的大楼。事实上,我们的第一直觉是让转角保持自由,维持与城市的视觉交流。”
空间主入口位于建筑核心筒,这里也包括所有的服务和设施。入口空间一侧是接待区另一侧是游戏室,巨大的落地窗户让访客与芝加哥的两面建立联系:城市和风貌。从平面上看,北侧布置最具有代表性和综合性的功能区域,包括接待区、会议室、冬季花园、展览路线和餐厅区域,南侧是相对私密的办公室和一些公共区域。
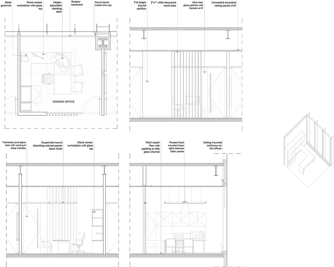
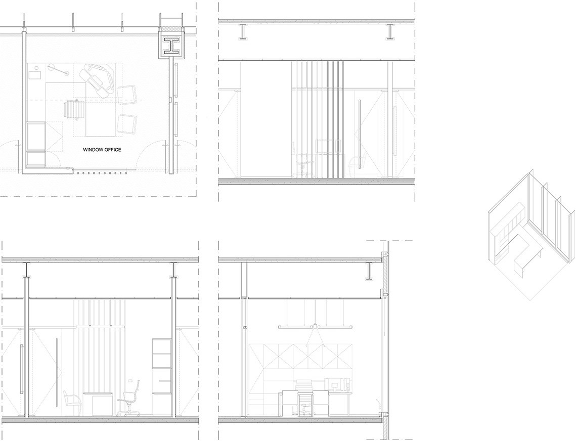
室内空间采用了从地板延伸到天花板的天然木材墙面、玻璃隔断和吊顶天花板,通过组合来构成不同的工作区域。这些元素高度的灵活性和透明性使得访客与员工即使在不透明材料分隔的最私密的区域也能欣赏到令人惊叹不已的美景。木墙消隐成垂直板条,维持一定程度的私密与光亮,同时也是项目的主要特征元素。访客通过这一元素指引抵达冬季花园,这是一个两层高的多功能空间,是项目跳动的心脏。
两位建筑师继续描述道:“从弥漫在芝加哥的蓝调音乐的结构中,我们吸取到‘张力与松弛’的概念,3.60米高的空间对于办公室来说绝对是不同寻常的,这使得我们能够交替悬挂各种元素如织物面板或者将雕塑元素放置于地板上,形成不同的高度变化。收缩和悬浮的游戏在冬季花园中发挥到极致:一个悬浮于城市上空的独特空间,一个物质与感知的隔离空间,能够容纳音乐、艺术和活动如冥想和阅读。” 根据视角不同,冬季花园的表皮由两排互不对齐的悬垂木条组成,中间夹有的透明玻璃隔断被消解或变得不再透明,产生不同的视角并激活了一个有趣的光影游戏。内部环境如同一个灯箱,允许光线穿透双层遮光和滤光窗帘系统,木条分隔相邻空间。房间布置有日本艺术家Ueno Masao设计的竹子悬挂雕塑和Junko Kirimoto设计的日本漆面桌子。空间具有东方风情,比例合理,符合Alvisi Kirimoto studio的所富有的意大利和日本情愫。
从家具如工作台和自助餐厅桌子到灯光的布置和分级,项目的所有元素都是精心定制和相互协调的。色彩使用也很重要,有时候给人以宁静感,有时限定出一片空间或某种功能区域。色系包括游戏室天花板和办公室吊顶的亮橙色、餐厅墙面和面板形成对比的灰色和鲜艳红色、入口处日本墙纸柔和的深褐色、开放式工作站空间崭新的白色,塑造了一个色彩丰富的空间。
最后也很重要的一点是,艺术也起着重要的决定性作用:办公室内部有一条超过1000平方米的整体展览路线,专门用于展示业主的收藏品,这一系列空间与城市相互渗透、重叠,产生了意想不到的非传统视角。
▼模型推敲
▼草图
▼冬季花园构造
▼标准办公室构造
▼模型
▼长剖面
▼平面
▼横剖面
客服
消息
收藏
下载
最近



















































