查看完整案例


收藏

下载
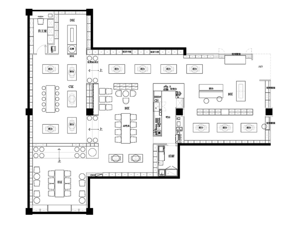
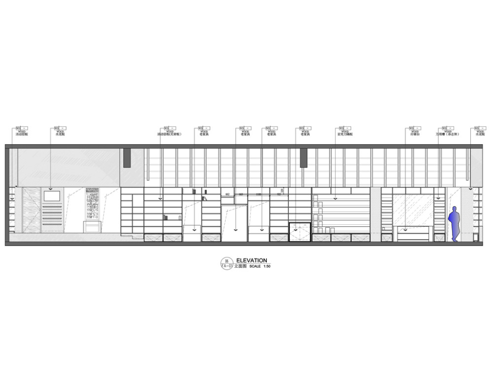
项目位于古城西安高新区唐延路卜蜂莲花商业中心二层,建筑空间结构封闭且规整。
万邦,一家经营了二十多年的本土独立书店,对无数读者而言就是西安文化人的后花园,独立坚守做自己,正是万邦书店的模样。
设计师希望能从万邦的城市、文化和历史背景中找到出发点并回到原地。
01
02
03
04
05
06
07
08
09
10
项目地点: 中国 西安
完成时间: 2016年7月
业主: 陕西万邦图书文化有限公司
建筑面积: 320平方米
设计公司: 西安安地设计顾问有限公司
设计师: 张保林
参与设计:张顺 张佳 张晓晔
摄影:谭啸
客服
消息
收藏
下载
最近















