查看完整案例


收藏

下载
澳门是一个殖民地色彩很强烈的地方,每个角落都充满着异地色彩。澳门也是一个娱乐旅游行业发展为主的城市,大家小巷都是络绎不绝的行人。初次来到澳门印象最深的还是城市非常小,街道都是狭窄的,挤满了汽车和摩托车,却又井井有条。而本项目也就是位于这样一个很有澳门市井特色的老城区里面。
▼澳门街景
起初,受托接触这个项目是业主有这么一个想法:
运营一个具有休闲体验购买形式的综合家居场所,里面集咖啡休闲、家居零售和家居定制。
正是这个
idea引发出我们设计方有兴趣去尝试,在国内大量充斥着各种套餐模式的家居市场环境下,能有不同的呈现方式,回归一种慢节奏的体验售卖方式是很不错的想法。
设计方案效果图
项目现场是一个上下两层的地铺,未了解真实情况前以为是首层加二层这种高挑空间,结果是一个首层面积只有
项目现场照
首层通过一个旋转楼梯,正是负一层的入口,负一层总体呈狭长形状,虽然层高相对比较高,但主梁比较低,视觉上就被分隔成了几个小空间。同时天花的管道相对比较少,算是工整。我们观察后试图想利用起这个几个不连贯的高挑空间。只是通过什么方式来解决大梁的阻隔呢?另外就是我们通过什么样的元素来达到设计上的视觉美感呢?
形成这个项目设计的因素很多可能是主观也可能是客观。我们这个行业也经常会出现业主主观上要改动或强制加入元素的现象。但是我们认为还是必须要专业地对自己,对客户负责,先要抛出自己的观点。对待一件事情是要付出很多精神的,了解客户的需求,可以帮助我们规避一些没必要的修改。了解后,剩下就是我们专业上怎么帮助业主达到使用和美感的平衡。有时候业主没办法衡量使用和美感上的取舍,而我们有职责给到指引。
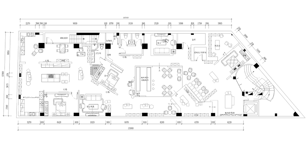
▼项目功能分析
项目定位是一个体验型家居类空间,在功能分区上我们基本上可以划分为情景空间、零售空间、洽谈空间和休闲空间。而不同的产品又会分割成几个不同的单独空间,所以在四百多平米的空间内分成十几个小空间,在整体的规划上就是一个难题。
经过思考和探讨,我们想将这些不同功能的分区互相穿插的形式呈现出来。
“会不会很凌乱,没有区域划分?”
不同的声音总是有的,而这些都要取舍,不可能满足大众的评论而面面俱到。
▼项目构思草图
通过穿插的空间把休闲空间和零售空间放置与情景空间之中,利用情景空间的氛围让人坐在里面休息交流都是一种享受,而不是在密集的摆桌前毫无氛围的交谈。通过空间的错位还可以产生更多的情景和造景。其次我们还想通过有限空间把每个大梁之间的高挑的空间利用起来,通过不同错位空间划分出具有庭园感觉的开敞空间。
▼项目构思草图
规划方向明确下来,接下来就是表现形式了。规整的空间被拆分为零散的空间,我想能把这个
“零散”的空间做到极致,更加“零散”吗?我们试着把结构再打散,把每一面墙,每个顶面都以独立的体块构成,在材质上区分每个面块。
▼主形象墙区
▼情景体验区
▼店面形象效果
▼平面布置图
项目地址:澳门
项目面积:约500平方米
项目设计:有本设计
项目说明:将生活元素融入展厅的每一个角落,设计师将蚝壳定制成灯具,以绿植墙作为主形象背景,打破常规的背景加前台的销售模式。展厅规划布局以客户入店的体验动线为核心,打造处处都是一副美景画面。
客服
消息
收藏
下载
最近
















