查看完整案例


收藏

下载
项目名称:美亚巨幕影城
项目地点:新疆乌鲁木齐
建筑面积:5000㎡
主要材料:中国黑荔枝面环氧树脂、自流平、黑钛金不锈钢、灰镜
主案设计:蒋国兴
美亚巨幕影城位于新疆乌鲁木齐,聚集于娱乐餐饮为一体的商业圈,高端的市场定位,很好的诠释了未来城市生活空间的发展远景。
为了体现文化的历史特性,本案不会追求过度的娱乐包装,盲目的搭配造型、令人眩目的怪异灯光,而是谋求整体上的简洁大气、和谐统一,但又不失时尚和新潮。颜色的搭配、空间形体的塑造、材料的选购、施工工艺的选用都体现了整个空间的市场定位。
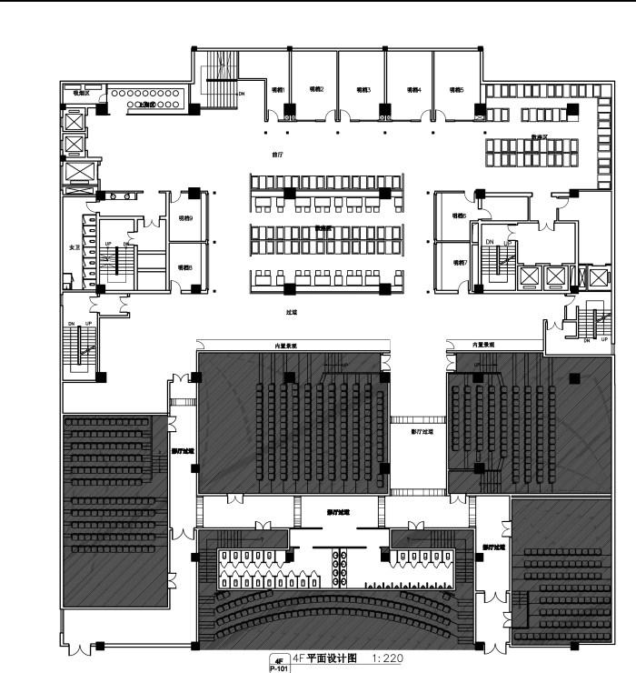
两层的空间结构布局合理、动线流畅。在平面布置上规划了上网充电区、咖啡吧区、美食区、售票区等。人性化的设计,告别了传统单一的影院模式,提升了影城的服务品质。
三楼大厅咖啡色的自流平地面,颜色深浅不一,自然流畅。墙面装饰着复古的红色条砖、做旧的素色水泥墙面、做旧的木拼条,质朴粗狂,仿佛带着泥土的气息,亲切自然,给人一种怀旧的情感。黑色方管组合的架子、黑色铁丝网隔断、黑色桥架、顶面裸露的管道时尚又前卫,仿佛让我们看到了后工业时代的缩影,与墙面质朴粗狂的材质和谐又统一。
售票区以一幅巨大的电子显示屏为背景,时时刻刻为来往的客人播放着最新的电影资讯。一整排的黑金沙大理石台面,简洁又大气;做旧的耐候钢装饰的服务台立面,与台面形成鲜明的对比,又好象经历了历史的沧桑,像生了锈的铁一样静静的立在那样,默默地注视着每一个过往的客人。售票区旁边放着一组黑色的沙发,为客人提供了一个舒适的等候区。
咖啡区的顶地面是做旧的深色木地板,两者相互呼应着。黑色方管与实木层板组合的酒柜摆满了各种各样的咖啡及饮品,满足了不同口味的客户需求。实木层板与耐候钢组合的吧台,延续了之前的元素与风格。吧台上方的黑色吊架,摆放着一些土陶罐,很好的装饰了整个空间。
每个影厅门口的旁边都做了一个独特的LOGO,耐候钢雕刻数字造型内置灯光,通过透光板发出淡黄的灯光,既满足了装饰的需求,又很好的起到了引导的功能。
四楼大厅中国黑荔枝面环氧树脂地面,复古红砖与做旧的木拼条装饰的墙面,裸露的原定以及黑色的桥架,无一不透露着工业风的情怀。
让人难以忘怀的是大厅的前厅,木拼条装饰的墙顶面,W型的造型,好像一条长长的回廊,好像回到了以前台北车站的小资情调,让人久久不能忘怀。
前厅的对面规划了一个别出心裁的景观,玻璃隔断里面摆满了各种各样的乐器,时而高、时而低、时而直立、时而倾斜,丰富的姿态好像有人在里面任意的挥洒着情绪,给偌大的空间增填了一份无声的音乐。
影厅的走道没有复杂的造型,复古的红色条砖铺满了整个墙面,在走道的中央规划了几个弧形的哑口,白色的小灯装饰着弧形的哑口,发出一圈淡淡的灯光,反射在地面,形成强烈的对称视觉感官,装饰着整个过道,在视觉上缩短了走道的长度。
卫生间采用了黑白灰的色调,黑色瓷砖、做旧的水泥墙、黑钛金边框、黑色烤漆玻璃,给人一种硬朗的冷色调。
客服
消息
收藏
下载
最近

























