查看完整案例


收藏

下载
项目名称:醉玥餐厅
项目地点:乌鲁木齐
建筑面积:1500㎡
设计公司:叙品设计
主要材料:镜面不锈钢、黑白红马赛克砖、铁丝网、作旧条砖
主案设计:蒋国兴
本案是新疆乌鲁木齐东街项目综合体的一个对外中餐厅,是一个主营中餐的中高端餐厅,主流客源以年轻人为主,所以设计师考虑以年轻化作为设计主线;以现代欧式,带点当下流行的工业风来诠释空间氛围。以作旧的材质来演绎复古怀旧情怀,现代与怀旧的结合,营造出怀带浪漫气息的时尚餐厅,来引领与提升年轻人的消费方式与生活享受品质。
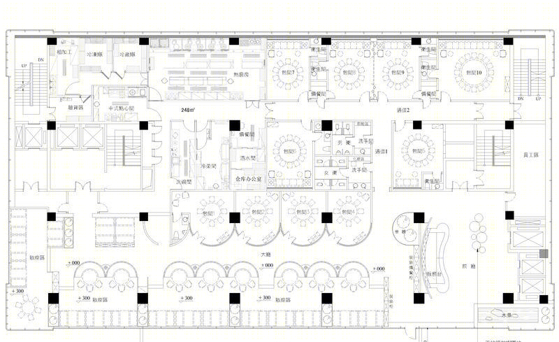
在平面的规划上,设计师将功能区域划分分明,主入口直对餐厅的服务台,在便于来客直接享受店内服务,更利于服务员的快捷引导。服务台运用镜面不锈钢材质,将地面黑白红马赛克砖映射的更加丰富,设计师故意在黑白马赛克砖穿插点缀红色,更加活跃了空间氛围,顶上异形球灯的装饰时尚造型下,灯光增加了空间的温馨感,在氛围中漂浮着一丝迷离的味道。前厅的中空地带,人性化的设置了以不锈钢定制的不规则圆形矮凳,提供来客等候功能,在闲暇之余,翻阅收边的杂志书籍,不感无聊。经过前厅服务台,转角遇见一个芭蕉绿植景观,一片绿色,消除疲倦,芭蕉是热情的象征,烘托出店家的迎宾之道,再往前走是开敞的散座空间,设计师将餐厅最后的位置留给了客户,沿窗的落地玻璃,敞开的视野,体会午后阳光扬洒,夜晚星空的迷醉,使你心情舒畅,勾起别样的情怀。散座的中间,设计一排圆形卡座,丰富作为的造型,给来客更有可选性,也打破空间的局限性,不会那么死板,与对面的圆形卡包相互呼应。圆形卡座背面同样运用镜面不锈钢,延续材质在视野上增加空间扩展。半圆形包厢外用铁丝网分隔,半通透的铁丝网除去包间的局限感,就餐于包间的来客,隐隐约约间可以透过落地窗外蔚蓝的天空。我们回头在经过过道,过道的另一区域是餐厅的包厢区,与散座区分隔两边,提供了安静的就餐环境,也提升了就餐私密性,包厢的氛围与外围极具现代时尚工业不同,温馨怀旧的情怀直入人心,墙面的透光假窗给予包厢的通透性,不规则的黑白挂画叙说过往,作旧处理的木地板,作旧的木假梁,墙面的作旧条砖,随性而感性,在鹿角灯的烘托下,开始了一个故事的起点,家具在整个环境里也是重要的一环,欧式家具经过设计师的精挑细选,散落在餐厅中的每一处,他们也是故事中的一员,柔化了空间。
本案的顶面立面造型不作过多复杂,简单处理,在色系上以中间色为主,地面的红色活跃氛围,在灯光营造与材质的运用,来丰富空间,后期的软饰家具的组合,现代时尚浪漫复古的醉玥餐厅,应是年轻人所喜爱与欢迎的。
客服
消息
收藏
下载
最近
















