查看完整案例


收藏

下载
多面性镜面空间体——南昌暗黑系买手店
“VIO—VIRTUAL INPUTOUTPUT”
Multifaceted—Mirror System
From the light comes darkness, and from darkness——Light”
A dialogue between reality and non-reality
项目为在南昌当地的一家暗黑系服装品牌买手店,暗黑系品牌的衣服大多以素色为基准,暗黑系品牌并不是大众的服装品牌,被人相对熟悉的牌子有Yohji Yamamoto(山本耀司),Rick Owens,Maison Margiela等。设计师有多年追从暗黑系品牌的习惯,有在米兰以及多个国家的买手店的购物经历。在欧洲大部分暗黑系品牌的门店会以灰黑色空间为主,而经过对于国内相关买手店的详细调查,发现国内大部分还是以灰白色调或者灰木的搭配甚至大部分依旧在运用“工业风”为主基调,空间还是中规中矩的表现,没有能准确阐释暗黑这个词汇。经过对于买手店商业价值的考虑后决定大胆使用黑白(暗黑系服装最常使用的固有色)来诠释此项目对于暗黑品牌的纯粹性。
“黑与白,是与非,从前与将来,现实与非现实,代表一个事物的两个面。” ——陈书灏
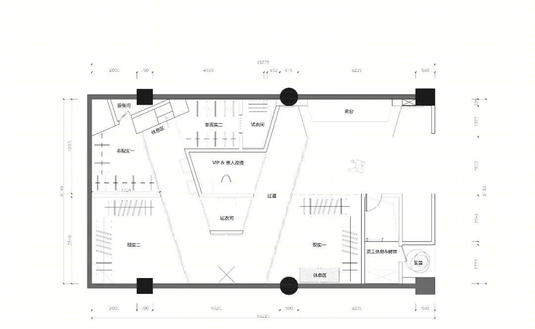
目中,何为设计师理解的“现实与非现实”?从空间的表达来看,有三点。一,现实世界里的零售店,都拥有墙体。而设计师不想把这个大众化认知的事情用大众化的方式去呈现。所以这个空间所有的内墙墙体都离地并抬高。并且所有的吊顶都不贴墙。吊顶和软膜的标高也高于墙体的标高,使得墙体从视觉上彻底”悬空化。二,现实与非现实也可以理解为一个材质的两种形式,所以选择了都是反光面的镜面和水波纹不锈钢面,很简单的可以理解到镜面是可以看清事物的材质,而不锈钢面则无法真正看清事物。三,就是在一个全镜面的空间里,镜面与镜面又是一个非现实的对比,因为当镜面与镜面合理的秩序布局后他又有无限的循环性。整个空间都是空间上互相包容,而材质上互相对立存在。
整体色调黑白良好的对比尺度,软膜天花为主要照明,同时也贯穿整个空间,形成消费者的动线引导,品牌logo也恰当凸显出来。
从对比色的前台缓冲到空间内使用了镜面格栅来做空间的过渡,潜意识里告诉消费者即将进入下一个空间(现实与非现实)。
利用了镜面现实的反射性和非现实的循环空间里无形的成为突出商品为主要空间重点。
接近80%的镜面空间比例,彻底满足并不限制消费者在一个固定的区域前挑选和尝试新的服装产品。非限制性。并且可以非常直观的看到墙体在空间中的悬浮。产品与结构巧妙地悬浮同化,可以给消费者更多的好奇感和兴趣性。
从顶到墙面统一的无接触对话。
最终步入真正非现实水波纹区。依旧贯彻空间统一的逻辑,悬空墙体,无接触墙与吊顶。直观的从材质上表达出非现实的感官。
真正的暗黑系品牌是纯粹的,不需要任何过多的修饰。暗黑系这个相对小众的消费群体在这个空间里能真切的感受到这个风格的服装能带来的影响力,这个空间也能给与消费者始于空间,终于产品的纯粹暗黑购物体验。
项⽬名称:南昌铜锣湾购物中⼼VIO
设计公司:EDGE ARCHITECTS
室内设计:陈书灏Jimmy
项目面积:120平方米
设计时间:2019年12月
完工时间:2020年4月
其他图片:EDGE ARCHITECTS提供
设计师 Designer
EDGE ARCHITECTS创始人-设计总监
毕业于意大利米兰欧洲设计学院,曾参与由朱桢主持的室内设计类的综艺“就匠变新家” 以及东方卫视“ 好房帮帮忙”的节目录制。获得过由上海市优秀设计奖项以及上海地区4040优秀设计青年奖等。坚持使用简洁的手法诠释空间调性 , 简约的东西很纯粹,经 得起时间的洗礼,但是简约的东西需要结合空间所需从而体现其商业价值。他坚持“设计是一种情感,向往简单和自由的生活”。
客服
消息
收藏
下载
最近


























