查看完整案例


收藏

下载
走进这套优雅的住所,玄关犹如艺术厅一般优雅并充满现代气息的氛围,在空间中肆意蔓延。造型现代精致,形成一个圆形的空间。
以艺术为基点,展开轻奢质感开阔的空间动线,带来的不仅是一种视觉享受,同时也是一种低调奢美的生活体验。
玄关与餐厅区域相连接,阳光从大面积的落地窗洒入室内,悄然增加舒适感与空间感,奠定了整体现代简洁优雅的风格。
不锈钢的柜体使空间更加精致充满艺术感,将几何元素运用在细节中,在满足功能的使用上还增加材质间碰撞的视觉冲击,是品质生活的真实感受。
客厅的设计打破常规,摒弃了传统一字厅的布局,在其基础上打造非凡客厅,带来强烈的空间感和立体感,让整个客餐厅通透大气。
玫瑰金材质的穿梭,圆形的茶几和玄关的圆形造型,把“圆”元素呼应。大理石的硬中带柔,柔软的地毯和沙发一张一弛之间传递出生活的动态与平衡哲学。
独特的主卧户型吊顶,如海浪一般,带来不一样的视觉体验。温润的配色,恰到好处的灯光,弧形的角落设计,带来舒服的视觉体验。
在这里,优雅的气息随着圆润的细节设计,有私享,亦有交流;有独立,亦有融合;有温暖,亦有浪漫,营造更加舒适温暖的氛围,空气、光影与人动线的流畅性,使空间典雅而不失现代感.。
次卧的白色墙体在光线下呈现出柔和的肌理,搭配金属线条框的装饰画,氛围优雅轻松。经典的直线分割设计手法、温润的配色搭配优雅、多元变奏的几何线条碰撞相映。
落地窗带来舒服的光线,微风徐徐,荡着吊椅,看着窗外的美好,艺术与设计在设计师的笔下融入空间内饰细节。
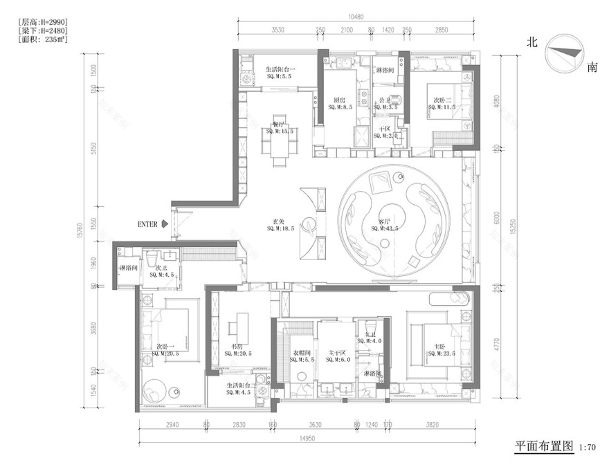
设计机构 | 百木室内设计机构 项目性质 | 样品房 项目地址 | 潮州 · 海博熙泰 四期样品房 项目面积 |235m2
刘树煌设计总监创立百木室内设计机构,拥有多年的家居、样品间、商业空间、酒店等设计经验。有良好的审美能力和独特的创作风格,同时对时尚有着敏锐的嗅觉。注重精益求精,臻致将自己的设计做到最好。
客服
消息
收藏
下载
最近



























