查看完整案例


收藏

下载
& 围炉·夜话
我愿深深扎入生活,吮尽生活的骨髓,把一切不属于生活的内容剔除得干净利落。
——《瓦尔登湖》
阳春白雪不过是精加工的调味剂,吃多了味觉会麻木。就如同当今家宅设计中,趋同的精细化追求,使人乏味。因而,如何找到“回归本心的感动”,成为当下设计凾待突破的一大难点。
孙文设计事务打造的旭辉宸宇府剥离形式主义的外壳,将“人的体验和观感”作为切入点,以产品的全局性思维把控空间,挖掘人最原始的心理层面,让身心与空间产生真正的对话。
取“围炉夜话”的意象作为贯穿整个设计的主题,是为了满足人对温暖最本能的渴望。客厅以大面积的灰色调铺陈叙事,为传统性质的样板空间注入沉静而抚慰人心的力量。
墙上的现代都市风格画作,来自德国艺术家格哈德·里希特。他的“无主题艺术”,同设计师所追寻的“没有特定风格的表达”不谋而合。
当黑夜接替白昼,家人在炉边围坐,一天的疲惫自会卸去。在安宁之中,种种烦闷都会消散。
与客厅连通的厨房是偌大的开敞空间。灰绿色大理石材质岛台,为空间增加了几分细致入微的质感。
当一缕清早的阳光洒入室内,窗外的绿植映射出欣欣向荣的生命力量,在这里,一份温馨的早餐预示着新一天的开启。
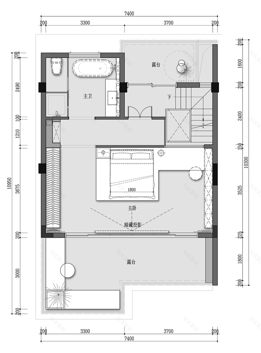
当步入三层的男女主人房,南向双阳台提供了更加宽广的视野深度,洄游动线使得窗外的景色尽收眼底。
大理石纹路的天然走向和质感粗凛的地毯,给柔和的整体加入局部锐化的视觉层次感。
大面积玻璃石材工艺,为浴室空间营造明亮整洁的空间氛围。不加赘余的线条,是对物料本真的尊重,传达屋主人对于美、真、淨的偏爱。
极简的风范,来自对纯粹、直观自然之美的执念,让低调的美感充盈在每一个角落。
女孩房间是米色系和治愈粉色系的巧妙结合。波普风的拼接地毯和挂画,一改常规女孩房温柔乖巧的印象,进而彰显的是更为大胆活泼的形象。
每一个精心挑选的摆件,都在各自表达着情绪,承载着有关现在和未来不可言说的小秘密。
夹层花艺区,是日常为精神供给养料的狭小空间。墙纸饰面吸纳自然的色彩、肌理,在其中打理各色花艺,定气凝神间纯粹的观感被无限放大。
拾级而下至地下层空间,这里是一切隐秘的汇合处。
深色木框架构建了坚实的背景墙。漫反射的灯光自上而下投射,映出每一件物体的质朴模样,为幽暗空间营造神圣气氛。
在这里,通过眼观、手触、鼻嗅点香参禅,可以在久违的仪式感中涤荡浮躁,找寻内心失去已久的平静秩序。
透过一条火焰摇曳的狭长缝隙,可以瞥见另一引人入胜的画面。从侧面走道绕过,便能收获豁然开朗的畅快感。
天光自高处挑空倾泻而下,石墙似一块大画布,光线如同水墨晕染的层次向下渐而浓重。
白色沙发是空间气质的具象化身,自有一股不食烟火的灵气。另一侧墙面陈列着马术用具,和悄然伫立的经典藤编椅自成一体,是对贵族精神由内向外的凝视。
当炉火的白噪音和焚香味道交错,听与嗅觉的界限被打破,居住空间于人的奥义将秘而不宣。“活在当下”的畅快,便能触发内心本真的感受。
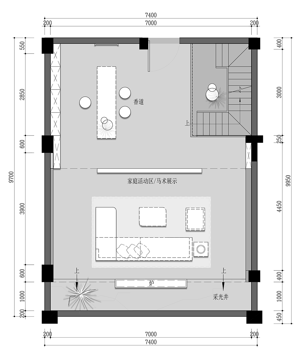
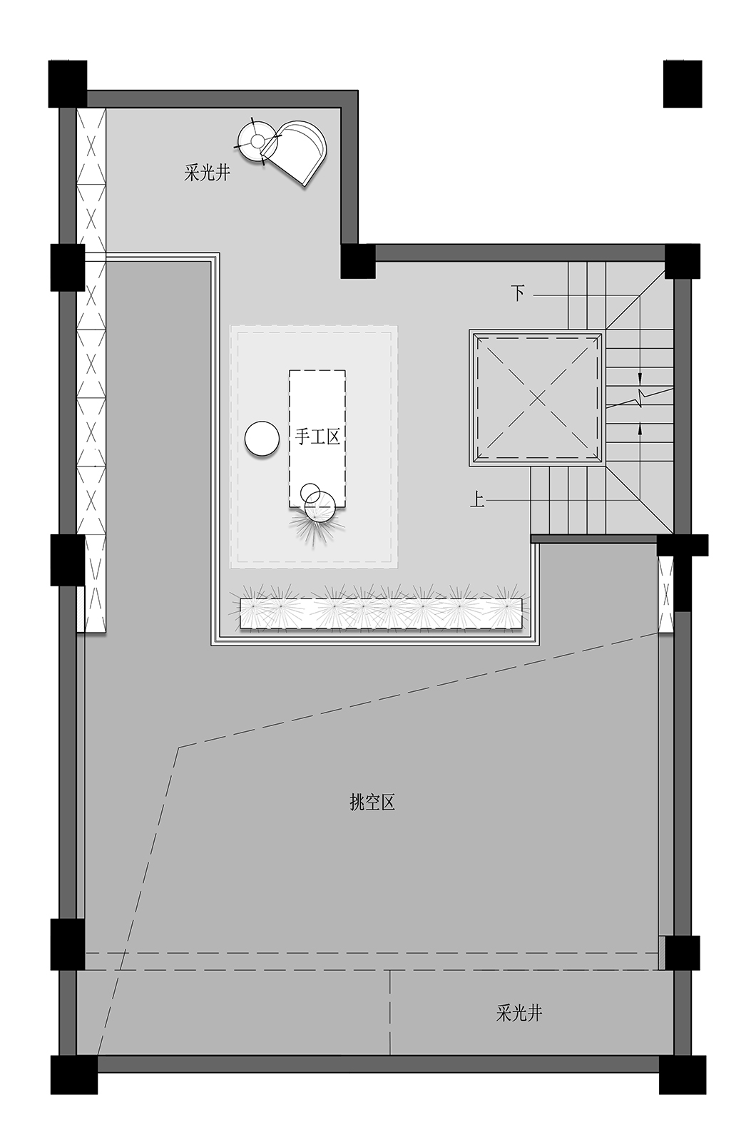
平面图
一层平面图
二层平面图
三层平面图
地下一层平面图
夹层平面图
项目名称 | 宸宇府排屋样板房
业主单位 | 旭辉地产 / 华宇地产 / 禹洲地产
设计单位 | 孙文设计事务所
创意总监 | 孙洪涛
室内设计 | 郑水方、蔡启铭
软装设计 | 张志娟、刘倩
深化设计 | 郑雪玲、戴男
设计面积 | 360平方米
项目地址 | 杭州市
摄 影 师 | 李恒
S.U.N DESIGN 孙文设计事务所有着15年丰富的室内设计、 软装设计经验。这让团队所在星级酒店、顶级会所、高端地产样板房、地产售楼处及公建项目等设计领域有很高的造诣。
S.U.N 设计作品正如 S.U.N 三个字母组成一样 Simple(简单的) ;Unique(独特的);Natural(自然的)一直坚持设计自然生长的理念, 不断将原创的、 简约的、 自然的设计理念融入每一个设计作品中。
客服
消息
收藏
下载
最近
















































