查看完整案例


收藏

下载
设计赋予生活与自然的结合
用心感受自然生活
【户型信息】:江山郡
【装修风格】:新中式混搭美式
【空间性质】:别墅
【建筑面积】:650平方
【设计老师】:凌国瑞 王广男
【设计说明】:
本案以新中式和美式的混搭来体现业主对生活的享受和态度。
新中式风格不是纯粹的传统元素堆砌,而是通过对传统文化的认识,
将现代元素和传统元素结合起来,
以现代人的审美需求来打造富有传统韵味的事物,
让传统艺术在当代社会得到合适的体现。
混搭美式风格糅合东西方美学精华元素,
将古今文化内涵完美地结合于一体。
混搭并非简单地将各种风格的元素放在一起,
而是把它们有主有次地结合在一起,和谐而融洽得体。
本案设计师
地下室原始结构图
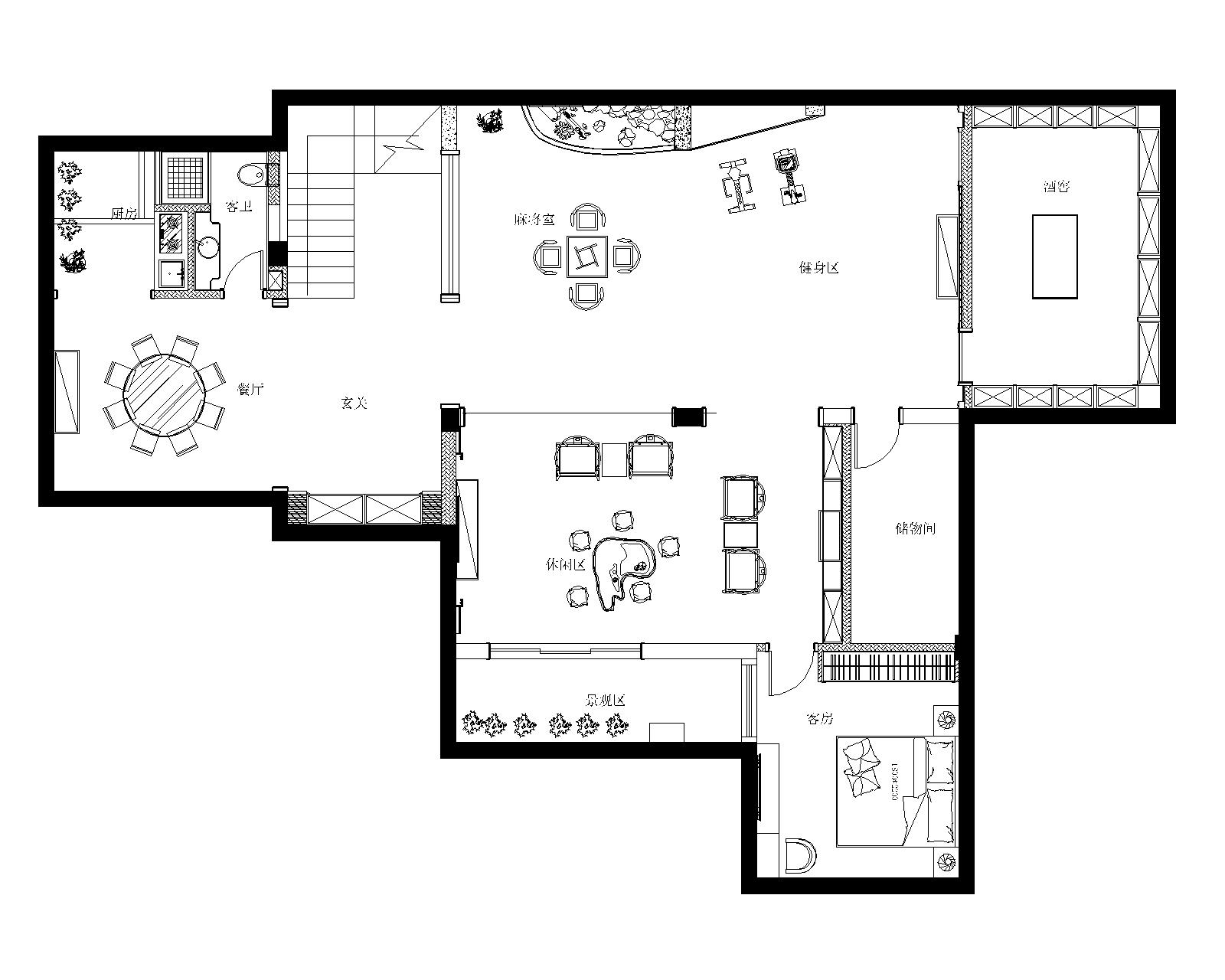
地下室平面布置图
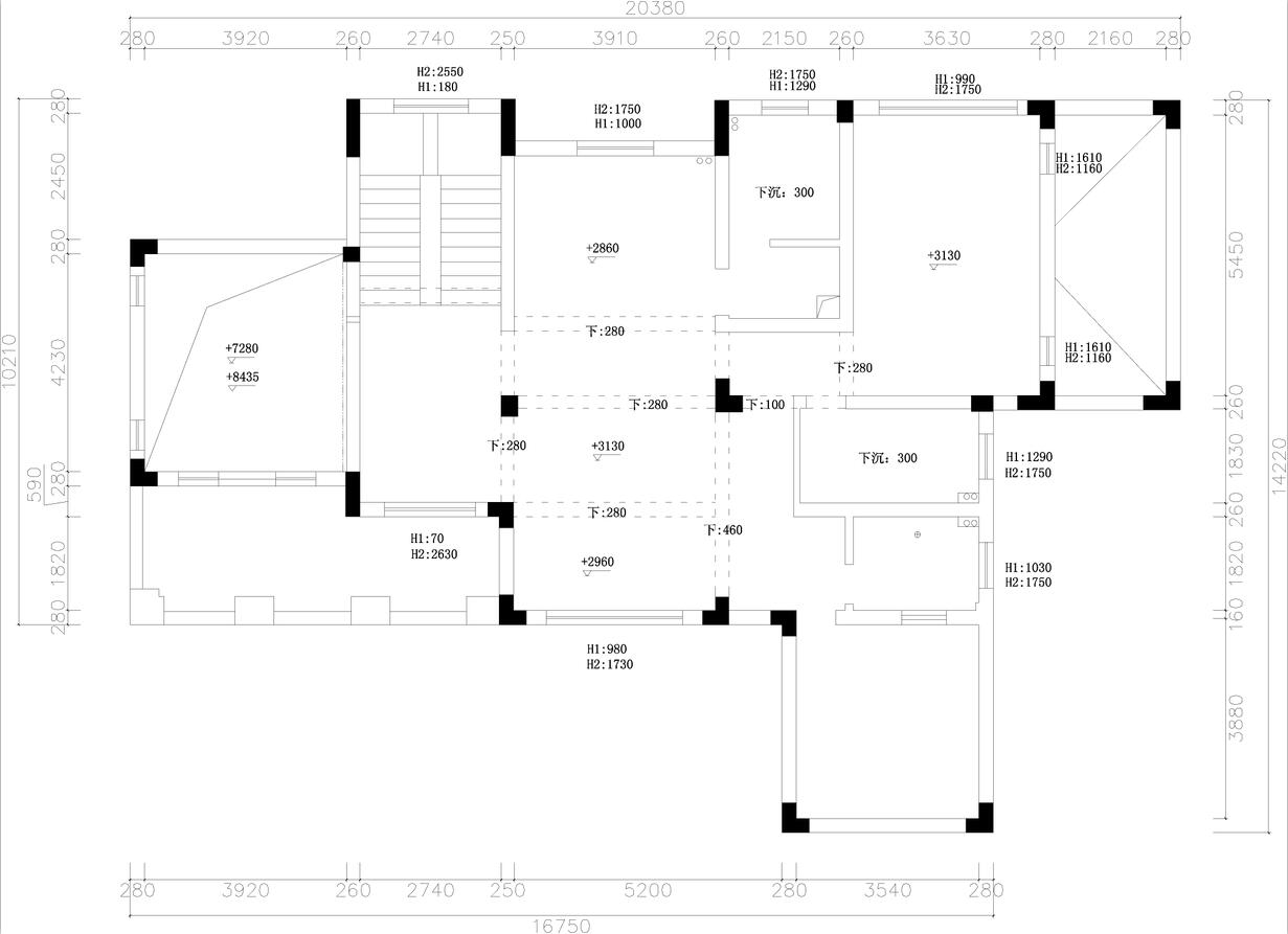
一楼原始结构图
一楼平面布置图
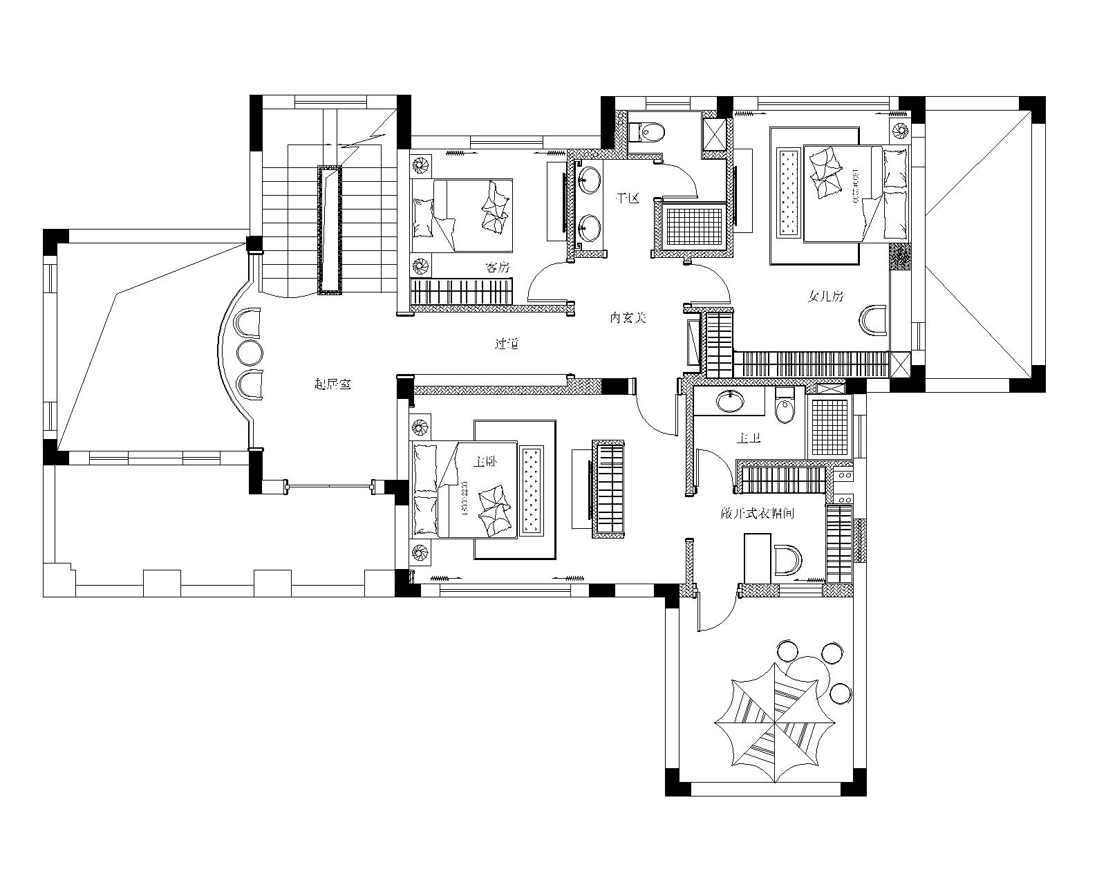
二楼原始结构图
二楼平面布置图
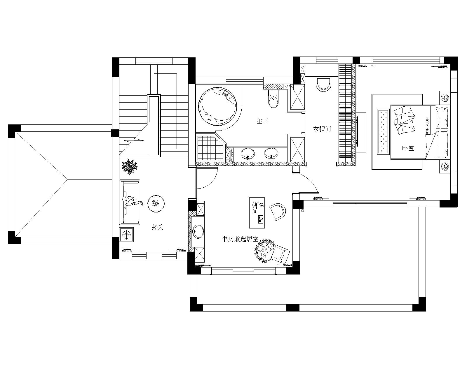
三楼原始结构图
三楼平面布置图
客厅
设计以现代的装饰手法结合古典中式的装饰元素, 来呈现亦古亦今的空间氛围。 电视背景墙的挑空设计,玛瑙玉瓷砖与木饰面金属相结合, 将现代与古典完美融合使整体空间更加丰富、厚而不重, 有格调又不觉得压抑,孔雀蓝增加了一抹明亮。 留白,圆形金属内嵌了天然石材, 若隐若现的崇山峻岭,雾霭缭绕,灵动的山水有游刃有余。
茶室
泼墨般的地砖凸显茶室的素雅, 约上三两朋友(三献蓬莱始一尝,日调金鼎阅芳香)。 未曾错过姹紫嫣红,也停留在银装素裹。
席坐煮茗,品味茶香,或听雨,或沐浴午后阳光,偷得浮生半日闲。
餐厅、厨房
开放式厨房与餐厅的连接 便捷了日常生活。
楼梯间
打通原有餐厅与楼梯间的墙体, 不仅仅解决了入地下室的采光,也让整个空间更加宽敞,通透。
中式复古吊顶,简洁。吊灯协调了中式风格的元素,体现低调的奢华。
二楼主卧
运用柜体隔而不断的方式, 既增加了卧室的私密性和收纳空间,也形成卧室的过渡空间, 浅红色摒弃传统的中式,创新了现代人们的审美观。
女儿房
蓝色背景墙显得清新,自然,安静。 多功能柜满足空间的收纳需求,书桌上的一缕阳光, 笼罩着“日日春光斗日光,山城斜路杏花香”的诗意。
三楼
休息区
楼梯间利用了原有的斜顶,设计木梁,简洁的线条化繁为简, 将怀古的浪漫美式情怀与现代中式相互结合。
主卧
大面积木质墙面灰蓝色和亚麻灰蓝色窗帘相呼应, 现代美式的床品干净质朴, 灰色地板的质感,表现出温和可亲的气质, 无需太艳丽的装饰。书柜的多功能性与卧室, 衣帽间,卫生间的连贯性设计,便捷了日常生活。
地下室
敞开式地下室采用垭口将各个空间划分开。
麻将室打通原有的隔墙引入室外的自然光,使地下室更加明亮。 假山石改变室内环境,营造了自然空间的气息。
客服
消息
收藏
下载
最近
















































